Bright two-bedroom flat with parking and premium building facilities near Canary Wharf.
- High-floor apartment with private balcony and Canary Wharf views
- Two double bedrooms, principal ensuite and modern family bathroom
- Allocated garage parking included
- Extensive resident facilities: pool, gym, sauna, tennis, concierge
- Very long lease: 974 years remaining
- High annual service charge: £11,622 (expensive)
- Council Tax Band F (expensive)
- Local crime level recorded as very high
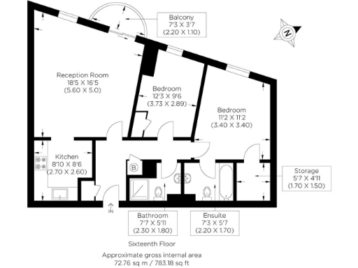
A well-presented two-bedroom apartment in Cascades Tower offering striking Docklands and Canary Wharf skyline views from a private high-floor balcony (16th floor reported). The interior has been updated by the owner with a contemporary fitted kitchen, high-spec bathroom and en-suite, large windows that flood the open-plan living space with light, and allocated garage parking.
Residents benefit from extensive on-site facilities including communal heating, a swimming pool, gym, sauna, tennis court, communal gardens and concierge — useful for owners and tenants alike. Connectivity is strong: excellent mobile reception, fast broadband potential and close access to Canary Wharf transport links and local amenities.
Important practical points: the apartment is leasehold (very long 974 years remaining) and carries a high annual service charge of £11,622 plus an expensive council tax band F. The local area is very affluent and cosmopolitan but records a very high crime rate, which may concern some buyers. Flooding risk is very low and the building appears well maintained, though glazing install dates are unknown and the property sits in a high-rise block constructed in the 1983–1990 period.
This home suits buyers seeking a central Docklands base or a buy‑to‑let investment attracted to view, location and building amenities. Factor the high service charges and local crime statistics into running-cost and safety considerations before committing.
2 bedroom apartment for sale in Cascades Tower, Westferry Road, London, E14 — £545,000 • 2 bed • 2 bath • 761 ft²
3 bedroom apartment for sale in Quayside House, 2 Westferry Road, E14 — £1,250,000 • 3 bed • 2 bath • 1356 ft²
2 bedroom flat for sale in Westferry Road, Canary Wharf, E14 — £495,000 • 2 bed • 2 bath • 770 ft²
2 bedroom apartment for sale in Hutchings Street, London, E14 — £555,000 • 2 bed • 2 bath • 732 ft²
2 bedroom flat for sale in Seacon Tower, Hutchings Street, Canary Wharf, London, E14 — £515,000 • 2 bed • 2 bath • 702 ft²
2 bedroom flat for sale in Arena Tower, Isle Of Dogs, London, E14 — £675,000 • 2 bed • 2 bath • 734 ft²


















































