Large garden apartment with leisure facilities and excellent commuter links.
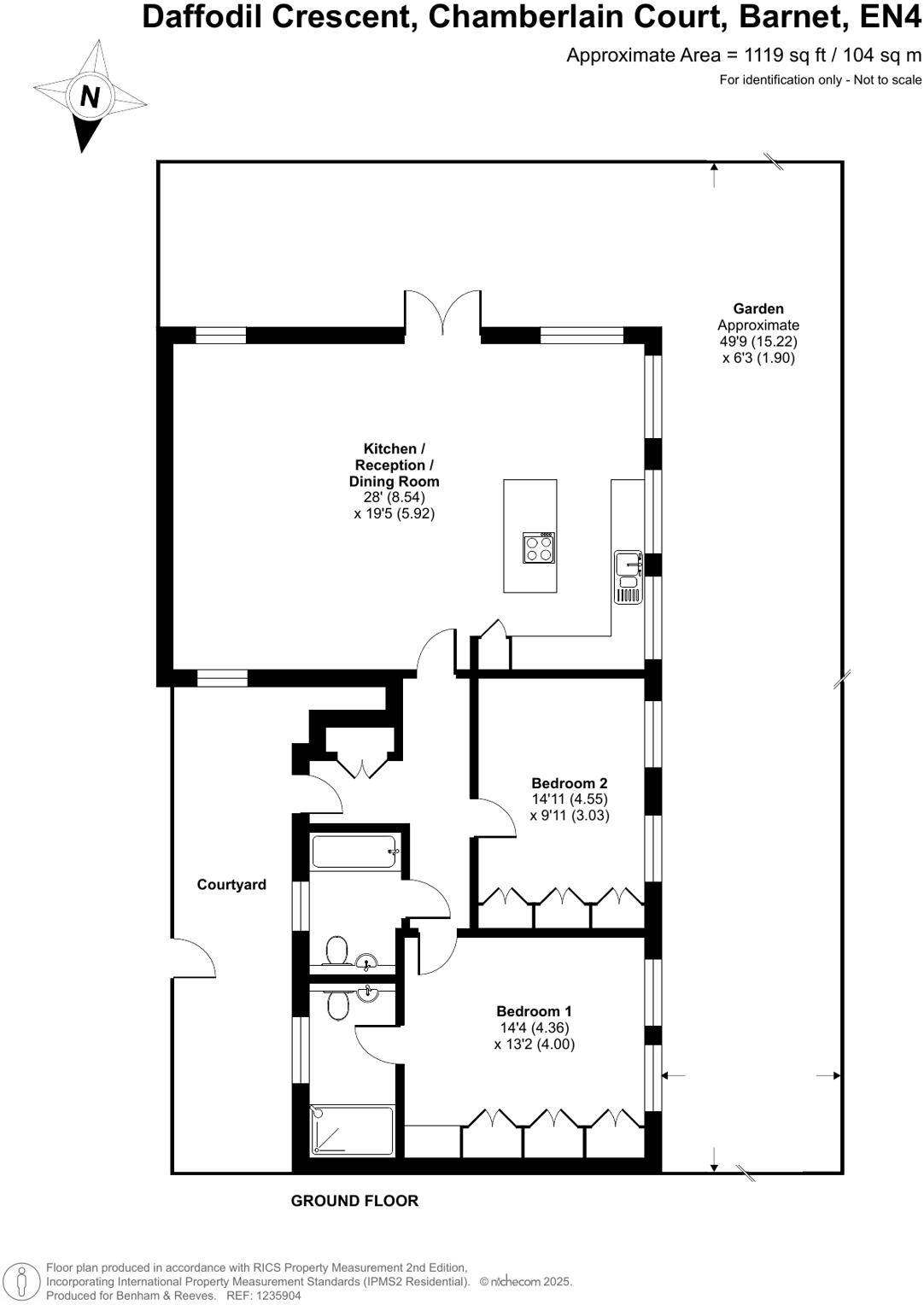
- Over 1,100 sqft of single-floor living space
- 28' reception with exposed beam ceiling and large windows
- Private south-facing garden with direct access
- Two double bedrooms; principal has en suite shower room
- Private entrance, allocated parking plus right to park space
- Residents-only pool, gym, tennis court and shuttle to Oakwood
- Leasehold with c.998 years remaining; service charges apply
- Council tax band and service charge amounts not provided
Set within the Trent Park Royal Mews Collection, this unusually large two-bedroom apartment offers over 1,100 sqft of single-floor living finished to a high standard. A dramatic 28' reception with exposed beam ceilings and a contemporary open-plan kitchen flows directly to a private south-facing garden — rare for an apartment and ideal for families who value outdoor space and entertaining.
Both double bedrooms have extensive fitted wardrobes and exposed beams; the principal benefits from an en suite shower room and there is a fully tiled guest bathroom. Practical conveniences include a private entrance, an allocated parking bay with an additional right to park space, and off-street parking. Built in 2021, the property is well insulated and gas‑heated via boiler and radiators.
Residents have exclusive access to on-site leisure facilities — a Lawn Club with swimming pool, gym and tennis court — plus a shuttle bus to Oakwood station for direct Piccadilly Line links into central London. The setting adjoins 56 acres of historic parkland, offering attractive walks and views towards a Grade II listed mansion house.
Important factual points: the property is leasehold (approximately 998 years remaining) and will be subject to service charges for communal maintenance and facilities — amounts are not provided here. Council tax band and specific service charge figures are unknown and should be confirmed. The apartment sits within a managed development, so communal rules and charges apply.
4 bedroom mews property for sale in At Trent Park, London, EN4 — £2,350,000 • 4 bed • 4 bath • 2379 ft²
2 bedroom apartment for sale in Lyon House, Barnet, EN4 — £700,000 • 2 bed • 2 bath • 848 ft²
3 bedroom apartment for sale in The Mansion House, Trent Park, Barnet, EN4 — £1,300,000 • 3 bed • 2 bath • 1163 ft²
3 bedroom apartment for sale in Heamoor House, Barnet, EN4 — £875,000 • 3 bed • 2 bath • 1128 ft²
4 bedroom mews property for sale in At Trent Park, London, EN4 — £2,450,000 • 4 bed • 4 bath • 2476 ft²
3 bedroom mews property for sale in At Trent Park, London, EN4 — £1,600,000 • 3 bed • 3 bath • 1442 ft²














































































