**Standout Features:**
- Central Newquay location.
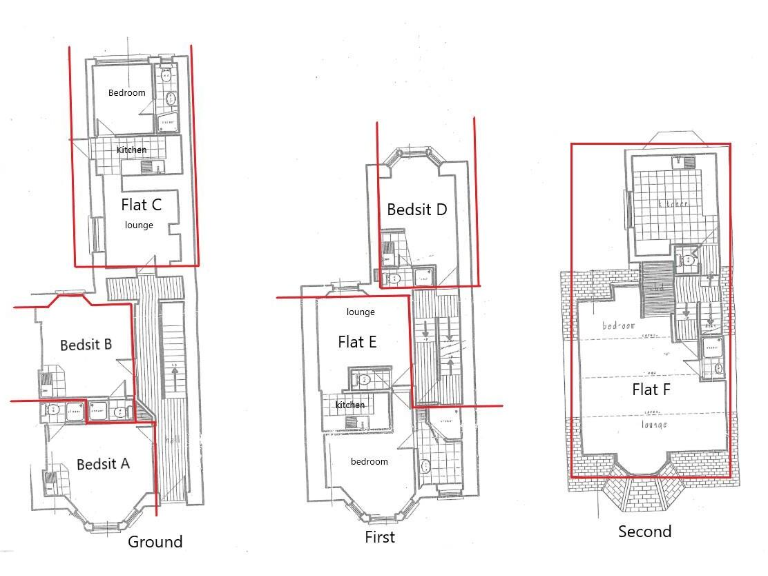
- Fully let with 6 self-contained rental units generating an income of £30,720 per annum.
- All units are certified and have no arrears.
- Includes a garage/workshop for landlord use and a small garden space.
- High demand due to proximity to local amenities and schools.
**Concerns:**
- Victorian property needing modernization.
- Small overall size with limited parking options.
- Neighbors may experience noise from the vibrant location.
**Summary Description:**
Discover an excellent investment opportunity with this charming Victorian townhouse in the heart of Newquay. Designed as 6 self-contained units—3 one-bedroom apartments and 3 bedsits—this property offers an impressive rental income of £30,720 per annum with potential for growth. Each unit is certified and has rolling tenancies in place, showcasing a solid rental history with no arrears.
While the property exudes character with its stone facade and bay windows, it does require some modernization to unlock its full potential. The quirky layout includes a rear yard, which is already let, and a convenient garage/workshop, providing practicality for any landlord. Located near various amenities, schools, and local attractions, this turnkey investment is perfect for savvy investors looking to capitalize on Newquay's rental market. Don’t miss out on this unique opportunity—properties like this don’t stay on the market for long!
Commercial property for sale in Henver Road, Newquay, TR7 — £575,000 • 6 bed • 6 bath • 1685 ft²
7 bedroom house share for sale in Beacon Road, Newquay, TR7 — £550,000 • 7 bed • 5 bath
6 bedroom terraced house for sale in Atlantic Road, Newquay, Cornwall, TR7 — £600,000 • 6 bed • 5 bath • 2224 ft²
10 bedroom end of terrace house for sale in Berry Road, Newquay, Cornwall, TR7 — £450,000 • 10 bed • 7 bath • 1985 ft²
12 bedroom block of apartments for sale in Investment Property,15 East Street, Newquay, Cornwall, TR7 1DN, TR7 — £949,950 • 12 bed • 1 bath
5 bedroom end of terrace house for sale in Cheltenham Place, Newquay, Cornwall, TR7 — £325,000 • 5 bed • 2 bath • 1600 ft²










































