Large plot backing the golf course with approved rebuild consent — chain free..
Backs onto Mere Golf Course with private, mature garden
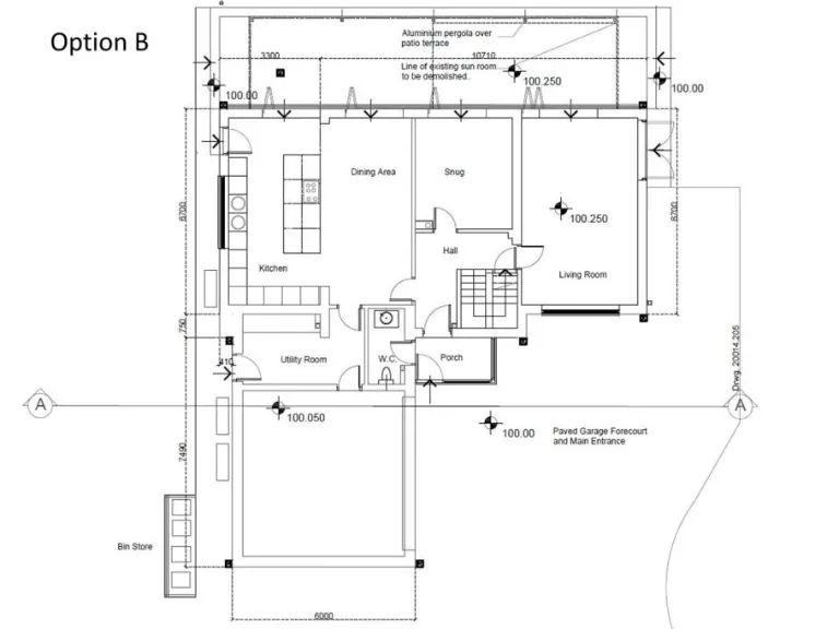
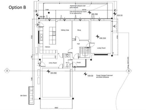
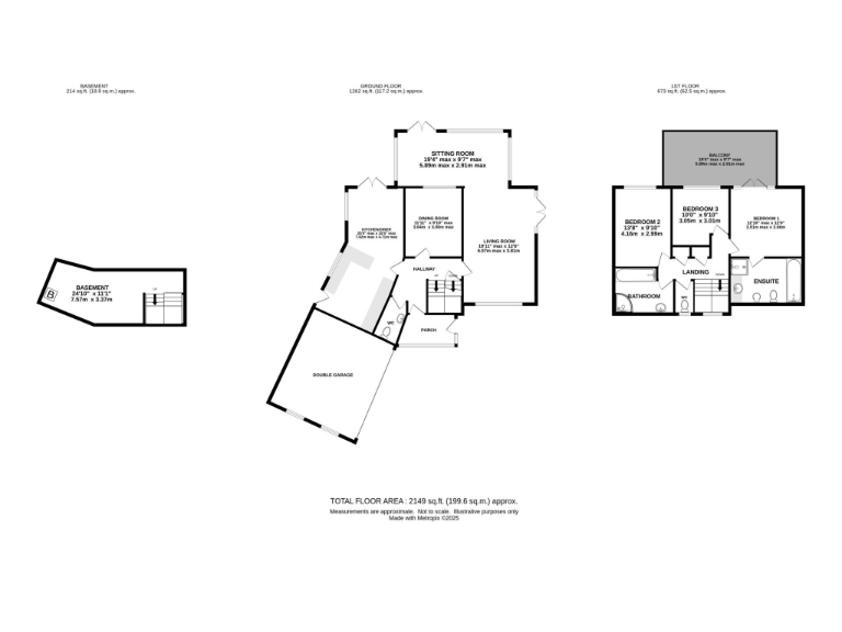
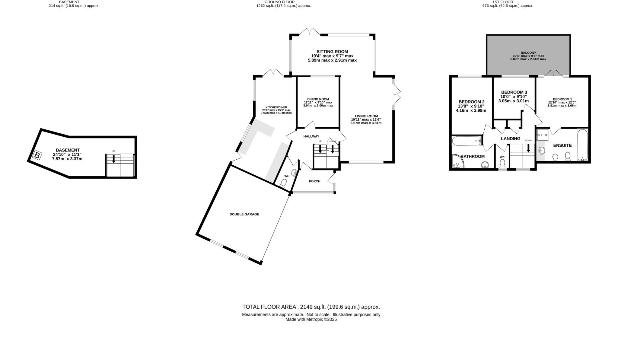
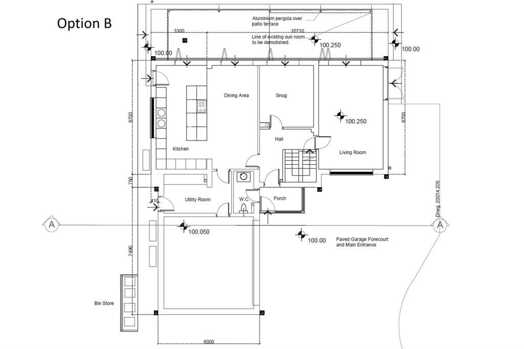
Set on a very large, private plot backing directly onto Mere Golf Course, this detached three-bedroom residence offers a rare opportunity to create a bespoke family home. The sweep of driveway, mature trees and double garage give immediate kerb appeal while the house’s generous footprint (circa 2,140 sq ft) provides scope for substantial reconfiguration or replacement.
Two planning permissions are already approved: one to demolish and rebuild (REF 24/4253/FUL) and an alternative scheme for a six-bedroom, five-bathroom contemporary residence (REF 24/2209M). Both consents make this suitable for a purchaser wanting either a major renovation or a new-build project in a highly desirable Mere setting.
The property is sold chain-free but does require renovation throughout; buyers should budget for modernization works. Practical considerations include oil-fired central heating, presumed uninsulated cavity walls and relatively slow broadband, which may affect running costs and connectivity until upgraded.
This home will appeal to families seeking space and proximity to strong independent and state schools nearby, or to investors/developers attracted by the approved planning permissions and the potential uplift from a complete rebuild. Note factual drawbacks: the area records higher local crime levels and council tax is described as quite expensive — both should be factored into purchase and budgeting decisions.
6 bedroom detached house for sale in Chester Road, Mere, WA16 — £2,650,000 • 6 bed • 4 bath • 5078 ft²
3 bedroom detached bungalow for sale in Mere, Knutsford, WA16 — £950,000 • 3 bed • 3 bath • 1947 ft²
5 bedroom detached house for sale in Chester Road, Mere, Knutsford, WA16 — £2,150,000 • 5 bed • 3 bath • 3000 ft²
4 bedroom detached house for sale in Warrington Road, Mere, WA16 — £1,295,000 • 4 bed • 2 bath • 2650 ft²
5 bedroom detached house for sale in Steadings Rise, Mere, Knutsford, WA16 — £1,995,000 • 5 bed • 4 bath • 3196 ft²
6 bedroom detached house for sale in Peover Lane, Chelford, SK11 — £7,500,000 • 6 bed • 5 bath • 10504 ft²


















































































































































































































































