Spacious family home with period character and a large terrace near top schools.
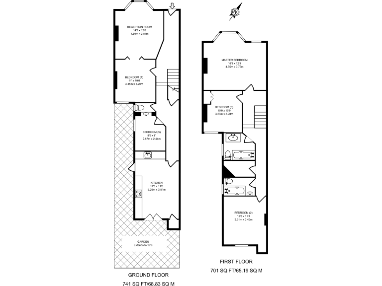
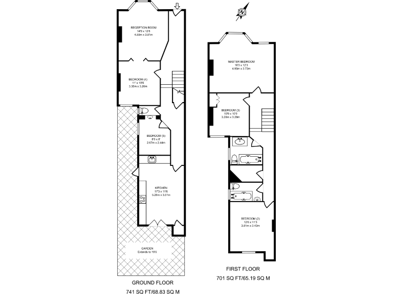
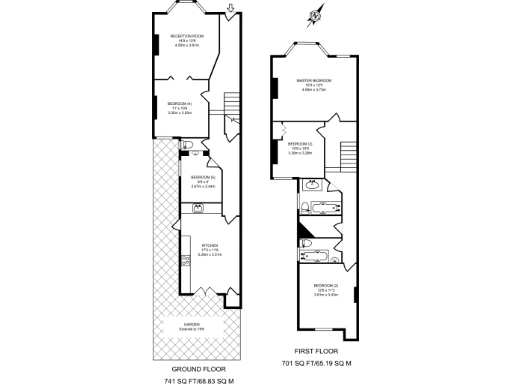
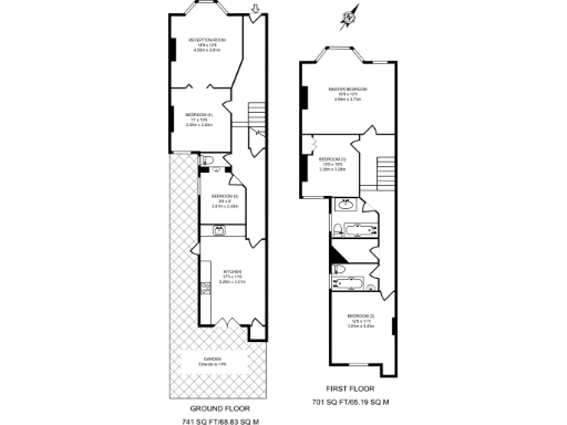
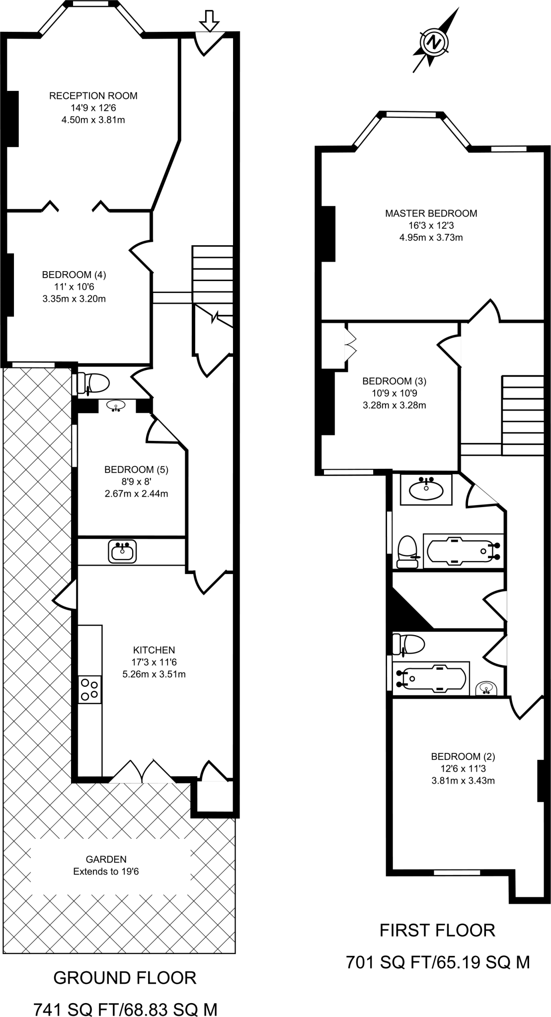
Double reception room with high ceilings and period bay window
17'3 kitchen/diner with French doors to large rear terrace
Four bedrooms, two bathrooms plus a guest cloakroom
Freehold mid-terrace, 1,442 sq ft over two floors
Solid brick construction; insulation assumed absent (likely retrofit needed)
Small plot despite generous internal space
Very low flooding risk; excellent mobile signal and fast broadband
Area has above-average crime — factor into location decision
Set on a quiet Fulham street, this Victorian mid-terrace offers generous family accommodation across two floors with period detail. High ceilings, a bay-fronted master bedroom and a double reception room create bright, flexible living spaces for day-to-day family life and entertaining.
The 17'3 kitchen/dining room with French doors opens directly onto a large rear terrace, giving indoor–outdoor flow and a useful entertaining area. Four bedrooms, two bathrooms and a guest cloakroom provide practical space for a growing family or home-working needs.
Built before 1900 in solid brick, the house retains character but will benefit from sympathetic updating — thermal insulation is assumed absent and some modernisation could add value. The property is freehold and offers fast broadband and excellent mobile signal, while being close to outstanding and good schools and local shops, cafés and transport links.
Notable negatives to consider are the relatively small plot size and the area’s above-average crime level; these factors should be reviewed alongside the home’s strong internal space, period character and location in inner-city Fulham.
4 bedroom terraced house for sale in Estcourt Road, London, SW6 — £1,250,000 • 4 bed • 3 bath • 1332 ft²
3 bedroom terraced house for sale in Dawes Road, Fulham, SW6 — £1,200,000 • 3 bed • 2 bath • 1531 ft²
4 bedroom house for sale in Burnfoot Avenue, Fulham, London, SW6 — £1,500,000 • 4 bed • 2 bath • 1805 ft²
3 bedroom terraced house for sale in Fabian Road, London, SW6 — £1,100,000 • 3 bed • 1 bath • 1581 ft²
4 bedroom terraced house for sale in Eustace Road, London, SW6 — £1,200,000 • 4 bed • 2 bath • 1500 ft²
4 bedroom terraced house for sale in Clonmel Road, London, SW6 — £1,750,000 • 4 bed • 2 bath • 1822 ft²


























































































