A bright, efficient family house on a generous plot close to town and countryside.
Brand-new detached home with 10-year build warranty
Energy Rating A with solar PV panels fitted
Three double bedrooms; principal bedroom with en-suite
Large open-plan kitchen/dining; utility room and storage
Single garage plus two off-road parking spaces
Huge private garden, fully turfed and paved patio
Area has slow broadband speeds — check connectivity
Estate charge applies (amount to be confirmed)
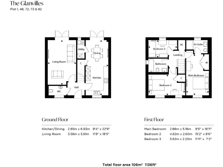
Be the first owner of this newly built, double-fronted detached home on a large plot in Sturminster Newton. Designed by Wyatt Homes, the house offers three double bedrooms, a generous open-plan kitchen/dining area and a spacious sitting room with French doors onto a fully turfed, fenced garden. Sustainability features include solar PV, EV charging provision and an Energy Efficiency Rating of A, plus a ten-year build warranty.
The ground floor flows around a practical entrance hall with cloakroom, ample storage beneath the stairs and a utility room off the kitchen. Upstairs provides a principal bedroom with en-suite shower room, a second double with built-in wardrobes, and a versatile third bedroom suitable for a nursery, guest room or home office. The family bathroom has a bath with mains shower over.
Practical positives include a single garage, two off-road spaces, mains gas boiler and cavity wall insulation. There is no flood risk and local amenities — shops, schools and health services — are within easy reach, with countryside and riverside walks on the doorstep. The property is offered freehold and chain free.
Notable points to check before buying: broadband speeds in the area are reported as slow, and there will be an estate charge (amount to be confirmed). Some specification items are described as “provision” (EV charging) rather than confirmed installed equipment; buyers should seek clarity on fitted appliances and warranties at viewing.
4 bedroom detached house for sale in Fiddleford Ridge, Sturminster Newton, DT10 — £550,000 • 4 bed • 2 bath • 1403 ft²
3 bedroom detached house for sale in Fiddleford Ridge, Sturminster Newton, DT10 — £460,000 • 3 bed • 2 bath • 1207 ft²
2 bedroom semi-detached house for sale in Fiddleford Ridge, Sturminster Newton, DT10 — £300,000 • 2 bed • 2 bath • 799 ft²
4 bedroom detached house for sale in Fiddleford Ridge, Sturminster Newton, DT10 — £775,000 • 4 bed • 3 bath • 1995 ft²
4 bedroom detached house for sale in Fiddleford Ridge, Sturminster Newton, DT10 — £535,000 • 4 bed • 2 bath • 1449 ft²
4 bedroom detached house for sale in The Hamlets, Lower Road, Stalbridge, DT10 — £505,000 • 4 bed • 2 bath • 621 ft²






































































