Walking distance to village shops, schools and commuter routes.
Chain free three-bedroom detached home on large plot
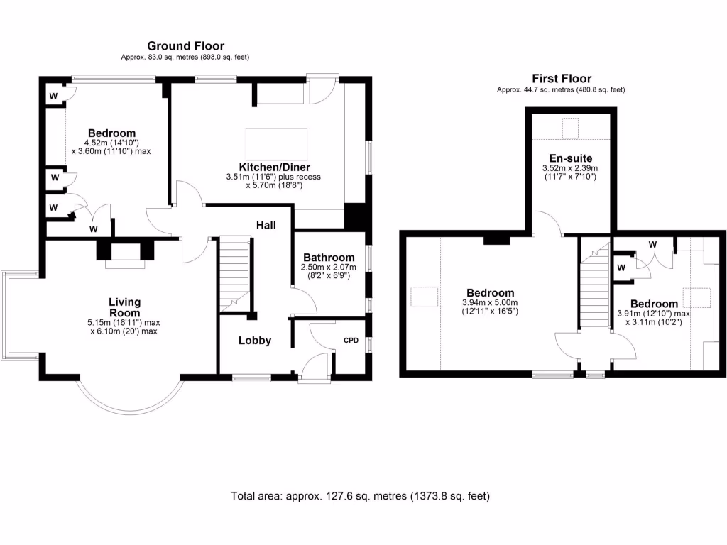
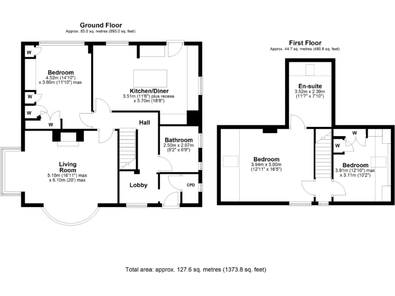
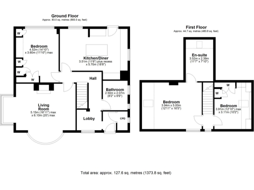
This chain-free, three-bedroom detached home sits on a large plot within easy walking distance of Ryton village amenities and good local schools, making it well suited to a growing family. The house has been well maintained and updated by the current owner, with a fitted Hammonds kitchen, log-burner in the bay-fronted living room and high-quality fitted wardrobes in several bedrooms. Practical features include double glazing (installed post-2002), gas central heating with boiler in a built-in cupboard, a detached garage and driveway parking.
Accommodation is generous throughout: a ground-floor double bedroom and a substantial family bathroom with freestanding roll-top bath provide flexible living, while two double bedrooms upstairs (one with en suite) offer privacy for adults and children. The garden is a standout: established lawns, multiple paved patio areas and gated access to a rear lane give good outdoor space for family life and entertaining.
Buyers should note some ongoing costs and efficiency factors: the property is EPC Band D and in Council Tax Band E, which will affect running costs. The wider area figures show pockets of deprivation, although local services, transport links and schools are good. Overall the house offers immediate move-in quality with room to adapt or update further if desired.
3 bedroom detached house for sale in Hill Rise, Ryton, NE40 4UL, NE40 — £275,000 • 3 bed • 1 bath • 1207 ft²
3 bedroom semi-detached house for sale in Reasby Villas, Ryton, NE40 — £135,000 • 3 bed • 1 bath • 716 ft²
3 bedroom semi-detached house for sale in Western Way, Ryton, NE40 — £275,000 • 3 bed • 1 bath • 973 ft²
4 bedroom detached house for sale in Hill Rise, Crawcrook, Ryton, NE40 4UL, NE40 — £325,000 • 4 bed • 2 bath • 1511 ft²
3 bedroom bungalow for sale in Holburn Gardens, Ryton, Tyne and Wear, NE40 — £425,000 • 3 bed • 1 bath • 1767 ft²
3 bedroom terraced house for sale in Ashfield Terrace, Ryton, Tyne and Wear, NE40 — £250,000 • 3 bed • 1 bath • 1225 ft²


































































































































