Bright two-bedroom flat with garden and parking, ideal for first-time buyers or investors.
Chain-free first-floor maisonette with private garden and detached garage
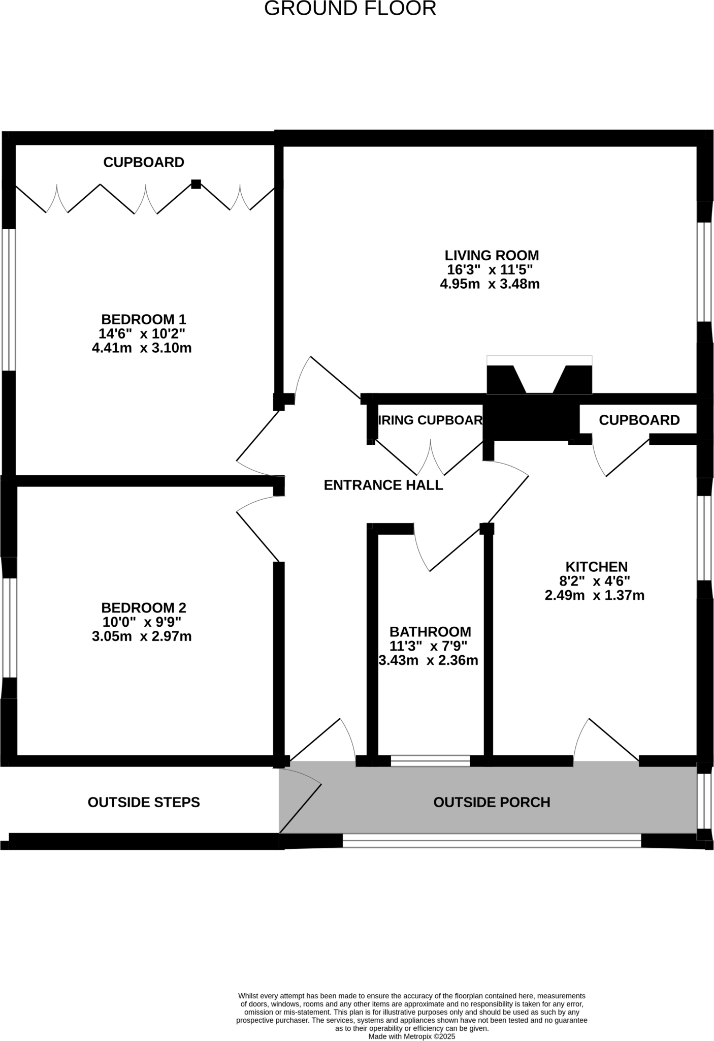
A compact two-bedroom first-floor maisonette with a rare private garden and single garage, offered chain-free. The layout provides a bright reception room with large windows overlooking the garden, two double bedrooms (one with built-in storage), separate kitchen and bathroom — a straightforward home for a first-time buyer or a buy‑to‑let investor looking for rental potential.
The property is leasehold with 79 years remaining and a ground rent of £150 pa. This is a material issue: many mortgage lenders have minimum lease-term requirements and could refuse lending, so buyers should verify mortgageability before committing. The building dates from the 1967–75 period and external finishes include older render/asbestos-style cladding; gutters and external stairs should be inspected.
Internally the flat is liveable but dated — cosmetic updating (flooring, decoration, kitchen/bathroom refresh) would quickly unlock value. Outside, gardens are small; one private garden is a useful extra but overall outdoor space is modest. Communal parking and a detached garage are definite positives for the area.
Practical points: broadband and mobile connectivity are good and local crime is very low. However, the surrounding area indicators include high local deprivation metrics, which may affect long‑term demand and resale values. A full inspection, confirmation of exact lease terms, service charges and lender acceptance is strongly recommended before exchange.
2 bedroom maisonette for sale in Duffryn Close, Cardiff, CF23 6HT, CF23 — £255,000 • 2 bed • 1 bath • 802 ft²
2 bedroom ground floor maisonette for sale in Hollybush Heights, Cyncoed, Cardiff, CF23 — £210,000 • 2 bed • 1 bath • 624 ft²
2 bedroom maisonette for sale in Cherry Orchard Road, Lisvane, Cardiff, CF14 0AT, CF14 — £245,000 • 2 bed • 2 bath • 807 ft²
2 bedroom maisonette for sale in St. Davids Court, Goldcrest Drive, Pentwyn, Cardiff, CF23 — £240,000 • 2 bed • 1 bath • 1055 ft²
2 bedroom flat for sale in Bluehouse Road, Cardiff, Llanishen, CF14 — £185,000 • 2 bed • 1 bath • 743 ft²
2 bedroom maisonette for sale in Fairwood Road, Fairwater, Cardiff, CF5 3QF, CF5 — £165,000 • 2 bed • 1 bath • 622 ft²






















































