Affordable two-bedroom terrace with garden and strong transport links.
- Two double bedrooms, large lounge/dining room
- Gardens to front and rear, small but private
- Gas central heating and double glazing (EPC C)
- Freehold; council tax band B
- Fast broadband and excellent mobile signal
- Quiet residential street with good transport links
- Area classed as very deprived — affects resale comparables
- Basic fixtures; likely needs cosmetic updating
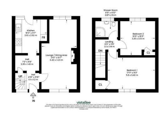
This mid-terraced two-storey home on Cleish Place offers a straightforward, well-proportioned layout ideal for a first-time buyer or landlord. The property features a large lounge/dining room, two double bedrooms and a shower room, delivering practical living space across approximately 749 sq ft. Gas central heating, double glazing and an EPC rating of C give reasonable running costs and comfort.
Gardens to the front and rear provide private outdoor space for children, pets or container gardening. The location is quiet yet convenient with local shops, schools and frequent bus and rail links to Edinburgh; road access to the M90 and park-and-ride sites is close by. Broadband speeds are fast and mobile signal is excellent.
The house sits in an area classed as socio-economically challenged, which affects resale comparables and local investment yields. The property is offered freehold with council tax band B and all carpets and blinds included. Overall this is a practical, affordable starter home or buy-to-let with scope for cosmetic modernisation to increase value.
Notable drawbacks: the property is basic in specification and likely requires some updating to kitchens, bathrooms and finishes to suit modern tastes. There is only a shower room (no separate bath) and the plot is modest, so outdoor space is limited. Prospective buyers should view to confirm exact condition and room sizes before committing.
2 bedroom end of terrace house for sale in 145 Main Street, Townhill, Dunfermline, KY12 0EZ, KY12 — £144,950 • 2 bed • 1 bath • 679 ft²
2 bedroom terraced house for sale in Walls Place, Dunfermline, KY11 — £144,995 • 2 bed • 1 bath • 642 ft²
2 bedroom flat for sale in 56 Arthur Street, Dunfermline, KY12 0JP, KY12 — £119,950 • 2 bed • 1 bath • 620 ft²
3 bedroom terraced house for sale in Mackie Place, Dunfermline, KY11 — £145,000 • 3 bed • 1 bath • 872 ft²
2 bedroom end of terrace house for sale in Glen Beasdale Court, Dunfermline, KY11 — £145,000 • 2 bed • 1 bath • 648 ft²
2 bedroom terraced house for sale in 9 Glen Fruin Grove, Dunfermline, KY11 8TN, KY11 — £135,000 • 2 bed • 1 bath • 651 ft²






















































































