E13 9DB - 2 bedroom ground floor flat for sale in Green Street, Londo…

View on Property Piper

2 bedroom ground floor flat for sale in Green Street, London, E13

Summary - 484 GREEN STREET LONDON E13 9DB

2 bed 1 bath Ground Flat

Refurbished two-bed ground-floor flat with private garden and long lease, close to Upton Park station..
Recently refurbished throughout with modern fixtures and skylights
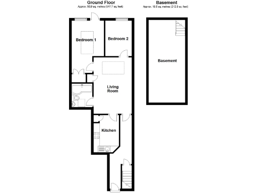
A recently refurbished two-bedroom ground-floor flat with a private garden, arranged over a compact 547 sq ft footprint. The apartment has been updated throughout with engineered wooden floors, modern kitchen appliances, skylights and designer radiators; it includes useful basement storage and direct garden access from the principal bedroom.

The flat is well placed for transport and local amenities, a short walk from Upton Park station and a wide range of shops, cafés and places of worship. Practical benefits include fast ultrafast broadband (up to 330 Mbps), mains gas central heating and a long lease (107 years remaining).

Buyers should note material drawbacks: the property is leasehold with ground rent listed as "Peppercoen" and an ad-hoc service charge; the EPC is D and external walls are solid brick with assumed no insulation. The immediate area records higher crime rates and scores as a deprived neighbourhood, which may affect resale considerations and insurance costs.

This flat suits first-time buyers or buy-to-let investors seeking a move-in-ready London property with outdoor space and good connectivity, but who are comfortable with the tenure details and local area profile.

Property Details

Image Descriptions

Floorplan Description

Rooms

Textual Property Features

Target Audience

AI Tags

Detected Visual Features

EPC Details

Nearby Schools

Nearest Bars And Restaurants

,,,,}

Nearest General Shops

,,}

Nearest Grocery shops

,,}

Nearest Supermarkets

,,}

Nearest Religious buildings

,,}

Nearest Medical buildings

,,,}

Nearest Airports

,}

Nearest Leisure Facilities

,,,,}

Nearest Tourist attractions

,,}

Nearest Train stations

,,,,}

Nearest Bus stations and stops

,,,,}

Nearest Hotels

,,}

Tags

Local Market Stats

AirBnB Data

Similar Properties

Meta

High Res Images

Compatible Images

Low res Images

Thumbnails

Raw Images

High Res Floorplan Images

Compatible Floorplan Images

Low res Floorplan Images

FloorplanImages Thumbnail

Raw Floorplan Images