Prestigious 0.4‑acre plot with full planning for a 7,800 sq ft family home..
- Full planning permission for ~7,800 sq ft detached family home
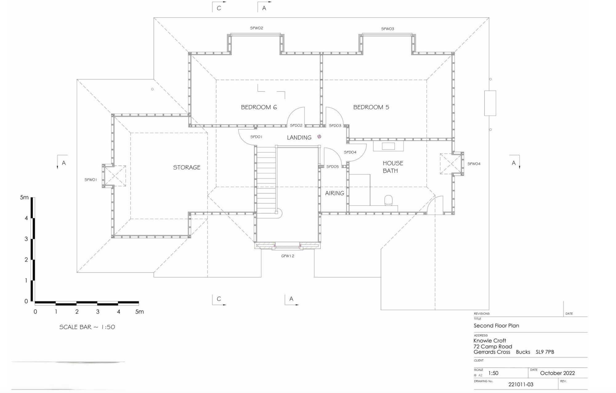
- 6 bedrooms plus separate annexe/au pair suite above garage
- Level 0.4‑acre plot with wide frontage and gated access
- Existing structure demolished; immediate start possible
- Walking distance to Gerrards Cross town and station
- Purchaser liable for Community Infrastructure Levy (CIL)
- Price reflects plot & planning only, not finished build
- Council tax for completed home expected to be very expensive
Knowle Croft is offered as a rare plot-and-permission package on Camp Road, one of Gerrards Cross’s most prestigious streets. Full planning permission exists for a three‑storey, circa 7,800 sq ft detached residence with gated access, substantial reception space and six bedrooms plus a self-contained annexe above the garage. The existing dwelling has been demolished so construction can begin immediately.
The 0.4‑acre, level plot provides a generous frontage and well‑established garden setting overlooking Bulstrode Park. The approved layout includes multiple elegant reception rooms, a grand open-plan kitchen/dining/family area, principal suite with dressing room and en‑suite, and four further en‑suite bedrooms on the first and second floors — ideal for a large family seeking space and privacy.
Location is a key strength: the site sits within easy walking distance of Gerrards Cross town centre and fast rail services to London Marylebone. The area benefits from highly regarded independent schools and strong local amenities, making the plot appealing to families and professionals. The design language follows a modern Tudor aesthetic to complement neighbouring houses.
Material considerations: the price refers to the site and approved planning only — the purchaser will be responsible for the Community Infrastructure Levy (CIL) payment to the District Council and any build costs. Council tax on a finished scheme is expected to be high. The sale presents an opportunity to work with a developer on specification, but buyers should allow for inevitable additional statutory and construction expenses.
6 bedroom detached house for sale in Camp Road, Gerrards Cross, Buckinghamshire, SL9 — £2,250,000 • 6 bed • 6 bath • 7899 ft²
6 bedroom detached house for sale in Valley Way, Gerrards Cross, SL9 — £4,250,000 • 6 bed • 5 bath • 8538 ft²
Land for sale in Camp Road, Gerrards Cross, SL9 — £2,250,000 • 7 bed • 6 bath • 7800 ft²
4 bedroom detached house for sale in Valley Way, Gerrards Cross, Buckinghamshire, SL9 — £2,100,000 • 4 bed • 1 bath • 1654 ft²
7 bedroom detached house for sale in The Spinney, Gerrards Cross, Buckinghamshire, SL9 — £2,450,000 • 7 bed • 6 bath • 4437 ft²
5 bedroom detached house for sale in Windsor Road, Gerrards Cross, SL9 — £1,800,000 • 5 bed • 4 bath • 3524 ft²


































































