Character-filled six-bedroom house with gated parking and garden.
Edwardian semi-detached with strong period features and tall ceilings
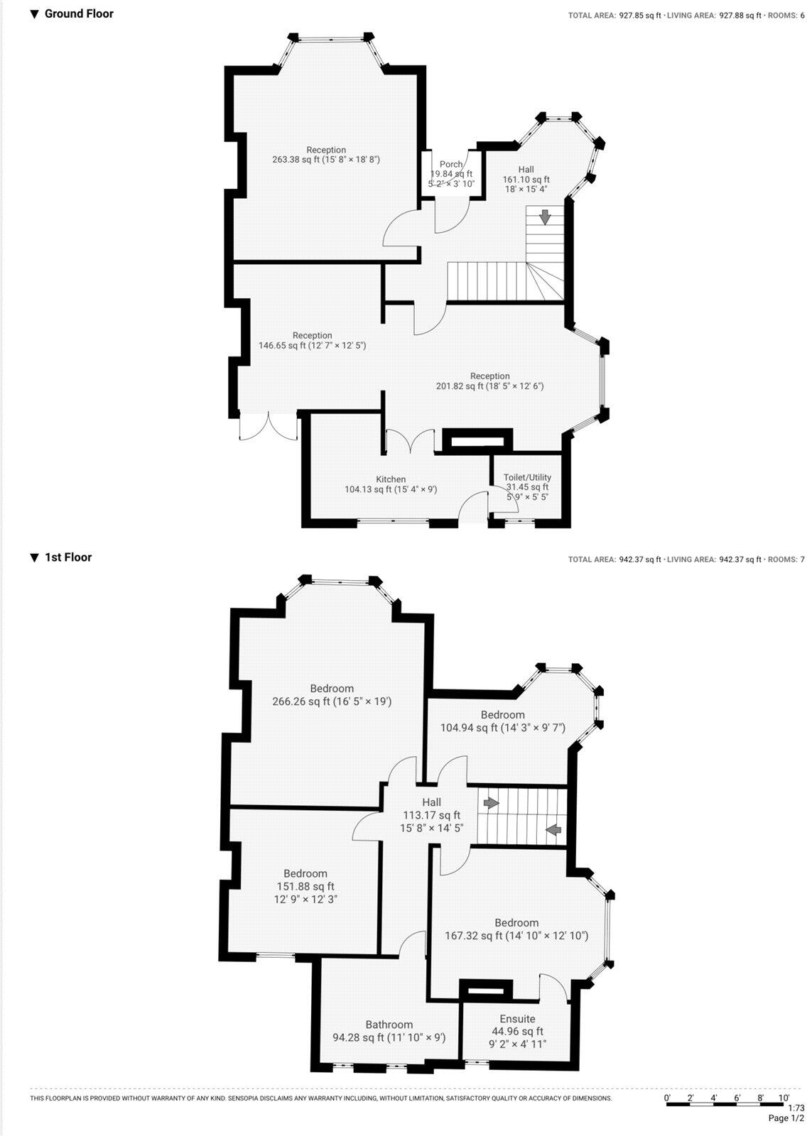
A distinguished Edwardian semi-detached home arranged over three floors, offering generous living space and strong period character. Tall ceilings, bay windows and stained-glass detailing give the house an authentic, storybook feel while large reception rooms and a dedicated study suit busy family life and home working.
The property provides six well-proportioned bedrooms and two bathrooms, including a principal en-suite. The kitchen, utility and three reception rooms give flexibility for formal dining, relaxed family evenings by the log burner, and entertaining. Outside, mature front and rear gardens and an electric-gated driveway with workshop deliver privacy and useful storage or hobby space.
Practical strengths include freehold tenure, fast broadband, excellent mobile signal and a decent plot size. Nearby primary schools are rated Good; two local secondary schools have recent ratings that require improvement, which some buyers may wish to note. Crime levels are average and flood risk is low.
This is a spacious family property that blends period charm with modern conveniences and parking. It will appeal to buyers seeking character and room to grow; some purchasers may choose to update parts of the house to their own taste.
5 bedroom semi-detached house for sale in Meddowcroft Road, Wallasey, Wirral, CH45 — £250,000 • 5 bed • 4 bath • 2007 ft²
4 bedroom semi-detached house for sale in Earlston Road, Wallasey, Wirral, CH45 — £310,000 • 4 bed • 2 bath • 1446 ft²
6 bedroom semi-detached house for sale in Mount Pleasant Road, Wallasey, Wirral, CH45 — £310,000 • 6 bed • 2 bath • 1847 ft²
6 bedroom detached house for sale in Beresford Road, Wallasey, Wirral, CH45 — £575,000 • 6 bed • 3 bath • 3446 ft²
5 bedroom semi-detached house for sale in Seaview Road, Wallasey, Wirral, CH45 — £310,000 • 5 bed • 1 bath • 2154 ft²
5 bedroom detached house for sale in Rolleston Drive, Wallasey, Wirral, CH45 — £725,000 • 5 bed • 3 bath • 3120 ft²


















































































































