Bright modern one-bed close to Southampton Common — ideal for first-time buyers.
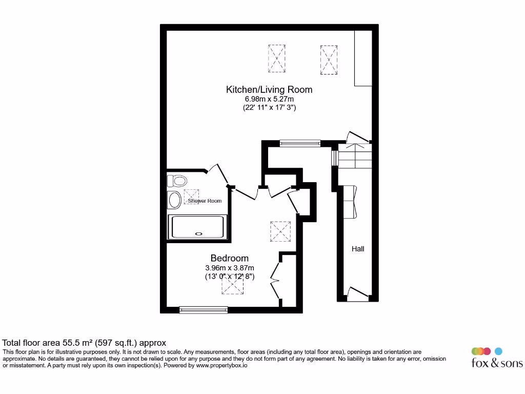
Top-floor one-bedroom flat with skylights and modern open-plan layout
Off-street communal parking plus on-street parking available
Chain-free sale — available to move in quickly
Leasehold — c.105 years remaining; additional lease pack fees possible
Heating via electric room heaters (no gas central heating)
Limited headroom at eaves due to loft/top-floor position
Service charge £815 (below average); ground rent £100
Local area: cosmopolitan student neighbourhoods; crime levels are high
A compact top-floor one-bedroom flat in Firtree Lodge, offered chain-free and ready to move into. The open-plan living/kitchen with skylights feels bright and modern, while fitted storage in the bedroom helps maximise the available space. Communal parking plus on-street options add practical convenience in this central Southampton location.
This property suits a first-time buyer or someone seeking a buy-to-let in a cosmopolitan, well-connected area close to Southampton Common. The finish is contemporary throughout, with a fitted kitchen and a walk-in shower room; the apartment’s 597 sq ft provides a sensible, low-maintenance urban home.
Be clear about the practical considerations: the flat is leasehold (approximately 105 years remaining), uses electric room heaters rather than a mains gas system, and has limited headroom at the eaves because it occupies the top-floor/loft space. The local area records higher-than-average crime, which may influence some buyers’ decisions.
Running costs are modest: service charge £815 (below average), ground rent £100 and very cheap council tax. No significant flood risk. These factors, combined with the chain-free status, make the flat an accessible purchase for first-time buyers or investors seeking steady rental demand nearby universities and transport links.
1 bedroom flat for sale in Millbrook Road East, Southampton, Hampshire, SO15 — £175,000 • 1 bed • 1 bath • 541 ft²
1 bedroom apartment for sale in Hill Lane, Southampton, SO15 — £100,000 • 1 bed • 1 bath • 528 ft²
1 bedroom apartment for sale in Howard Road, Southampton, Hampshire, SO15 — £115,000 • 1 bed • 1 bath • 325 ft²
1 bedroom flat for sale in Welbeck Avenue, Southampton, Hampshire, SO17 — £135,000 • 1 bed • 1 bath • 469 ft²
1 bedroom flat for sale in Park Road, Southampton, Hampshire, SO15 — £125,000 • 1 bed • 1 bath • 369 ft²
1 bedroom flat for sale in Hill Lane, Southampton, SO15 — £130,000 • 1 bed • 1 bath • 463 ft²






















































