**Standout Features:**
- Ground floor salon/retail space in a prime town center location
- Grade II Listed Building, reflecting historical value
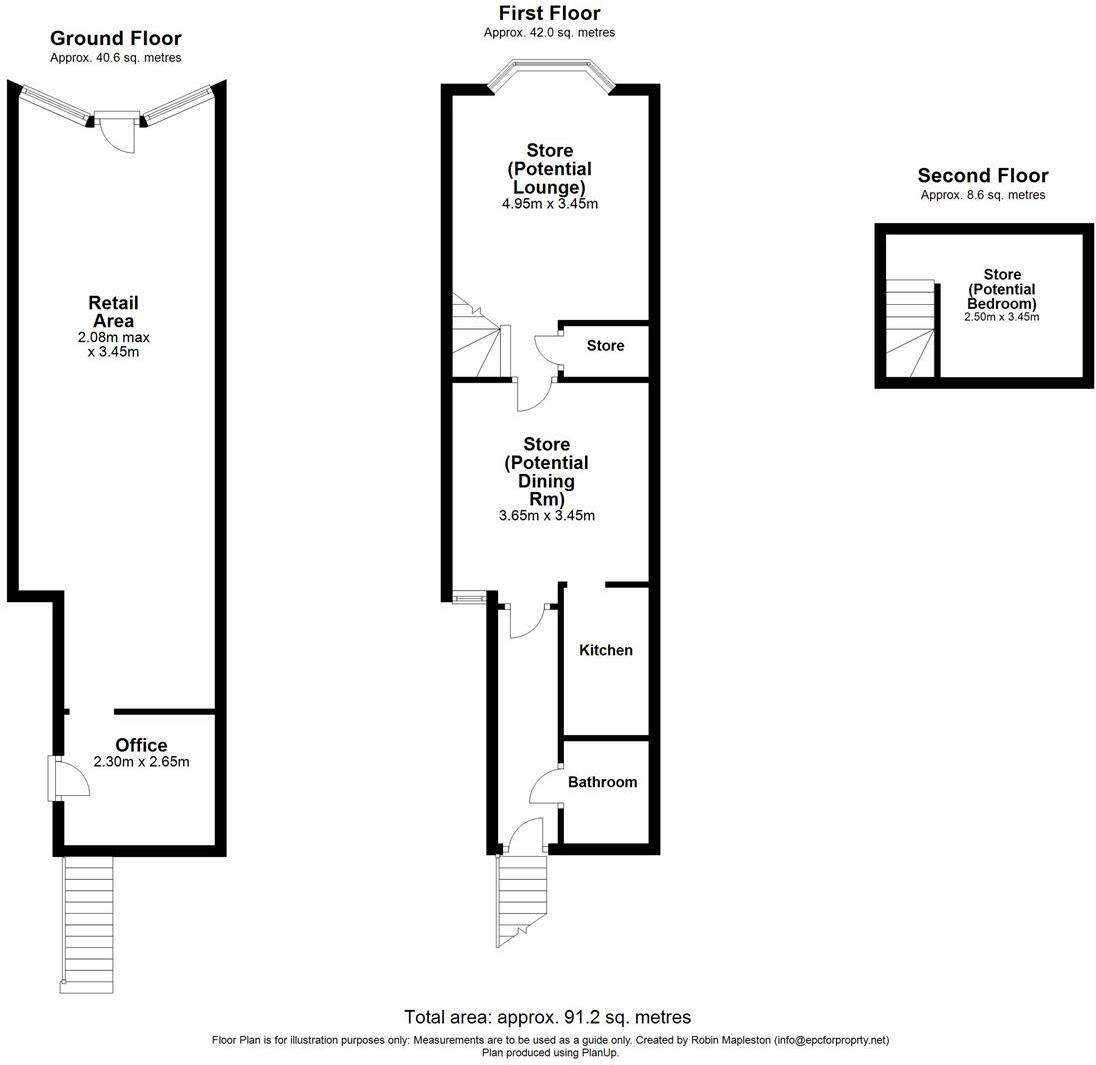
- Spacious area with potential for a flat above (currently used for storage)
- High foot traffic area ideal for various business types
- EPC rating of E, suggesting room for improvement in energy efficiency
- Freehold tenure provides full ownership and flexibility
**Summary:**
Positioned in the bustling heart of Louth, this commercial property at 90 Eastgate offers exciting opportunities for entrepreneurs and investors alike. The ground floor, formerly utilized as a salon, features an open layout, over 550 square feet of versatile space, and an additional area previously set up as a flat, which enhances potential rental income or can be transformed into further business endeavors. The property sits within a Grade II listed building, highlighting its unique character and historical significance.
With essential amenities and a variety of shops and services within walking distance, including supermarkets, bakeries, and banks, the prime location ensures excellent visibility and footfall, attracting a diverse clientele. While structural renovations may be limited due to the listed status, the charm of this Victorian storefront combined with the potential for modern updates supports the vision of a thriving business. This property serves as a blank canvas ready for innovative ideas; however, note that it will require maintenance to address its typical historic building features. Don’t miss this chance to invest in a rare commercial opportunity that embodies both tradition and potential!
Commercial property for sale in Eastgate, Louth, LN11 — £149,950 • 1 bed • 1 bath • 701 ft²
Commercial property for sale in Eastgate, Louth, LN11 — £139,950 • 1 bed • 1 bath • 1388 ft²
Shop for sale in Eastgate, Louth, LN11 — £1,250,000 • 1 bed • 1 bath • 10000 ft²
Commercial property for sale in Eastgate, Louth, LN11 — £375,000 • 1 bed • 1 bath • 1023 ft²
Commercial property for sale in Mercer Row, Louth, LN11 — £95,000 • 1 bed • 1 bath • 409 ft²
Commercial property for sale in Eastgate, Louth, LN11 — £150,000 • 1 bed • 1 bath • 1230 ft²














































