Character features, private garden and excellent commuter links a short walk away.
Grade II listed period cottage with exposed beams and inglenook fireplace
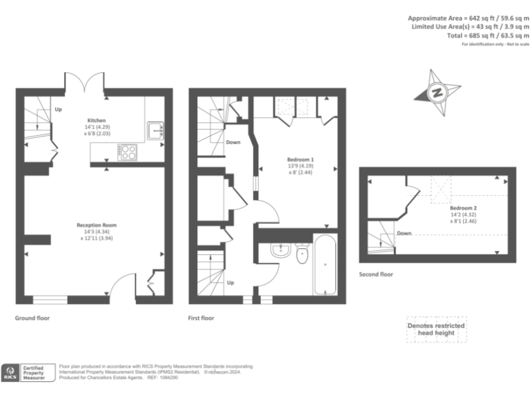
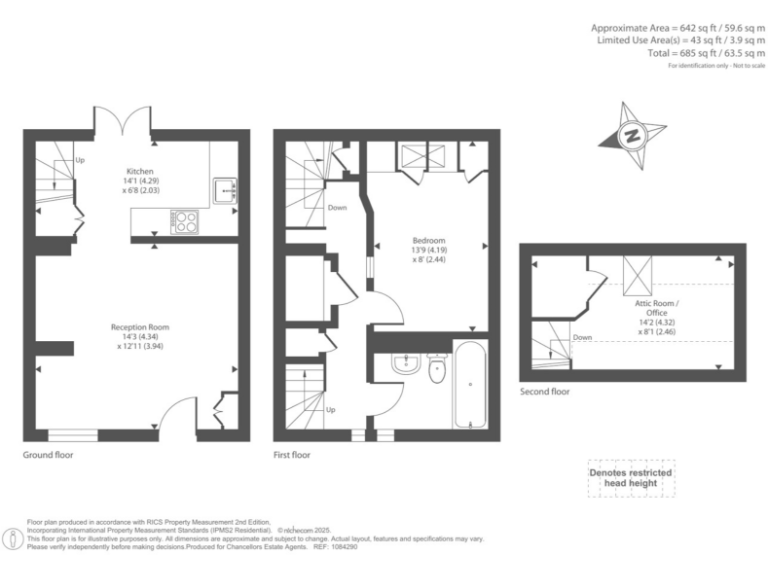
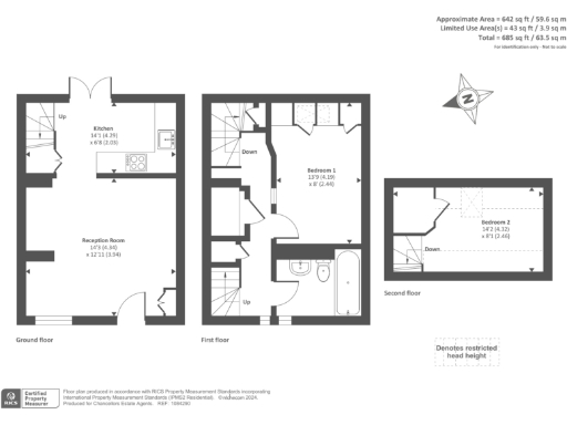
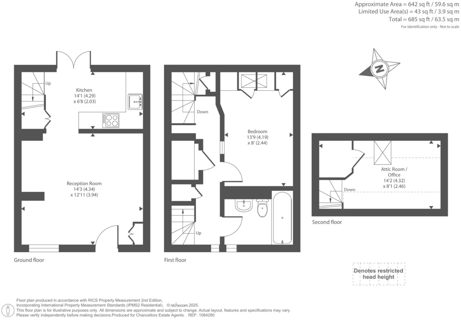
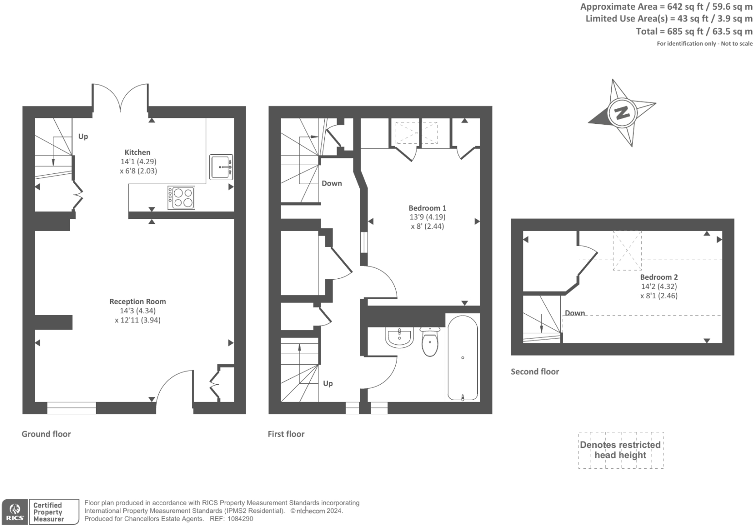
This Grade II listed mid-terrace cottage sits in central Chinnor, offering authentic 18th-century character with exposed beams and an inglenook fireplace. The property’s modest footprint (685 sqft) and small private rear garden suit buyers seeking a manageable village home close to local shops and transport links.
The interior retains period charm and practical upgrades such as double glazing (installed post-2002) and mains gas central heating with a boiler and radiators. Fast broadband, low local crime and a low council tax band add day-to-day convenience, while outstanding and good-rated schools nearby will appeal to buyers with young families or commuters.
Buyers should note the listed status will restrict alterations and may increase maintenance costs; the building’s solid brick walls are assumed uninsulated which could affect energy bills and comfort. The cottage presents straightforward refurbishment potential rather than a full renovation—an opportunity to modernise services or improve insulation within the constraints of listed-building consent.
Overall this is a characterful village cottage for someone wanting character, convenience and commuter access rather than a large modern home. It’s best suited to first-time buyers or couples prepared to embrace period maintenance and planning limitations in exchange for charm and location.
2 bedroom semi-detached house for sale in Keens Lane, Chinnor, Oxfordshire, OX39 — £395,000 • 2 bed • 1 bath • 801 ft²
2 bedroom terraced house for sale in Lower Road, Chinnor, OX39 — £360,000 • 2 bed • 1 bath • 637 ft²
3 bedroom semi-detached house for sale in Station Road, Chinnor, Oxfordshire, OX39 — £375,000 • 3 bed • 1 bath • 947 ft²
4 bedroom end of terrace house for sale in Church Street, Great Missenden, HP16 — £1,050,000 • 4 bed • 2 bath • 2252 ft²
3 bedroom detached house for sale in West Lane, Bledlow, HP27 — £1,195,000 • 3 bed • 2 bath • 1690 ft²
2 bedroom terraced house for sale in Lower Icknield Way, Chinnor, Oxfordshire, OX39 — £400,000 • 2 bed • 1 bath • 1201 ft²






































































