Large freehold commercial building with character and conversion potential in Derby city centre..
Freehold four‑storey building totalling ~16,264 sq ft (approx. 1,511 sqm)
Prominent Cathedral Quarter frontage with strong pedestrian footfall
Vacant; previously restaurant/bar, fitted kitchen and cellar areas
Requires refurbishment to modern standards and regulatory compliance
Electric room heaters only; main fuel is electricity (unspecified tariff)
High business rates (RV £91,000) and management cost implications
Located in a very deprived area with very high local crime levels
Flexible for multiple commercial uses or conversion subject to planning
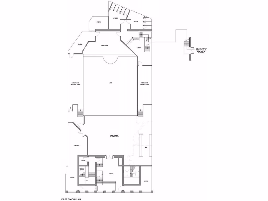
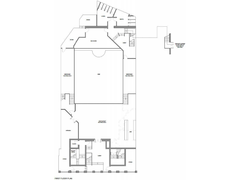
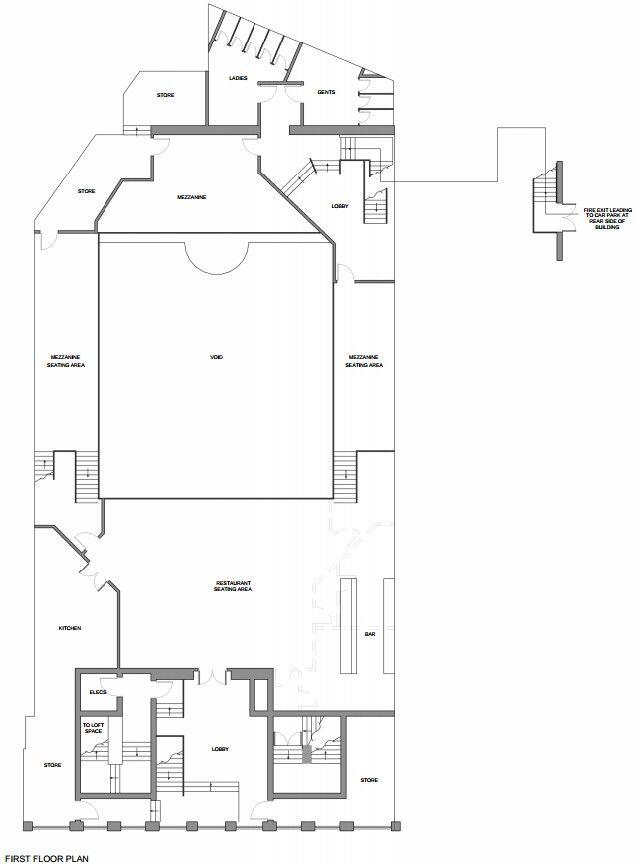
A rare freehold opportunity in Derby’s Cathedral Quarter, this substantial four‑storey commercial building offers exceptional scale and flexibility across approximately 16,200 sq ft. Its prominent frontage on Babington Lane/Sadler Gate benefits from strong pedestrian footfall, central amenities and excellent transport links — features that appeal to operators, developers or investors seeking a city‑centre asset with presence.
Internally the property retains theatrical character: high ceilings, large open-plan assembly spaces, basement cellars and former back‑of‑house kitchen and staff facilities. The building has most recently traded as hospitality/entertainment and is sold vacant, allowing a wide range of potential commercial uses or conversion subject to planning consent. The freehold title and very large footprint present scope for redevelopment, amalgamation of uses or long‑lease income strategies.
There are important practical considerations: the building will require refurbishment to meet modern retail/restaurant standards and current regulations, with electric room heaters as the primary heating source. Business rates are significant (RV £91,000) and the property sits in an area recorded as very deprived with very high local crime levels — factors that affect operating costs, tenant demand and management plans.
This property suits an experienced investor or developer able to manage a central‑city refurbishment, navigate planning for reuse, and factor in security and operational costs. When refurbishment and repositioning are undertaken, the combination of size, location and character can deliver a distinctive, high‑profile city‑centre scheme.
High street retail property for sale in 24-25 Cornmarket, Derby, Derbyshire, DE1 2DP, DE1 — £550,000 • 1 bed • 1 bath • 10000 ft²
Commercial property for sale in 28/28a Sadler Gate, Derby, Derbyshire, DE1 — £250,000 • 1 bed • 1 bath • 1198 ft²
Convenience store for sale in Units 1 - 6, East Street, Derby, DE1 — £950,000 • 1 bed • 1 bath • 8405 ft²
High street retail property for sale in The Friary, Friar Gate, Derby, DE1 1FG, DE1 — £850,000 • 1 bed • 1 bath • 27878 ft²
2 bedroom apartment for sale in Cheapside, Derby, DE1 — £250,000 • 2 bed • 2 bath • 1517 ft²
Residential development for sale in 10 Iron Gate, Derby, Derbyshire, DE1 3FJ, DE1 — £450,000 • 1 bed • 1 bath • 3530 ft²


























