Private 1-acre family home with annexe and stables, ten minutes from Canterbury.
1. 1.04 acres of mature gardens and meadow, high hedges for privacy
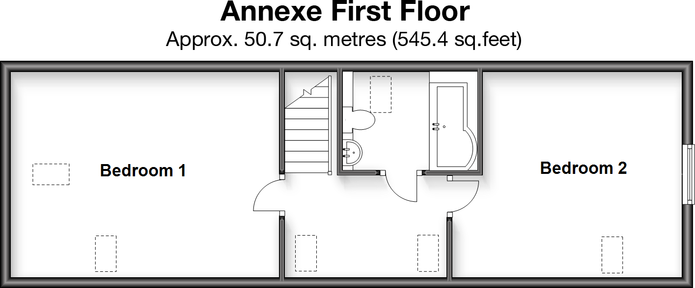
2. Detached 6-bed house plus separate 2-bed annexe
3. Triple-aspect lounge, kitchen island, conservatory and oak flooring
4. Block of four stables and hard standing — equestrian/outbuilding potential
5. New gravel driveway and double garage with automatic doors
6. LPG central heating (not mains gas) — consider running costs
7. Total internal area quoted ~1,023 sq ft — compact for six bedrooms
8. Broadband average; council tax described as quite expensive
Set within 1.04 acres of mature gardens and surrounded by woodland in an Area of Outstanding Natural Beauty, Woodlands is a detached family house with a separate two-bedroom annexe and a double garage. The house combines generous reception rooms, a large kitchen with island, conservatory and a triple-aspect lounge with wood burner. The annexe offers independent accommodation with lounge/diner, fitted kitchen and two bedrooms — useful for extended family or rental income.
Practicalities are clear: the property is freehold, built 2007–2011 with double glazing and LPG-fired central heating (not mains gas). A new gravel driveway and automatic garage doors add convenience. The grounds include a wildflower meadow, productive vegetable garden, wildlife ponds and a block of four stables with hard standing — excellent for equestrian or outbuilding conversion potential. Canterbury city centre is about a 10-minute drive and local schools include a mix of well-regarded independent and state options.
Buyers should note the trade-offs: the stated total internal area (approximately 1,023 sq ft) is small for six bedrooms and will feel compact in places; verify floor areas and room measurements. Broadband speeds are average, council tax is described as quite expensive, and the large mature plot will demand ongoing maintenance. LPG heating and rural water/septic arrangements may affect running costs. Overall, this is a private, versatile estate for a family seeking countryside living close to the city, or for those wanting an annexe and equestrian/outbuilding potential.
4 bedroom bungalow for sale in Palmars Cross Hill, Rough Common, Canterbury, Kent, CT2 — £695,000 • 4 bed • 2 bath • 2050 ft²
4 bedroom detached house for sale in Fleets Lane, Tyler Hill, Canterbury, Kent, CT2 — £1,750,000 • 4 bed • 2 bath • 3068 ft²
5 bedroom detached house for sale in Nackington Road, Canterbury, Kent, CT4 — £1,100,000 • 5 bed • 2 bath • 2013 ft²
6 bedroom detached house for sale in Court-at-Street, Hythe, Kent, CT21 — £1,500,000 • 6 bed • 4 bath • 5197 ft²
5 bedroom detached house for sale in The Woodlands
Herne Bay Road
Sturry
CT2 0NJ, CT2 — £599,995 • 5 bed • 1 bath • 1458 ft²
7 bedroom detached house for sale in Bekesbourne Lane, Bekesbourne, Canterbury, Kent, CT4 — £2,000,000 • 7 bed • 6 bath • 1357 ft²






































































































