NW11 7SB - 1 bedroom retirement property for sale in Heathside, Finchl…

View on Property Piper

1 bedroom retirement property for sale in Heathside, Finchley Road, NW3, NW11

Summary - HEATHSIDE, 562 FLAT 38 FINCHLEY ROAD LONDON NW11 7SB

1 bed 1 bath Retirement Property

**Standout Features:**
- 1-bedroom retirement flat on the third floor with accessible lifts
- Located in a well-maintained development with on-site management and 24-hour emergency call system
- Access to beautiful communal gardens, a residence lounge, and a guest suite for visitors
- Ample on-site parking available
- Excellent transport links to Central London

**Notable Concerns:**
- Leasehold with 61 years remaining, potentially problematic for mortgage lending
- Above-average service charge of £6000
- High crime rate in the area

This inviting one-bedroom flat represents a unique opportunity for those aged 55 and above seeking a retirement property in a vibrant community. With a delightful communal patio and landscaped gardens, residents can enjoy serene outdoor spaces. The modern, bright living area features neutral tones and large windows, creating a cozy atmosphere. Ideal for individuals looking for comfort and security, this property is complemented by the presence of an on-site caretaker, handyman, and a 24-hour emergency call system for peace of mind.

While the property boasts secure parking and excellent transport options, potential buyers should note the shorter lease term of 61 years, which may limit mortgage options. With a competitive asking price of £255,000 located in NW11, this apartment is perfect for first-time buyers or investors looking to benefit from a growing demand in this cosmopolitan area. Act quickly—opportunities like this don’t come around often!

Property Details

Image Descriptions

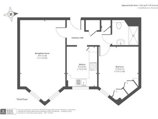
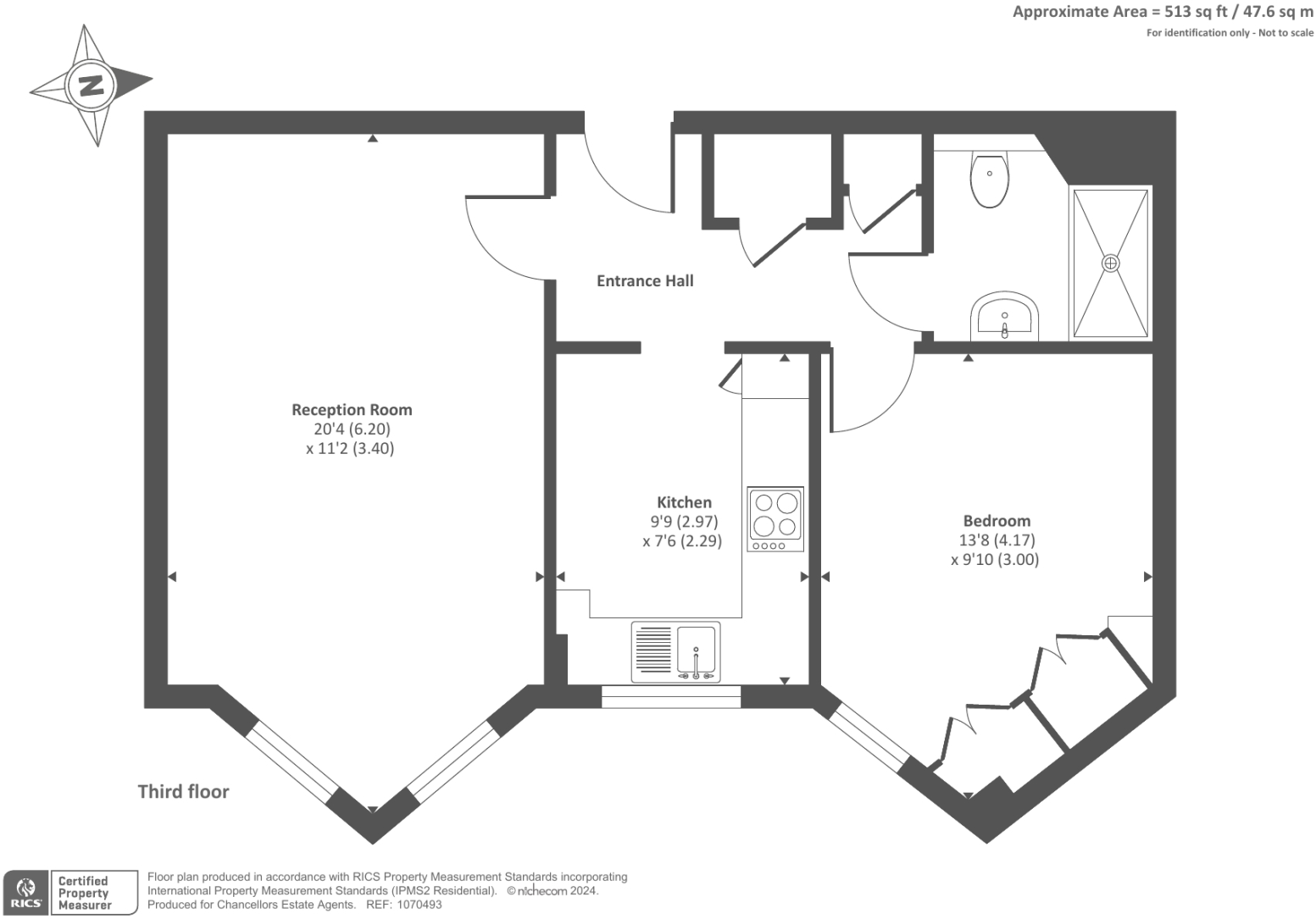
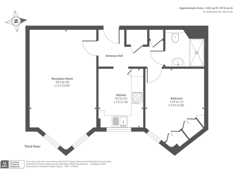
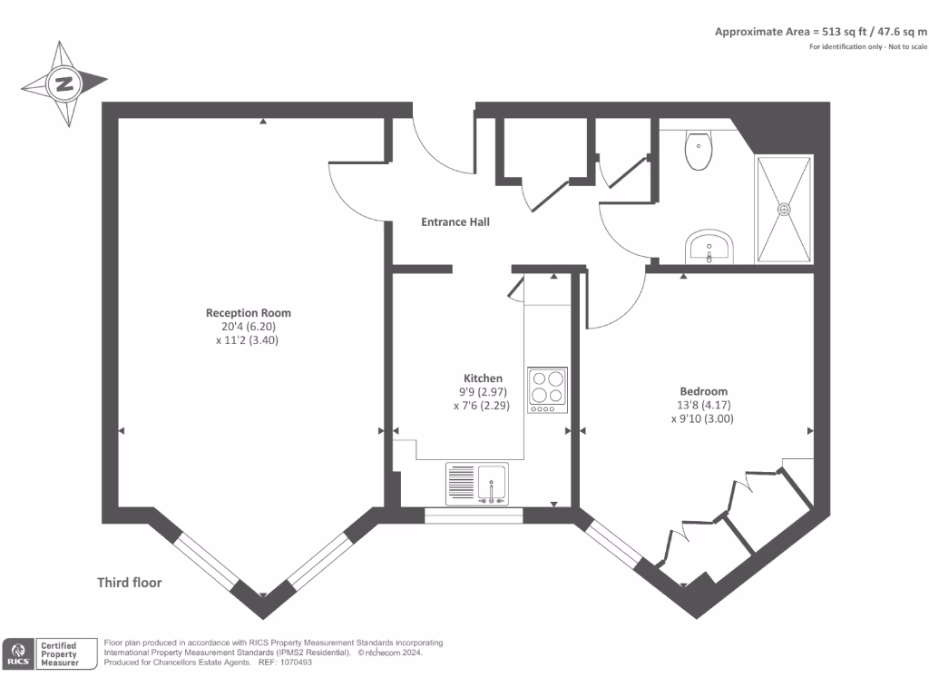
Floorplan Description

Rooms

Textual Property Features

Detected Visual Features

EPC Details

Nearby Schools

Nearest Bars And Restaurants

,,,,}

Nearest General Shops

,,}

Nearest Grocery shops

,,}

Nearest Supermarkets

,,}

Nearest Religious buildings

,,}

Nearest Medical buildings

,,,}

Nearest Airports

,}

Nearest Leisure Facilities

,,,,}

Nearest Tourist attractions

,,}

Nearest Train stations

,,,,}

Nearest Bus stations and stops

,,,,}

Nearest Hotels

,,}

Tags

Local Market Stats

AirBnB Data

Similar Properties

Meta

High Res Images

Compatible Images

Low res Images

Thumbnails

Raw Images

High Res Floorplan Images

Compatible Floorplan Images

Low res Floorplan Images

FloorplanImages Thumbnail

Raw Floorplan Images