Online auction sale with 6-week completion; refurbishment scope in Kings Norton.
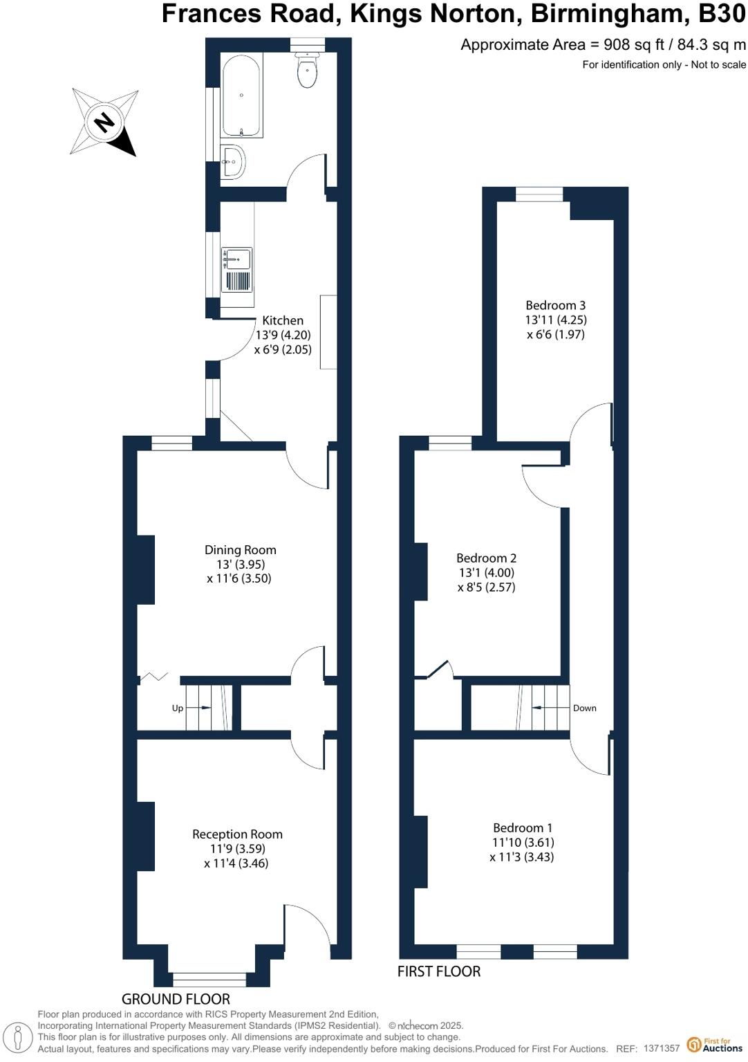
Freehold mid-terrace Victorian house, circa 1900–1929 (approx 908 sq ft)
This vacant mid-terraced Victorian house in Kings Norton is offered freehold via online auction with a six-week completion window. The property has three bedrooms, two reception rooms, a separate kitchen and one family bathroom across approximately 908 sq ft — a straightforward layout suited to rental conversion or owner-occupier improvement.
The house retains period features such as a bay window, ornate cornicing and high ceilings, offering strong scope to add value through sympathetic refurbishment. Services include mains gas boiler and radiators and double glazing (installation date unknown); walls are solid brick and likely uninsulated, so upgrading thermal efficiency will be needed when renovating.
Practical positives include a small enclosed rear garden, excellent mobile signal and fast broadband — useful for renters or modern family life. On-street parking only; the plot is small. Note the property is in a deprived area with above-average crime statistics, and it requires modernisation throughout, so budget accordingly for repairs, redecoration and possible insulation or upgrading works.
3 bedroom end of terrace house for sale in Old Oscott Lane, Great Barr, Birmingham, B44 — £175,000 • 3 bed • 1 bath • 771 ft²
3 bedroom semi-detached house for sale in Green Acres Road, Birmingham, West Midlands, B38 — £200,000 • 3 bed • 1 bath • 607 ft²
3 bedroom semi-detached house for sale in Bradstock Road, Birmingham, West Midlands, B30 — £195,000 • 3 bed • 1 bath • 614 ft²
3 bedroom end of terrace house for sale in Gorleston Road, Birmingham, West Midlands, B14 — £140,000 • 3 bed • 1 bath • 833 ft²
3 bedroom terraced house for sale in Vista Green, Birmingham, West Midlands, B38 — £175,000 • 3 bed • 1 bath • 705 ft²
3 bedroom terraced house for sale in 60 Dunsmore Road, Hall Green, Birmingham, West Midlands, B28 8EB, B28 — £195,000 • 3 bed • 1 bath














































































