**Standout Features:**
- Charming Victorian terraced house in a prime central location
- Moments from the beach and a short stroll to the High Street
- Contemporary kitchen and bright, open-plan living/dining area
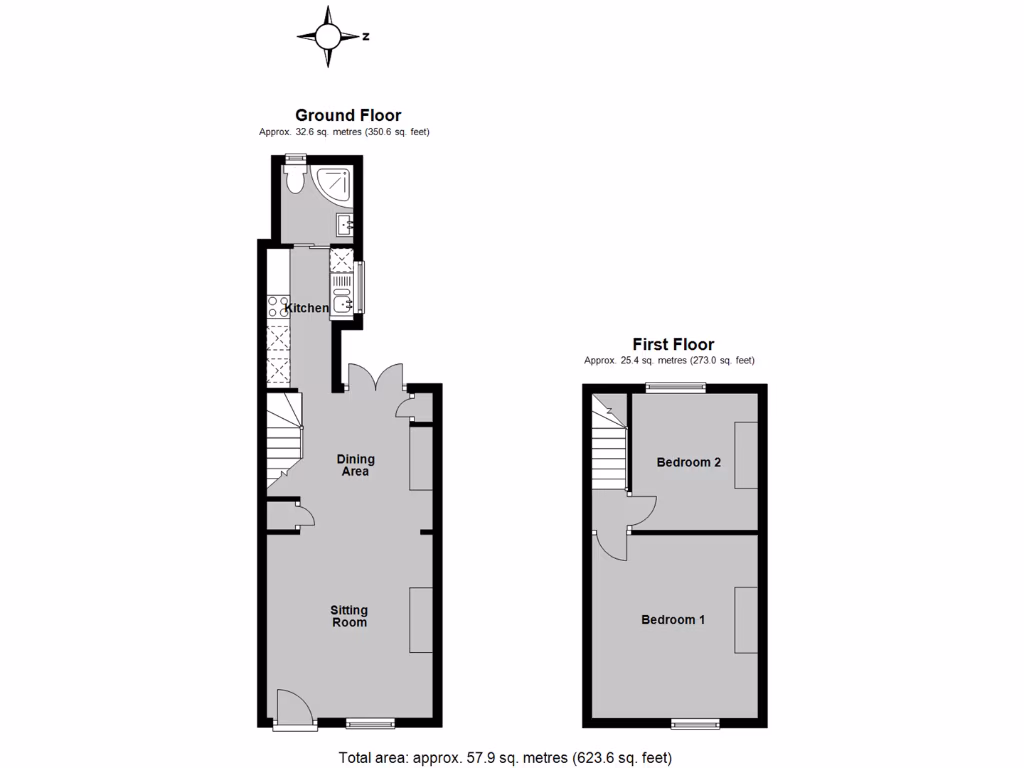
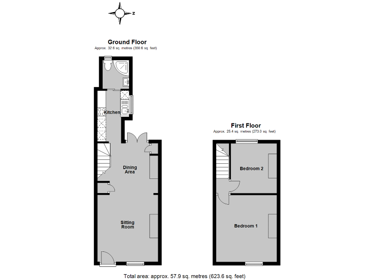
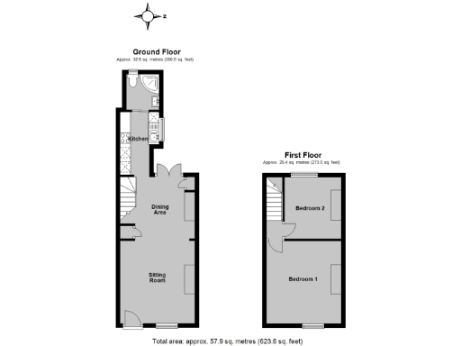
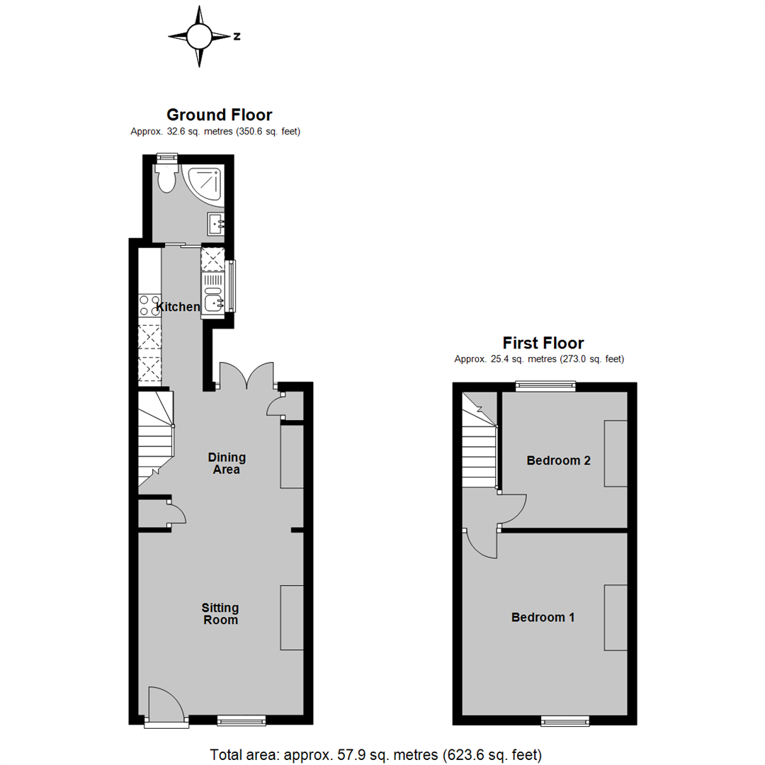
- 2 spacious double bedrooms
- West-facing 50ft rear garden, low-maintenance design
- No onward chain, perfect for swift movement into your new home
- Excellent rental potential, ideal for families or first-time buyers
Nestled in the highly sought-after area of Herne Bay, this delightful Victorian terraced house offers a blend of period charm and modern convenience. The property features an inviting open-plan living and dining area, filled with natural light and adorned with wood flooring. The contemporary kitchen enhances your culinary experience, making it perfect for both casual meals and entertaining. Upstairs, discover two generously sized double bedrooms that promise restful nights.
Enjoy the benefits of a 50ft west-facing garden, designed for ease of maintenance, creating an ideal outdoor oasis for relaxing or hosting gatherings. With no onward chain, you can move in quickly to make this house your home. Situated just moments from the vibrant beach and local amenities, including schools and leisure facilities, this property is perfect for families or those seeking a coastal retreat. However, it's worth noting that the area has higher crime rates and the property may require some minor upkeep. Don’t miss this chance to own a piece of coastal living—properties in this location won’t last long!
3 bedroom end of terrace house for sale in East Street, Herne Bay, CT6 — £425,000 • 3 bed • 2 bath • 2069 ft²
3 bedroom terraced house for sale in Kings Road, Herne Bay, CT6 — £340,000 • 3 bed • 2 bath • 1253 ft²
4 bedroom terraced house for sale in South Road, Herne Bay, CT6 — £340,000 • 4 bed • 2 bath • 1251 ft²
3 bedroom terraced house for sale in Charles Street, Herne Bay, Kent, CT6 — £375,000 • 3 bed • 1 bath • 1064 ft²
2 bedroom terraced house for sale in Hanover Street, Herne Bay, CT6 — £260,000 • 2 bed • 1 bath • 797 ft²
3 bedroom terraced house for sale in Brunswick Square, Herne Bay, CT6 — £375,000 • 3 bed • 1 bath • 1379 ft²














































