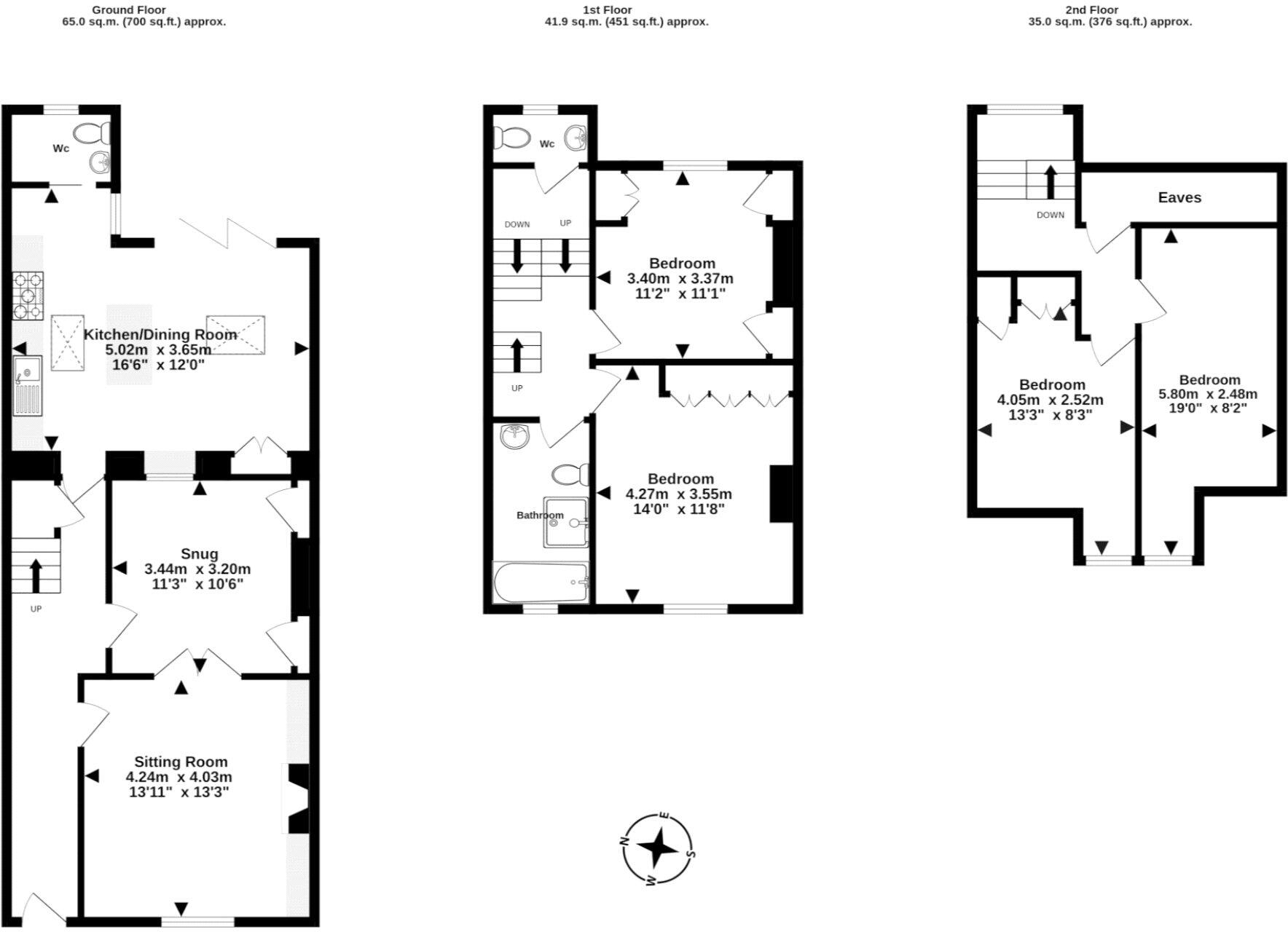
Characterful coastal family home with modern kitchen and low-maintenance courtyard garden.
Four good-sized bedrooms, flexible multi-storey layout
A spacious four-bedroom terraced home in picturesque Shaldon combining period-style character with contemporary fittings. The extended kitchen/dining room and a separate sitting room give flexible family living, while large windows and skylights flood the interior with natural light.
Practicalities are strong: gas central heating, double glazing, good mobile signal and average broadband. The rear courtyard is low-maintenance and secure, ideal for easy outdoor entertaining rather than large-scale gardening. Nearby amenities, an outstanding primary school and a seaside setting make this an attractive family base.
Buyers should note a single main bathroom (plus two cloakrooms), a small plot, and a medium flooding risk for the area. Tenure details are not provided and should be confirmed. Overall this property suits families seeking characterful, low-upkeep living close to local schools and coastal attractions.
3 bedroom terraced house for sale in Shoreside, Shaldon, Devon, TQ14 — £495,000 • 3 bed • 2 bath • 1250 ft²
4 bedroom terraced house for sale in Ringmore Road, Shaldon, Devon, TQ14 — £450,000 • 4 bed • 2 bath • 1787 ft²
4 bedroom terraced house for sale in Fore Street, Shaldon, Devon, TQ14 — £745,000 • 4 bed • 3 bath • 2049 ft²
4 bedroom terraced house for sale in Fore Street, Shaldon, Devon, TQ14 — £310,000 • 4 bed • 2 bath • 772 ft²
4 bedroom detached house for sale in The Chase, Bridge Road, Shaldon, TQ14 0DD, TQ14 — £655,000 • 4 bed • 2 bath • 1428 ft²
4 bedroom end of terrace house for sale in Middle Street, Shaldon, Devon, TQ14 — £495,000 • 4 bed • 1 bath • 1060 ft²














































































