Light-filled four-bedroom house with raised garden and town views.
- Recently renovated open-plan kitchen/diner with Bosch appliances
- Raised patio, new decking and lawned garden with countryside views
- Off-road parking for multiple cars; generous front driveway
- Former integral garage converted to bedroom — no garage remaining
- New combi boiler with Hive heating control for remote management
- EPC rated C; double glazing installed before 2002
- Timber-frame construction (as built) — noted rather than reported defect
- Council Tax Band D; moderate running costs expected
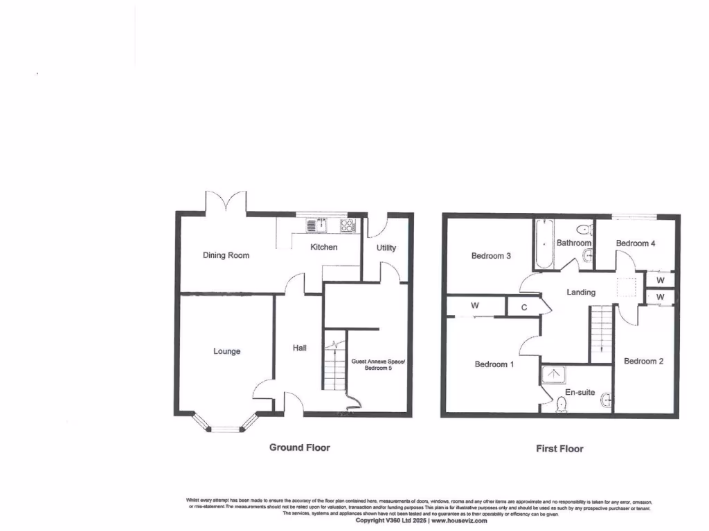
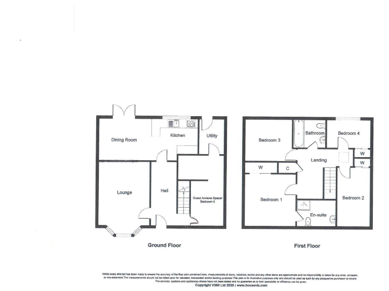
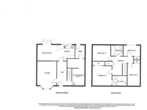
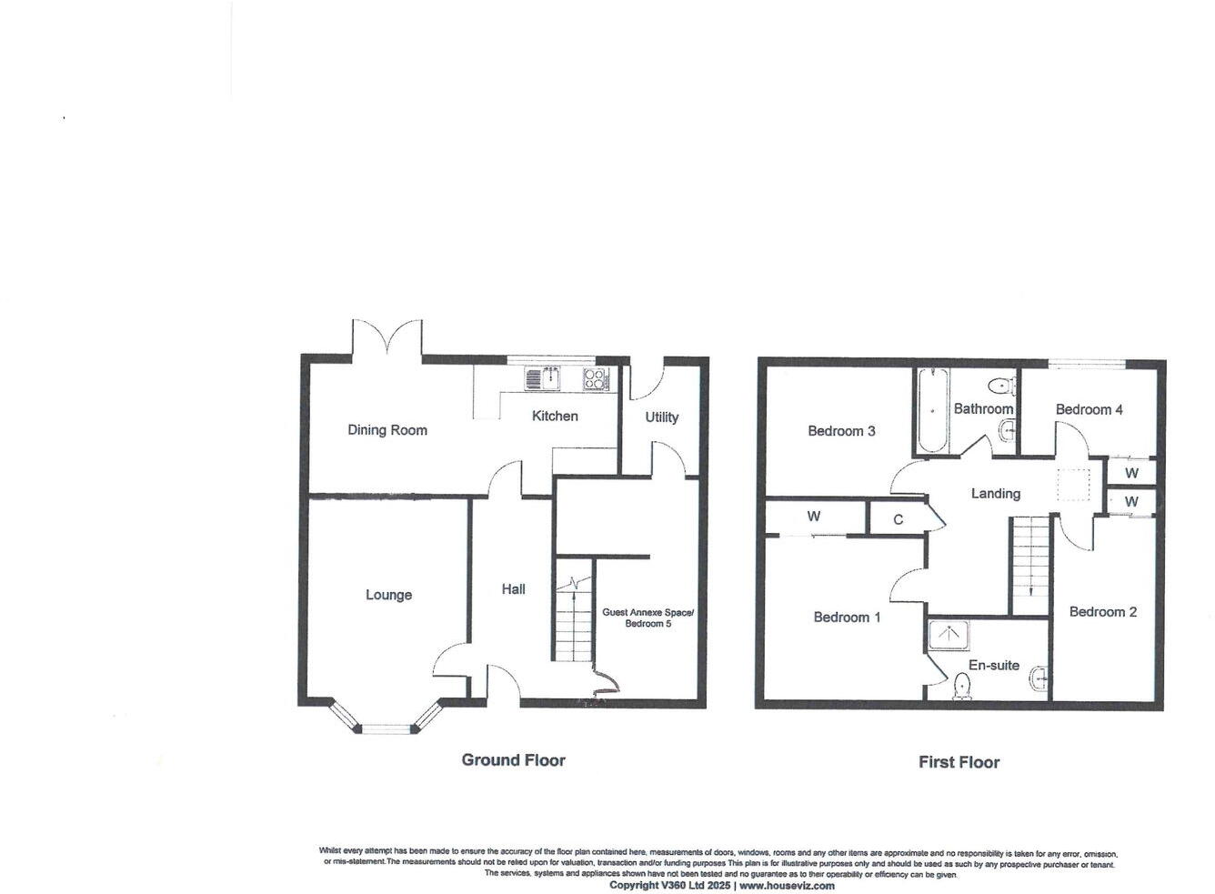
This immaculately presented four/ five-bedroom detached house has been extensively modernised and sits within easy walking distance of Wadebridge town centre. The recently renovated kitchen and added en-suite create a ready-to-move-into family home with practical layout and generous living space.
High points include raised patio and new decking ideal for morning coffee and entertaining, off-road parking for multiple vehicles and far-reaching town and countryside views from rear rooms. The property benefits from Hive heating control and a new combi boiler, plus built-in storage across the first-floor landing.
Notable considerations: the former integral garage has been converted to provide an additional ground-floor bedroom/second reception, so there is no garage. The property has double glazing installed before 2002 and an EPC C rating; construction is timber-frame (as built) which is noted rather than a defect. Council Tax Band D and moderate running costs should be noted.
Overall this freehold detached home suits growing families who want a modernised, low-maintenance house in a peaceful town-fringe location with excellent local schools and good broadband and mobile connectivity.
4 bedroom detached house for sale in Talmena Avenue, Wadebridge, PL27 — £425,000 • 4 bed • 3 bath • 1306 ft²
4 bedroom detached house for sale in Talmena Avenue, Wadebridge, Cornwall, PL27 — £490,000 • 4 bed • 2 bath • 1749 ft²
3 bedroom detached house for sale in Talmena Avenue, Wadebridge PL27 — £340,000 • 3 bed • 2 bath • 765 ft²
5 bedroom detached house for sale in Rowan Road, Wadebridge, PL27 — £499,000 • 5 bed • 3 bath • 1457 ft²
3 bedroom detached house for sale in Valley View, Wadebridge, Cornwall, PL27 — £425,000 • 3 bed • 1 bath • 1597 ft²
3 bedroom detached house for sale in Talmena Avenue, Wadebridge, Cornwall, PL27 — £335,000 • 3 bed • 1 bath • 1010 ft²






















































































