Chain-free three-bedroom home with garage, south garden and off-road parking.
Modern three-bed detached home with en suite to principal bedroom
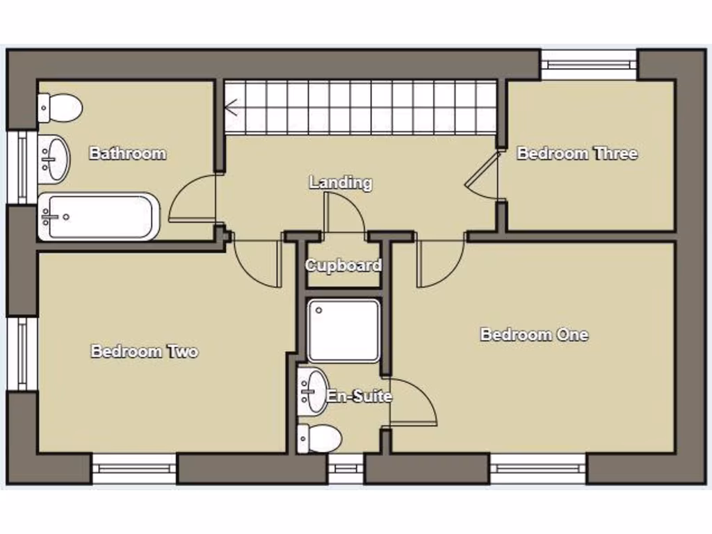
Set on a corner plot in Mayfield Park, this modern three-bedroom detached home offers practical family living with low-maintenance outdoor space. The ground floor provides a bright living room, roomy kitchen/diner with French doors to a south-facing rear garden, and a convenient cloakroom. Upstairs the principal bedroom includes an en suite, supported by two further bedrooms and a family bathroom.
Externally the property benefits from a single garage, off-road parking and an enclosed rear garden with a composite deck and patio — good for children and outdoor entertaining. The home is gas centrally heated and double glazed, reducing immediate upgrade needs. Being chain free makes a quicker move possible for buyers wanting to settle swiftly.
Important considerations: the overall plot and internal floorspace are modest; the property sits in an area with above-average crime statistics and high local deprivation scores. Council tax sits above average. These local factors may affect some buyers’ priorities but the house itself is presented in good order and suits buyers seeking a modern, low-upkeep family home or a rental investment close to Chester.
Viewings are advised to assess room proportions and outdoor space in person. The house is best suited to growing families or investors seeking a straightforward, chain-free purchase with immediate rental or occupancy potential.
3 bedroom detached house for sale in Garden Village, Saltney, CH4 — £267,000 • 3 bed • 3 bath • 804 ft²
3 bedroom detached house for sale in Tegid Way, Saltney, Chester, CH4 — £260,000 • 3 bed • 1 bath • 1139 ft²
3 bedroom detached house for sale in Mayfield Park, Saltney, Chester, Flintshire, CH4 — £265,000 • 3 bed • 2 bath • 983 ft²
3 bedroom detached house for sale in Mayfield Park, Chester, CH4 — £258,000 • 3 bed • 2 bath • 968 ft²
3 bedroom detached house for sale in Mayfield Park, Chester, CH4 — £270,000 • 3 bed • 2 bath • 944 ft²
3 bedroom link detached house for sale in Courtney Road, Saltney, Chester, CH4 — £230,000 • 3 bed • 1 bath • 1065 ft²






























































