**Standout Features:**
- Substantial three-storey semi-detached Victorian building
- Divided into six self-contained flats
- Freehold tenure with planning permission dating back to the 1960s
- Prime location on Fairmile Avenue, Streatham, SW16
- Impressive rental income potential
- Attractive outdoor space with a garden and extension possibilities
**Summary:**
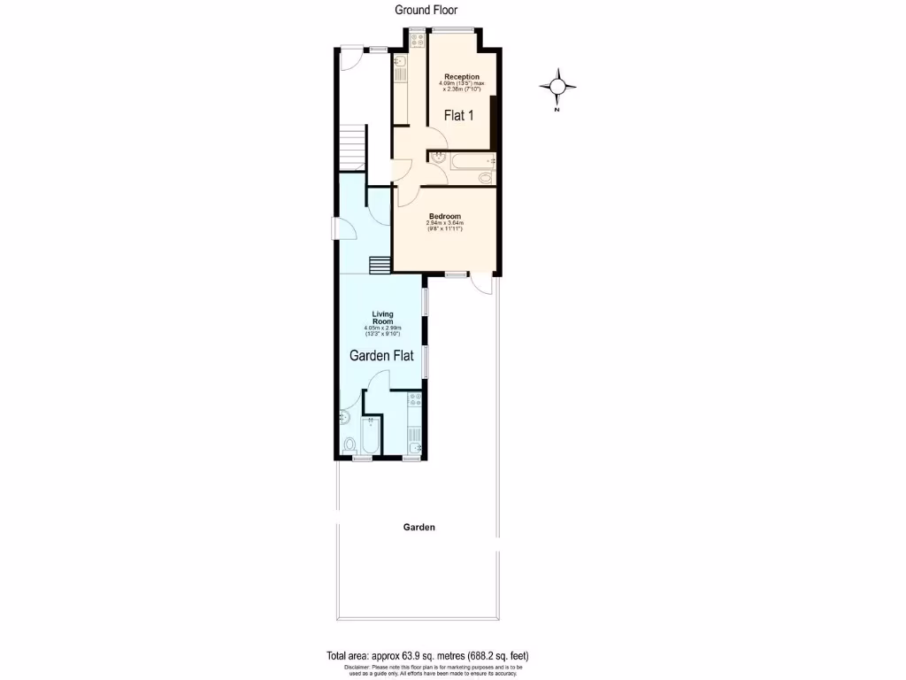
Discover a unique investment opportunity at 22 Fairmile Avenue, featuring an impressive three-storey Victorian building divided into six self-contained flats. Located in the vibrant community of Streatham, this property combines classic architectural elements—such as gable roofs and bay windows—with the rental potential provided by spacious units, making it an attractive option for both seasoned investors and first-time buyers.
The building comes freehold, allowing for full ownership and flexibility for future enhancements, supported by planning permission from the 1960s. The generous back garden offers further development potential for ground floor apartments, enhancing the property’s value and appeal. While the area does experience above-average crime rates, it is surrounded by well-rated schools and amenities, solidifying its desirability.
This is an excellent chance to secure a substantial property in a cosmopolitan inner-city setting—don't miss out on your opportunity to transform this charming Victorian gem into a lucrative investment.



















