Spacious 4-bed period terrace with garden in central Headington.
Central Headington location with good transport and local amenities
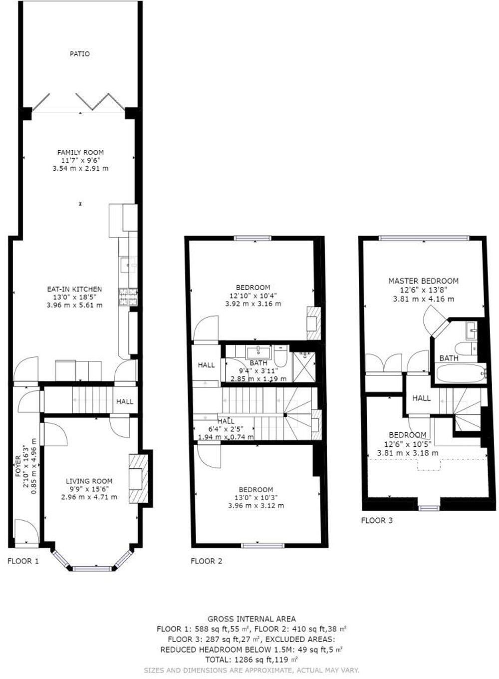
This period mid-terrace in central Headington offers spacious, light-filled family accommodation across multiple floors. The large open-plan kitchen/dining room and separate family room both provide easy everyday living and direct access or views to a private, well-kept garden. A cosy sitting room with a bay window and fireplace adds character for quieter evenings.
Upstairs are four bedrooms, including a principal bedroom with an en-suite bathroom and an additional separate shower room serving the other rooms. The house measures about 1,304 sq ft and sits on a relatively small plot, making it a manageable family home close to local schools, shops and transport links.
Built before 1900 with solid brick walls, the property has double glazing installed post-2002 and is heated by a mains-gas boiler and radiators. The EPC is D; some energy-efficiency improvements (insulation, modernising services) may be advisable to reduce bills and improve comfort. The mid-terrace layout and assumed lack of wall insulation are practical considerations for buyers wanting to upgrade.
This home will suit families who value central convenience, character features and outdoor space in a compact, easy-to-maintain plot. It also offers scope for modest refurbishment to personalise the interior and improve energy performance.
4 bedroom semi-detached house for sale in Lime Walk, Headington, OX3 — £580,000 • 4 bed • 3 bath • 1250 ft²
4 bedroom semi-detached house for sale in Delbush Avenue, Headington, OX3 — £625,000 • 4 bed • 2 bath • 1425 ft²
5 bedroom detached house for sale in Old Road, Headington, OX3 — £700,000 • 5 bed • 2 bath • 1748 ft²
4 bedroom semi-detached house for sale in Stapleton Road, Headington, Oxford, OX3 — £825,000 • 4 bed • 2 bath • 1494 ft²
3 bedroom terraced house for sale in Bushey Leys Close, Headington, Oxford, OX3 — £375,000 • 3 bed • 1 bath • 843 ft²
4 bedroom terraced house for sale in Gouldland Gardens, Headington, OX3 — £500,000 • 4 bed • 3 bath • 1183 ft²


































































