Affordable three-bed terrace with garden and parking — ideal first buy or rental project..
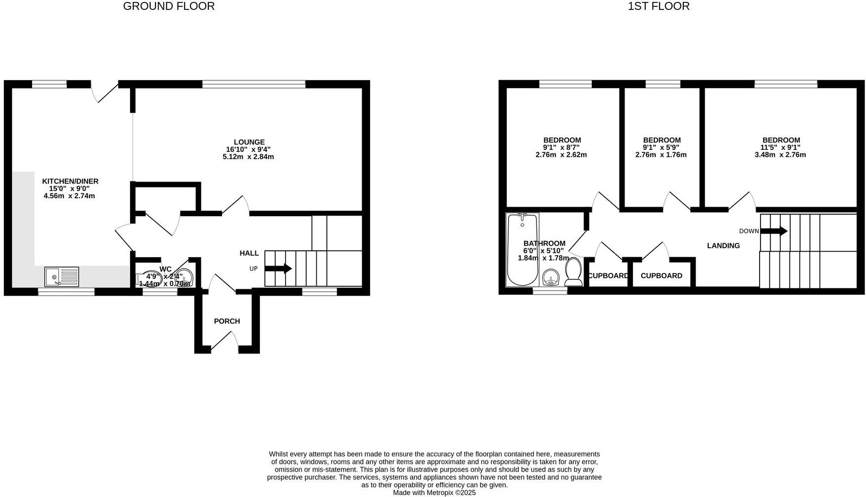
Chain-free freehold three-bedroom terraced house, roughly 585 sq ft
Private rear garden plus gated off-street parking via rear driveway
Modern kitchen and ground-floor flow with patio doors to garden
Single bathroom; three bedrooms on first floor
Built 1976–1982; mid-century exterior may need cosmetic attention
Slow ADSL broadband; intermittent mobile signal reported
Above-average local crime and very deprived wider area
Low council tax band; suited to first-time buyers or investors
This three-bedroom mid-terrace in Woodlands, Talywain offers a compact, chain-free home with private garden and off-street parking. At about 585 sq ft, the layout suits first-time buyers or investors looking for a manageable property with straightforward heating and mains gas services.
Inside, the living space flows from a front lounge into a modern kitchen/diner with patio doors to the rear garden. The property has one family bathroom and three bedrooms on the first floor. The interior appears largely usable, though the exterior shows mid-century concrete finishes that may benefit from cosmetic updating.
Practical advantages include freehold tenure, low council tax band, double glazing (install date unknown), and a gas boiler with radiators. Broadband is delivered over ADSL copper, so speeds are slow; mobile signal is reported intermittent. The wider area is classified as very deprived with above-average crime rates, which should be factored into location decisions.
This house is best for buyers seeking an affordable, compact family home or a rental investment needing modest cosmetic work. It presents potential to improve kerb appeal and interior finishes to increase resale or rental value, but purchasers should budget for external upgrades and confirm broadband/mobility needs beforehand.
3 bedroom terraced house for sale in Pisgah Road, Talywain, NP4 — £130,000 • 3 bed • 1 bath • 958 ft²
3 bedroom terraced house for sale in Clos Afon Llwyd, Pontypool, NP4 — £190,000 • 3 bed • 1 bath • 840 ft²
3 bedroom terraced house for sale in Lower Woodland Street, Blaenavon, NP4 — £240,000 • 3 bed • 1 bath • 603 ft²
3 bedroom terraced house for sale in Bushy Park, Wainfelin, NP4 — £180,000 • 3 bed • 1 bath • 1087 ft²
2 bedroom semi-detached house for sale in Talywain, Pontypool, NP4 — £180,000 • 2 bed • 1 bath • 872 ft²
3 bedroom terraced house for sale in Graig View Terrace, Talywain, NP4 — £175,000 • 3 bed • 1 bath • 1008 ft²


































































