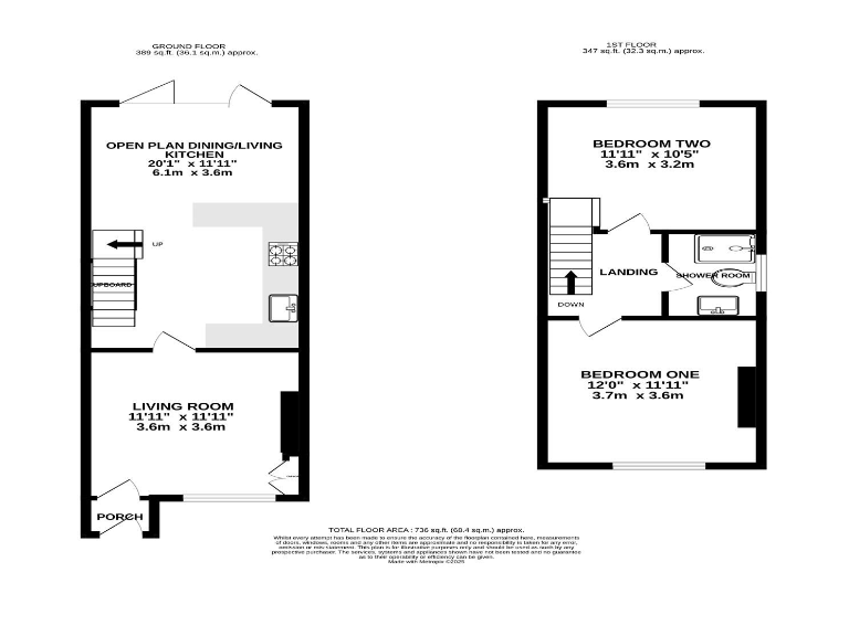
**Standout Features:**
- Charming two-bedroom semi-detached cottage
- Spacious open-plan kitchen/dining area with integrated appliances and granite worktops
- Separate lounge ideal for cozy evenings
- Stylish modern shower room with walk-in shower
- Low-maintenance private garden
- Located in a sought-after area close to Hale Village
- Double glazing throughout
- Ample on-street parking available
**Potential Concerns:**
- Average-sized plot may limit outdoor space
- Solid brick walls with no insulation may require future energy efficiency upgrades
This delightful two-bedroom semi-detached cottage perfectly blends character and modern living, making it an ideal choice for first-time buyers or downsizers. The bright and airy open-plan kitchen and dining area, adorned with beautiful granite worktops, is perfect for family gatherings or entertaining friends. The generous separate lounge provides a cozy retreat, while two well-proportioned bedrooms offer comfortable personal space. Enjoy the low-maintenance garden with added privacy from its end position, and take advantage of plentiful on-street parking. Located just a stroll from vibrant Hale Village, this charming home not only promises comfort but also excellent rental potential in an affluent community. Act quickly to secure this gem, as properties like this in such a desirable location don’t stay on the market for long!















































































