**Standout Features:**
- Imposing Victorian architecture with red brick and sandstone elements.
- Spectacular 21.26m corner position with predominantly glazed frontage.
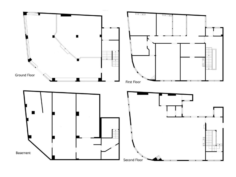
- Large retail space of 6,171 sq. ft (573.29 sq.m) and flexible Ground Floor (1,837 sq.ft).
- Planning permission granted for six residential apartments on upper floors.
- Exceptional visibility and footfall in a thriving town center.
- Strong transport links with under 50-minute direct trains to London Euston.
- E-Class usage allows for various commercial applications.
**Summary:**
Discover a premier investment opportunity with this remarkable retail property at Regent Street, Rugby. Boasting stunning Victorian architecture, this impressive corner property features a generous 6,171 sq. ft of versatile space, ideal for a ground-floor retail unit or an office. The unique selling point includes planning permission for six residential apartments, offering the potential to create multiple income streams and capitalize on the burgeoning local rental demand.
Positioned in a prime location with high visibility, the property benefits from significant foot traffic and the charm of Rugby’s vibrant town center, surrounded by popular boutiques, national retailers, and eateries. With Rugby Train Station just a short stroll away, commuters will appreciate the convenience of direct routes to London in under 50 minutes.
Investors will find the flexible usage options under the E-Class designation appealing, allowing for various commercial ventures, from cafés to professional services. While the local area does face challenges with a high crime rate and certain socio-economic constraints, this property stands out as a beacon of opportunity in a growing market. Don’t miss your chance to secure a stake in Rugby's future as the town continues its upward trajectory. Act quickly – opportunities like this don’t last long!
High street retail property for sale in 26-27 High Street, Rugby, CV21 — £675,000 • 1 bed • 1 bath • 5284 ft²
Commercial property for sale in 17 Albert Street, Rugby, CV21 — £235,000 • 1 bed • 1 bath • 1563 ft²
High street retail property for sale in 1-3, Windsor Court, Rugby, CV21 3BH, CV21 — £700,000 • 1 bed • 1 bath • 4101 ft²
High street retail property for sale in 35 North Street, Rugby, CV21 2AL, CV21 — £495,000 • 1 bed • 1 bath • 3340 ft²
Residential development for sale in Clifton Road, Rugby, Warwickshire, CV21 — £295,000 • 1 bed • 1 bath • 1238 ft²
Restaurant for sale in Regent Street, Rugby, Warwickshire, CV21 — £55,000 • 1 bed • 1 bath • 1611 ft²






































































































































