Light-filled ground-floor home with parking and quick London connections.
- Built in 2022 with contemporary open-plan living and balcony
- One double bedroom with built-in storage, modern bathroom
- Allocated off-street parking and secure entry system
- Long lease: 122 years remaining
- Service charge & ground rent £105.14 per month (ongoing cost)
- Approx 520 sq ft — better for singles/couples, not large families
- Average local crime; area classified as very affluent
- Excellent commuter links to M11 and Harlow rail connections
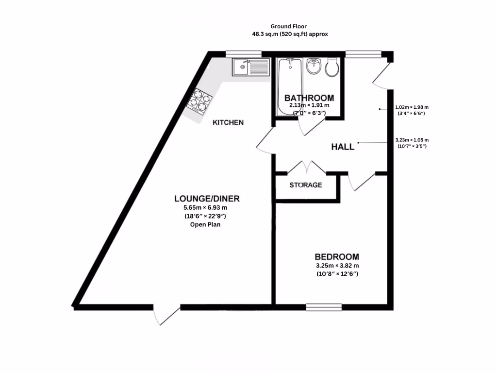
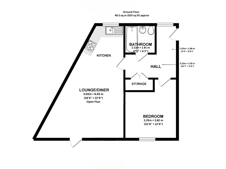
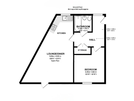
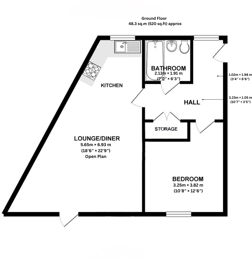
This well-presented ground-floor apartment in Gilden Park was built in 2022 and offers low-maintenance living for first-time buyers. The open-plan living and kitchen area opens onto a private balcony, creating a bright social space ideal for weekday relaxation and entertaining. The double bedroom includes built-in storage and the contemporary bathroom is finished to a modern specification.
Practical features include an allocated off-street parking space, secure entry system, and a long lease of 122 years remaining. Monthly service charge and ground rent are £105.14, so factor ongoing costs into your budget. At around 520 sq ft, the layout suits a single occupant or couple rather than a growing family.
Gilden Park benefits from fast commuter links, close access to the M11 (J7a) and local rail connections to London, making this a convenient base for commuters. The surrounding area is described as very affluent with good primary schools nearby; local crime levels are average. No flooding risk is recorded.
Overall, this is a straightforward, modern starter home or buy-to-let option: ready to move into with contemporary finishes, practical parking and long-term lease security. Prospective buyers should note the leasehold status and monthly service charge when assessing affordability.
1 bedroom apartment for sale in Kingfisher Way, Gilden Park, Harlow, Essex, CM17 — £210,000 • 1 bed • 1 bath • 436 ft²
1 bedroom apartment for sale in Plover Crescent, Harlow, CM17 — £235,000 • 1 bed • 1 bath • 533 ft²
2 bedroom apartment for sale in Kingfisher Way, Harlow, Essex, CM17 — £285,000 • 2 bed • 1 bath • 673 ft²
1 bedroom apartment for sale in Old Oak Way, Harlow, Essex, CM17 — £225,000 • 1 bed • 1 bath • 476 ft²
1 bedroom apartment for sale in Kingfisher Way, Harlow, Essex, CM17 — £235,000 • 1 bed • 1 bath • 570 ft²
2 bedroom ground floor flat for sale in Fieldfare Way, Harlow, CM17 — £280,000 • 2 bed • 1 bath • 562 ft²














































