Contemporary three-bed home with garage, open-plan living and low-maintenance garden in Sherford..
- Built 2022, modern specification and double glazing
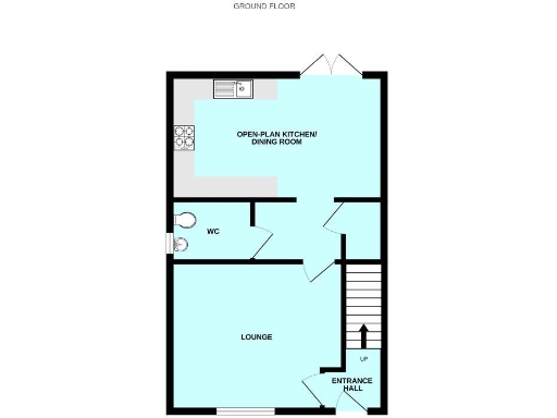
- Open-plan full-width kitchen/diner with French doors
- Principal bedroom with ensuite; family bathroom upstairs
- Garage plus off-street parking to the front
- Small-to-average rear garden, low maintenance but limited space
- Annual management charge £127.54; council tax band C
- Average room sizes and average crime/deprivation indicators
- Fast broadband and excellent mobile signal, no flood risk
A well-presented modern semi-detached home built in 2022, set on a level plot within Sherford. The property offers a full-width open-plan kitchen/dining room with French doors to the private rear garden, a separate lounge, and a downstairs cloakroom — practical living for families or commuters.
Upstairs there are three bedrooms, including a principal bedroom with ensuite, plus a family bathroom. The house benefits from double glazing, gas central heating (boiler and radiators), an integral garage with parking in front, and fast broadband with excellent mobile signal — useful for home working.
The plot and room sizes are average for contemporary suburban housing and the rear garden is modest but low-maintenance with paving and planted beds. There is an annual management charge of £127.54 and council tax band C; crime and area deprivation are average. The property is freehold and has no flood risk.
Overall this is a practical, move-in-ready home that will suit families seeking modern layouts and nearby schools, or buy-to-let buyers looking for a turn-key rental in a new neighbourhood. Note the small-to-average plot size and the ongoing service charge when comparing running costs.
3 bedroom detached house for sale in Sycamore Way, Sherford, Plymouth, Devon, PL9 — £325,000 • 3 bed • 2 bath • 982 ft²
3 bedroom detached house for sale in Sycamore Way, Sherford, Plymouth, PL9 — £325,000 • 3 bed • 2 bath • 920 ft²
3 bedroom semi-detached house for sale in Sherford, Plymouth, PL9 — £310,000 • 3 bed • 2 bath • 958 ft²
3 bedroom semi-detached house for sale in Countryside Homes at Sherford,
Plymouth,
PL9 8FA, PL9 — £360,000 • 3 bed • 1 bath • 772 ft²
3 bedroom town house for sale in Leo Avenue, Sherford, Plymouth, PL9 — £315,000 • 3 bed • 2 bath • 1120 ft²
4 bedroom semi-detached house for sale in Hercules Road, Sherford, Plymouth, Devon, PL9 — £400,000 • 4 bed • 3 bath • 1578 ft²






























































































