Chain-free detached cottage with garage, parking and low-maintenance courtyard garden.
Three bedrooms with en-suite to principal bedroom
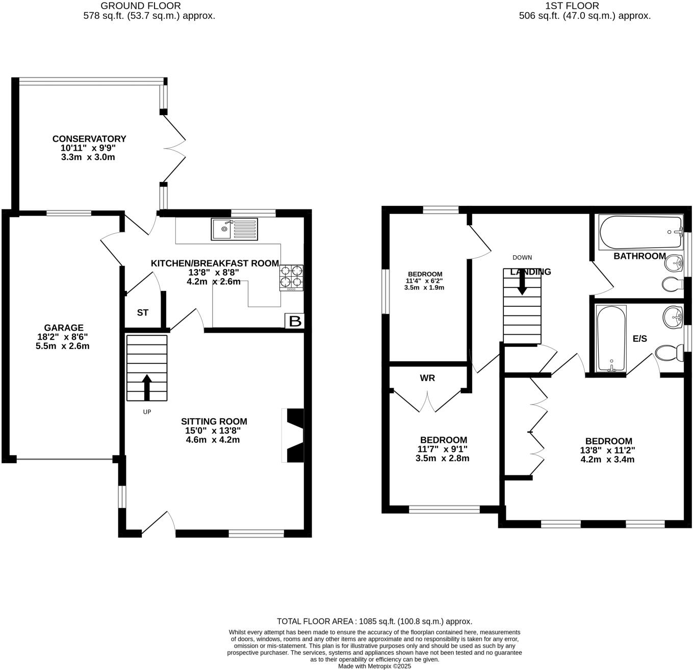
This three-bedroom detached cottage sits just a few hundred metres from Ringwood town centre, offering everyday convenience for families and commuters. The ground floor features a cottage-style sitting room, a compact traditional kitchen opening to a conservatory, and direct access to the garage. Upstairs are three bedrooms, a family bath/shower room and an en-suite to the principal bedroom.
The private, enclosed courtyard garden is designed for low maintenance with paved areas and side access, while the driveway provides plentiful parking and leads to an integral garage. The house has been well maintained by its original owners and is offered chain free, ready for a straightforward move or light updating to suit a new owner’s taste.
Practical points to note: the home was constructed mid-20th century and has cavity walls assumed uninsulated; double glazing was installed before 2002. The kitchen is traditional and compact, so there is clear potential to modernise. Council Tax Band C and no flooding risk add further appeal.
For families, proximity to a selection of primary and secondary schools, shops and local amenities makes daily life easy. This property suits buyers seeking central convenience, parking and a low-maintenance garden, with scope to improve interior finishes over time.
3 bedroom terraced house for sale in Frampton Place | Ringwood | BH24 — £375,000 • 3 bed • 3 bath • 1112 ft²
3 bedroom house for sale in Victoria Gardens, Ringwood, Hampshire, BH24 — £420,000 • 3 bed • 2 bath • 706 ft²
3 bedroom detached house for sale in Sylvio | Redwood Close | Ringwood | BH24 — £699,999 • 3 bed • 3 bath • 1463 ft²
4 bedroom semi-detached house for sale in Elmsdown Court, Southampton Road, BH24 — £265,000 • 4 bed • 2 bath • 1200 ft²
3 bedroom detached house for sale in Monmouth Close, Ringwood, BH24 — £425,000 • 3 bed • 2 bath • 1044 ft²
3 bedroom terraced house for sale in Christchurch Road, Ringwood, BH24 — £379,950 • 3 bed • 1 bath • 883 ft²


















































































