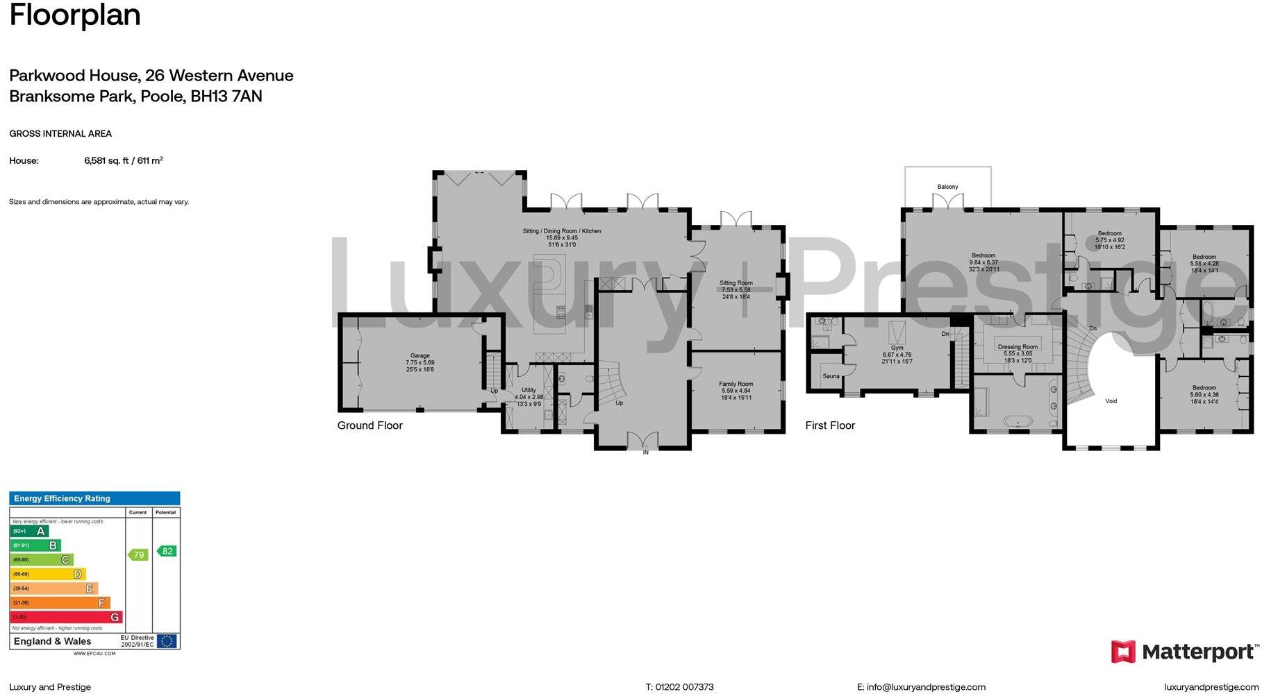
**Standout Features:**
- Impressive 6,600 square feet of living space
- 4 spacious bedrooms, each with en suite bathrooms
- Gourmet 51' open-plan lifestyle room
- Palatial principal bedroom suite with dressing area
- Dedicated gymnasium and sauna
- Integral double garage
- Beautifully landscaped sunny garden
**Summary:**
Discover Parkwood House, a stunning Georgian-inspired luxury home located in the prestigious Branksome Park area. This sprawling 6,600 sq. ft. residence boasts elegance and modern design, featuring a magnificent galleried reception hall, soaring ceilings, and an expansive 51' lifestyle room perfect for entertaining. Enjoy a sun-soaked, level garden, ideal for family gatherings and outdoor living.
Constructed in 2020 with contemporary finishes and ample space for comfortable living, this property also includes a spacious gymnasium with a sauna for wellness enthusiasts. The palatial principal bedroom suite offers a private retreat with an indulgent en suite bathroom, while the additional three bedrooms ensure ample accommodation for family or guests.
Although the property is in immaculate condition, potential buyers should note that ongoing maintenance is prudent to uphold this home's elegance. Ideal for families seeking a serene yet luxurious lifestyle in an affluent community, Parkwood House is chain-free and ready for immediate occupancy. Don't miss the chance to secure this magnificent home—explore the interactive 3D tour today for an exclusive glimpse!
5 bedroom detached house for sale in Western Avenue, Branksome Park, Poole, Dorset, BH13 — £4,995,000 • 5 bed • 5 bath • 6500 ft²
5 bedroom detached house for sale in Dover Road, Branksome Park, Poole, BH13 — £2,750,000 • 5 bed • 5 bath • 4377 ft²
6 bedroom detached house for sale in Western Avenue, Branksome Park, Poole, Dorset, BH13 — £5,000,000 • 6 bed • 5 bath • 12000 ft²
4 bedroom detached house for sale in Wilderton Road, Branksome Park, Poole, BH13 — £1,995,000 • 4 bed • 3 bath • 3250 ft²
5 bedroom detached house for sale in Western Avenue, Branksome Park, Poole, Dorset, BH13 — £2,500,000 • 5 bed • 5 bath • 5000 ft²
5 bedroom detached house for sale in 3 Bury Road, Poole, BH13 — £3,795,000 • 5 bed • 4 bath • 6555 ft²










































































































