Light-filled extended home with a private sunny garden near strong transport links.
South-facing generous rear garden; private with no third-party access
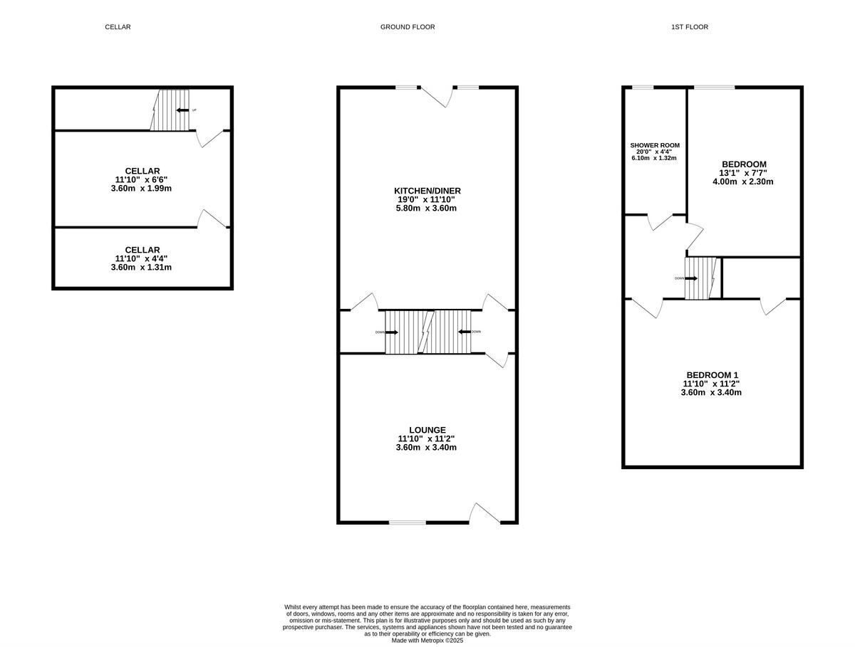
Newly fitted kitchen/diner with marble worktops and integrated appliances
Cast-iron multi-fuel stove plus gas fire in lounge for character and warmth
Two well-proportioned bedrooms; modern shower room upstairs
Two-compartment cellar houses gas boiler and provides storage space
Stone-built mid-terrace (1900–1929); walls likely uninsulated (assumed)
Double glazing present; installation date unknown — check for upgrades
Average overall size (~724 sq ft); efficient layout not expansive
This stone-fronted mid-terrace blends period character with a contemporary rear extension, creating a comfortable two-bedroom home ready to move into. The newly fitted kitchen/diner with marble worktops and integrated appliances is the heart of the house, while a cast-iron multi-fuel stove adds warmth and character. The south-facing rear garden is generous and private with no third-party access — ideal for outdoor dining and strong sunlight through much of the day.
Inside, accommodation is well laid out for first-time buyers or small families: a spacious lounge with gas fire, built-in shelving and storage leads to the extended kitchen/diner. Two well-proportioned bedrooms and a modern shower room sit on the upper floor. Practical features include useful two-compartment cellar storage housing the gas boiler and convenient loft access from the principal bedroom.
Buyers should note a few practical considerations. The stone walls are original with no confirmed insulation upgrade, and the double glazing install date is unknown — both factors to check if improving thermal efficiency is a priority. The property is average sized at about 724 sq ft, so space is efficient rather than expansive. Council tax is described as very cheap, and the area is very affluent with easy access to Sheffield, Barnsley and Rotherham via the nearby M1 and bus routes.
Overall, this terrace offers a strong combination of character, recent updates and outdoor space. It will suit buyers seeking a move-in-ready home with scope for further energy upgrades, or anyone wanting a practical, well-connected base in a comfortable suburbia setting.
2 bedroom terraced house for sale in Warren Lane, Chapeltown, Sheffield, South Yorkshire, S35 — £190,000 • 2 bed • 1 bath • 720 ft²
2 bedroom terraced house for sale in Front Street, Treeton, Rotherham, South Yorkshire, S60 — £200,000 • 2 bed • 1 bath • 657 ft²
2 bedroom end of terrace house for sale in Sheffield Road, Birdwell, Barnsley, S70 — £135,000 • 2 bed • 1 bath • 657 ft²
3 bedroom terraced house for sale in Parkside Road, Hillsborough, S6 2AA, S6 — £190,000 • 3 bed • 1 bath • 892 ft²
3 bedroom end of terrace house for sale in Carr Road, Deepcar, Sheffield, South Yorkshire, S36 — £210,000 • 3 bed • 1 bath • 1252 ft²
2 bedroom terraced house for sale in Yew Lane, Sheffield, S5 — £150,000 • 2 bed • 1 bath • 646 ft²






























































