Elegant three-bedroom detached home on a large corner plot near Sudbury.
Only one 'The Lodge' house type remaining to reserve
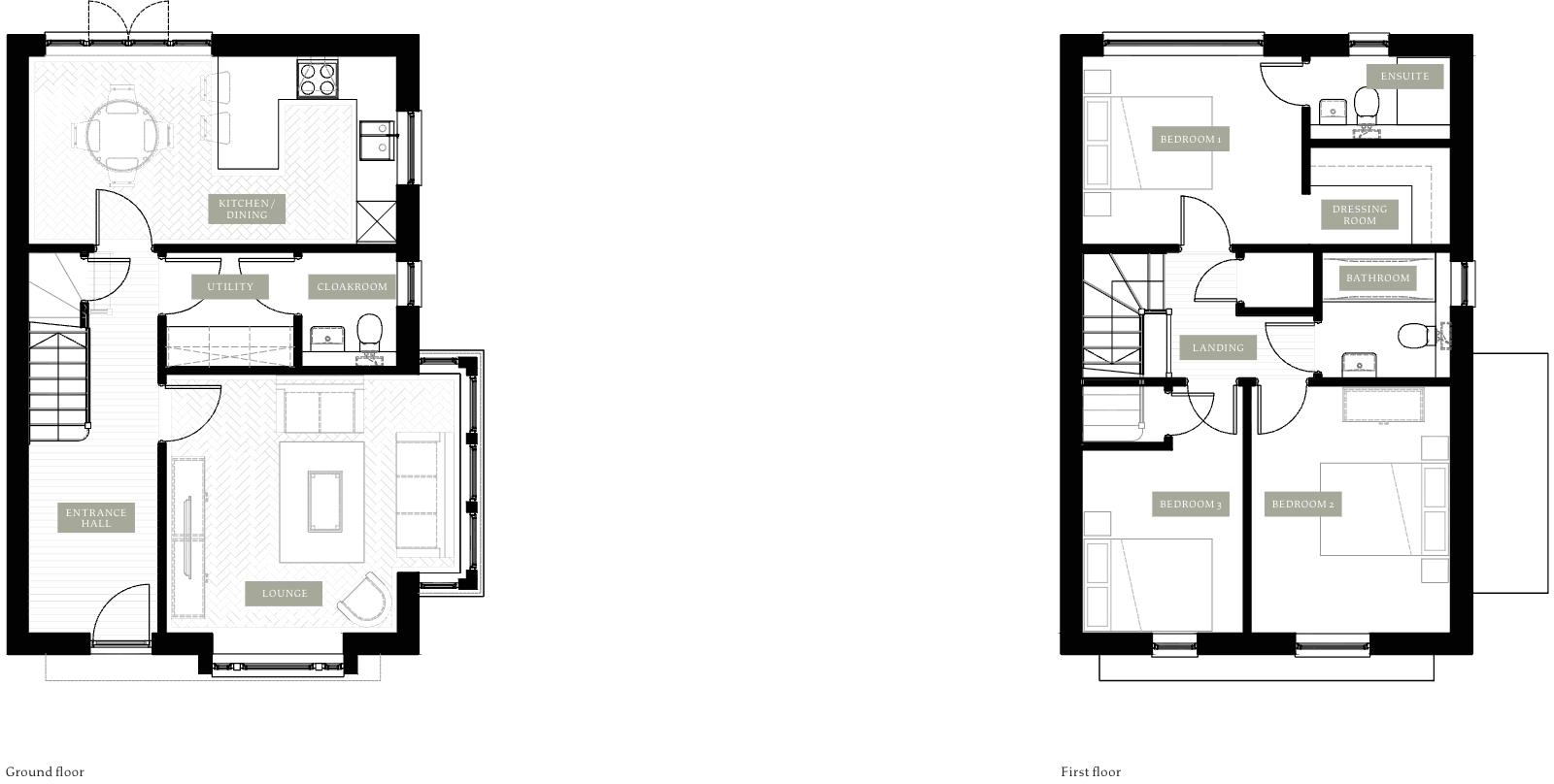
A striking Georgian‑inspired new build finished in traditional brick, The Lodge at Sudbury Fields combines classic curb appeal with modern, efficient living. This three‑bedroom detached home offers about 1,048 sqft of well-planned accommodation across two storeys, including a dual‑bay living room, open-plan kitchen/dining area and a useful utility with cloakroom. High-spec integrated Bosch appliances and composite stone worktops are included, so the kitchen is ready to use from day one.
Set on a large corner plot at the end of a no-through road, the house benefits from a private driveway for two cars and a rear garden that adjoins established greenery for added privacy. The development sits in Great Cornard, two miles south of Sudbury, with good local amenities, supermarkets, doctors, leisure facilities and several primary and secondary schools nearby — appealing for families wanting village feel with town facilities close by.
Designed for high energy efficiency and built in 2026, the property is freehold and scores well for connectivity (excellent mobile signal, fast broadband). There is no flood risk, and the area is described as affluent. This final plot is available to reserve now, with show home and site visits encouraged for buyers who prefer to see the specification and setting before completion.
Buyers should note the property is currently under construction with completion anticipated in early 2026. While the specification is high, completion timing means a lead-in period before moving in. Council tax banding is not yet confirmed and local crime is described as average — both points to consider when budgeting and planning.
3 bedroom detached house for sale in Sudbury Fields, Great Cornard, Sudbury, CO10 — £400,000 • 3 bed • 2 bath • 1087 ft²
3 bedroom detached house for sale in Plot 31, Sudbury Fields, CO10 — £400,000 • 3 bed • 2 bath • 1033 ft²
4 bedroom detached house for sale in Plot 38, Sudbury Fields, Sudbury, CO10 — £750,000 • 4 bed • 2 bath • 1608 ft²
4 bedroom detached house for sale in Plot 35, Sudbury Fields, Sudbury, CO10 — £460,000 • 4 bed • 2 bath • 1162 ft²
4 bedroom detached house for sale in Plot 36, Sudbury Fields, Sudbury, CO10 — £750,000 • 4 bed • 2 bath • 1615 ft²
3 bedroom detached house for sale in Cats Lane, Sudbury, CO10 — £375,000 • 3 bed • 2 bath • 1143 ft²


























































































