**Standout Features:**
- Newly renovated Victorian country cottage
- Three spacious bedrooms, including a principal with ensuite and private balcony overlooking River Tay
- Two cozy sitting areas with wood burners
- Modern kitchen with ample storage and fitted appliances
- Beautiful southwest-facing garden with terrace for outdoor entertaining
- Quiet, scenic location in Aberfeldy with a strong community
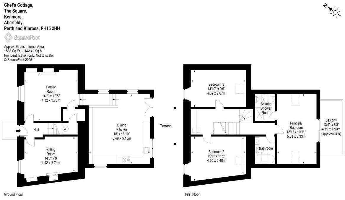
**Summary:**
Nestled in the picturesque town of Aberfeldy, 'Chef’s Cottage' is a beautifully renovated three-bedroom Victorian home that offers both comfort and charm. With its inviting atmosphere and spacious layout, this property features two cozy sitting areas, each equipped with wood burners, perfect for chilly evenings. The modern kitchen boasts plenty of cabinetry and is accompanied by essential appliances, creating a functional space for family meals and gatherings.
Upstairs, three well-appointed bedrooms provide ample accommodation, with the principal suite benefiting from an ensuite shower room and a private balcony showcasing stunning views of the River Tay. The lovely southwest-facing garden, complete with a large terrace, is ideal for outdoor entertaining and soaking up the sun during warmer months.
While the property is in excellent turn-key condition, it's situated in a region with economic challenges, making it a unique opportunity for those seeking a cozy home in a remoter community. With average broadband speeds and good mobile coverage, 'Chef’s Cottage' strikes a balance between rural tranquility and modern conveniences. Whether you're a family looking for a comfortable home or an investor seeking valuable property in a scenic location, this delightful cottage is not to be missed!
2 bedroom villa for sale in Fernbank, Acharn, Aberfeldy, PH15 2HS, PH15 — £229,950 • 2 bed • 1 bath • 818 ft²
2 bedroom detached bungalow for sale in Mill Brae Cottage, Mill Street, Aberfeldy, Perthshire, PH15 — £275,000 • 2 bed • 1 bath • 792 ft²
2 bedroom cottage for sale in 1 Farragon Cottages, Farragon Drive, Aberfeldy PH15 2BQ, PH15 — £210,000 • 2 bed • 1 bath • 664 ft²
3 bedroom terraced house for sale in Taymouth Drive, Kenmore, PH15 — £219,000 • 3 bed • 2 bath • 1033 ft²
3 bedroom semi-detached house for sale in 43 Chapel Street, Aberfeldy, Perthshire, PH15 — £225,000 • 3 bed • 1 bath • 1195 ft²
2 bedroom semi-detached house for sale in Coignashee, Tomnacroich, Aberfeldy, PH15 2LJ, PH15 — £350,000 • 2 bed • 2 bath • 1356 ft²


















































































