**Standout Features:**
- Spacious semi-detached dormer bungalow with two bedrooms
- Two modern bathrooms, including an en-suite in the master bedroom
- Inviting reception room and adjoining conservatory
- Fitted kitchen equipped with integrated appliances
- Enclosed rear garden offering outdoor relaxation
- Garage parking and freehold tenure
- Excellent location with access to nearby towns
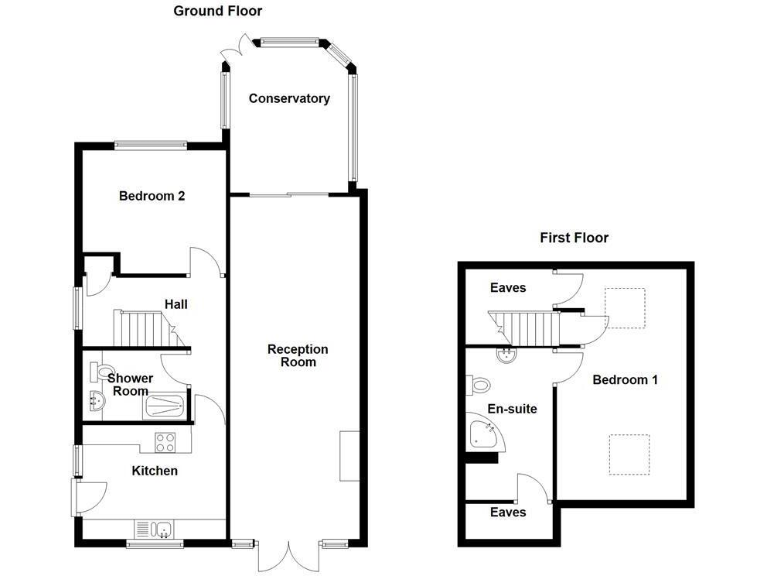
This charming semi-detached bungalow in Ramsbottom is the perfect blend of space and comfort, boasting two well-sized bedrooms and two well-appointed bathrooms. The expansive reception room is bathed in natural light and features sliding doors that open into the delightful conservatory—a versatile space that could serve as a dining area or sunlit retreat. The fitted kitchen is a cook's delight, complete with modern appliances, making it ideal for entertaining or family meals.
On the ground floor, the cozy second bedroom sits conveniently near a stylish shower room, while the generous first-floor master bedroom offers privacy and an en-suite bathroom. The enclosed rear garden presents ample opportunity for outdoor activities with areas perfect for landscaping or relaxing with family.
Set in a sought-after location with access to essential amenities, schools, and parks, this property is a wonderful option for first-time buyers, couples, or anyone seeking a tranquil lifestyle with modern conveniences. With a council tax band C and chain-free status, this bungalow won't stay on the market long—don’t miss your chance to make it your own!
2 bedroom bungalow for sale in Helmsdale Close, Ramsbottom, Bury, Greater Manchester, BL0 — £325,000 • 2 bed • 1 bath • 636 ft²
3 bedroom detached bungalow for sale in Peel Brow, Ramsbottom, Bury, BL0 — £415,000 • 3 bed • 1 bath • 1739 ft²
3 bedroom detached bungalow for sale in Bolton Road North, Ramsbottom, Bury, BL0 — £299,950 • 3 bed • 1 bath • 980 ft²
3 bedroom bungalow for sale in Havenbrook Grove, Ramsbottom, Bury, Greater Manchester, BL0 9UA, BL0 — £460,000 • 3 bed • 1 bath • 740 ft²
4 bedroom bungalow for sale in Longsight Road, Holcombe Brook, Bury, BL0 — £525,000 • 4 bed • 2 bath • 1385 ft²
3 bedroom bungalow for sale in Stretton Road, Ramsbottom, Bury, Greater Manchester, BL0 — £385,000 • 3 bed • 2 bath • 1245 ft²


























































































