GU21 3DB - 2 bedroom maisonette for sale in Torridon Close, Goldsworth…

View on Property Piper

2 bedroom maisonette for sale in Torridon Close, Goldsworth Park, Woking, Surrey, GU21

Summary - 20 TORRIDON CLOSE WOKING GU21 3DB

2 bed 1 bath Maisonette

**Standout Features:**
- Spacious two double bedroom maisonette
- Large, bright living room with contemporary design
- Modern shower room and loft-style main bedroom with eaves storage
- UPVC double glazing throughout
- Convenient garage with electricity
- Low crime rate and excellent local amenities
- Affordable council tax and ground rent

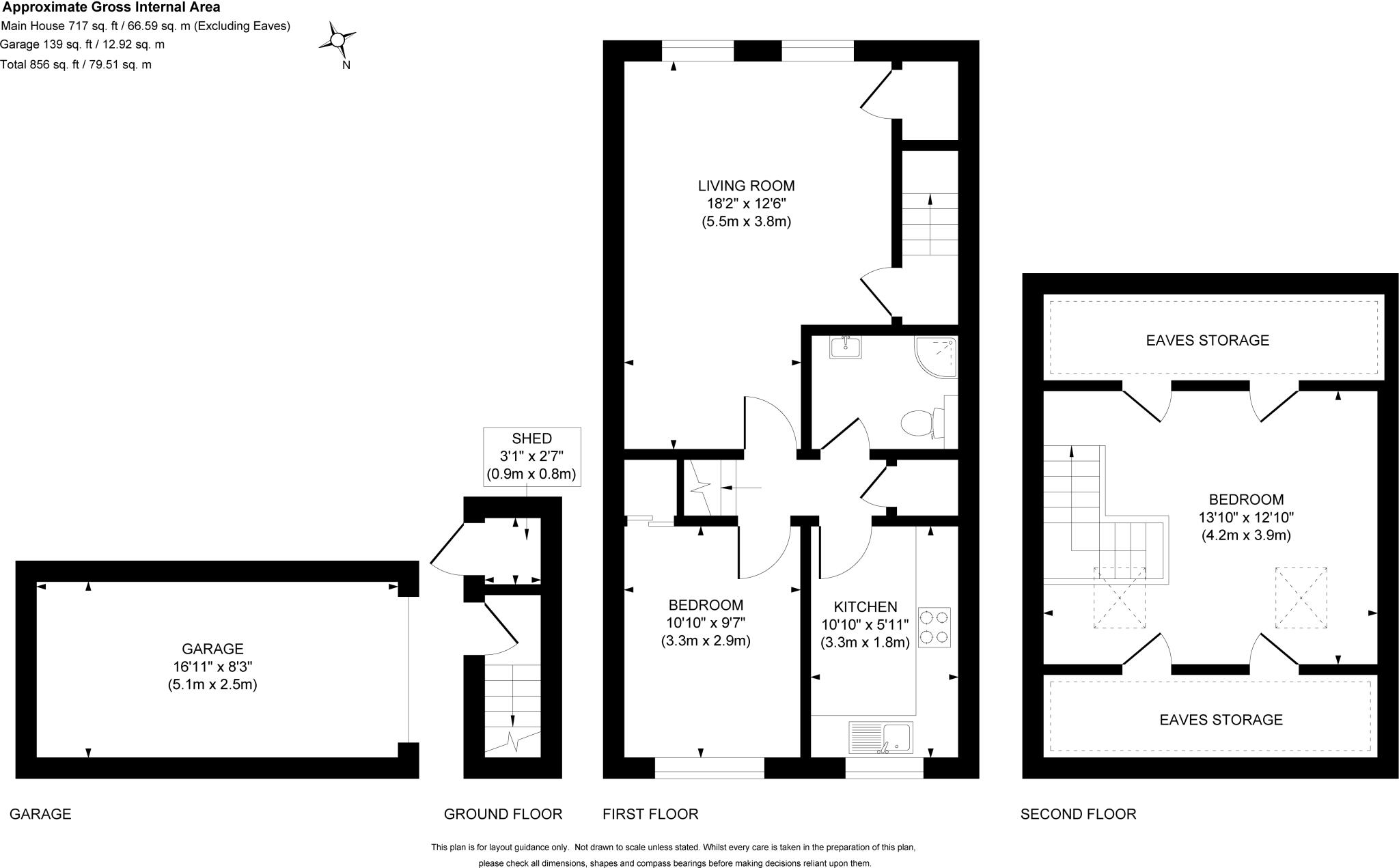
Nestled in a popular cul-de-sac and just a short walk from local shops and amenities, this inviting two-bedroom maisonette presents a wonderful opportunity for families and first-time buyers alike. The property boasts a spacious living room that seamlessly connects to a separate kitchen featuring a breakfast bar. Two generous double bedrooms provide ample comfort, with the loft-style main bedroom offering additional storage in the eaves.

Characterized by its friendly neighborhood, this maisonette benefits from a garage with electrical power, an outside storage cupboard, and easy parking availability. Commuters will appreciate the excellent transport links and the vibrant town center of Woking, which is home to a plethora of shopping and dining options as well as cultural landmarks like The New Victoria Theatre.

While the interior has been well-maintained, potential buyers may notice some dated features that offer a blank canvas for future renovations, allowing for personal touches and customization. The property is leasehold, with a modest ground rent of £40, making it an ideal choice for anyone seeking comfort, security, and future potential in a thriving community. Active families will also enjoy proximity to nearby parks and top-rated schools, ensuring this spacious maisonette becomes a lovely, long-term family home. Don’t miss your chance to view this unique property—it’s bound to attract attention!

Property Details

Image Descriptions

Floorplan Description

Rooms

Textual Property Features

Detected Visual Features

EPC Details

Nearby Schools

Nearest Bars And Restaurants

,,,,}

Nearest General Shops

,,}

Nearest Grocery shops

,,}

Nearest Supermarkets

,,}

Nearest Religious buildings

,,}

Nearest Medical buildings

,,,}

Nearest Airports

,}

Nearest Leisure Facilities

,,,,}

Nearest Tourist attractions

,,}

Nearest Train stations

,,,,}

Nearest Bus stations and stops

,,,,}

Nearest Hotels

,,}

Tags

Local Market Stats

AirBnB Data

Similar Properties

Meta

High Res Images

Compatible Images

Low res Images

Thumbnails

Raw Images

High Res Floorplan Images

Compatible Floorplan Images

Low res Floorplan Images

FloorplanImages Thumbnail

Raw Floorplan Images