NG23 6AJ - 4 bed spacious detached family home in Mill Lane, NG23 6AJ

View on Property Piper

4 bedroom detached house for sale in Mill Lane, Caunton, Newark, NG23

Summary - MILL VIEW MILL LANE CAUNTON NEWARK NG23 6AJ

4 bed 3 bath Detached

Large, well-kept village house with private garden and double garage.
Elevated detached family home with field views front and rear
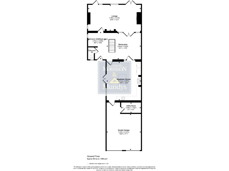
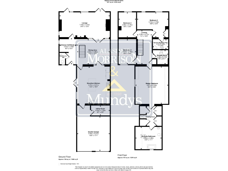
Set in elevated position in peaceful Caunton, this detached four-bedroom house offers generous family accommodation with far-reaching field views to front and rear. The home is well maintained, featuring a large lounge with log burner, a spacious breakfast kitchen with island and high-end fittings, plus a private rear patio and lawned garden. The layout suits family life with a ground-floor utility and cloakroom, plus an attached double garage and wide tarmac driveway with turning area and space for a caravan.

Sleeping accommodation includes a substantial master suite with dressing room and luxury en-suite, a second bedroom with en-suite, two further bedrooms and a family shower room. The house totals around 2,272 sq ft across multiple storeys, providing flexibility for home working or family study space. Caunton is a conservation village with a primary school, tennis club and good access to Southwell and Newark; The Minster School is in the local secondary catchment and rated highly.

Practical considerations are straightforward but important: heating is from oil and the EPC is rated D, broadband speeds are slow and there is no mobile signal on site. There is a medium flood risk and council tax is in the higher band F. Overall this freehold property will appeal to buyers seeking substantial, ready-to-enjoy family accommodation in a quiet rural setting, with potential to personalise energy and connectivity arrangements over time.

Property Details

Image Descriptions

Floorplan Description

Rooms

Textual Property Features

Target Audience

AI Tags

Detected Visual Features

Nearby Schools

Nearest Bars And Restaurants

,,,,}

Nearest General Shops

,,}

Nearest Grocery shops

,,}

Nearest Supermarkets

,,}

Nearest Religious buildings

,,}

Nearest Medical buildings

,,,}

Nearest Leisure Facilities

,,,,}

Nearest Tourist attractions

,,}

Nearest Train stations

,,,,}

Nearest Bus stations and stops

,,,,}

Nearest Hotels

,,}

Tags

Local Market Stats

Similar Properties

Meta

High Res Images

Compatible Images

Low res Images

Thumbnails

Raw Images

High Res Floorplan Images

Compatible Floorplan Images

Low res Floorplan Images

FloorplanImages Thumbnail

Raw Floorplan Images