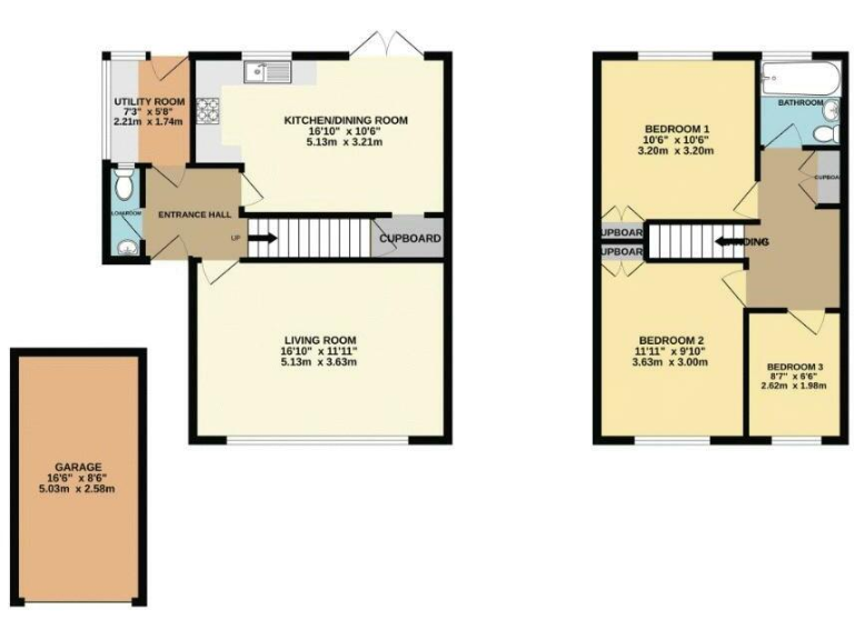
**Standout Features:**
- 3-bedroom semi-detached house
- Spacious lounge and kitchen/diner
- Downstairs cloakroom and utility room
- Enclosed rear garden and garage
- Excellent mobile signal and average crime rate
- Close proximity to parks and amenities
- No forward chain for quick move-in
**Property Summary:**
Discover this charming 3-bedroom semi-detached family home located at the end of a quiet cul-de-sac in Northmoor, Wareham. With a total area of 731 square feet, this residence offers a spacious lounge perfect for family gatherings, a traditional kitchen/diner with patio doors leading to an enclosed garden, and a convenient downstairs cloakroom. Perfectly positioned for family life, the property is close to local parks as well as reputable schools rated ‘Good’ by Ofsted, adding to its appeal for families.
Although the home was built between 1967-1975, its traditional design offers a solid foundation for personalization or future renovations, allowing you to create the space of your dreams. The property features a garage for secure parking, though it's important to note that broadband speeds in the area may be slow. With no forward chain, this home can be yours without delay—ideal for those ready to settle in quickly. Don't miss out on this opportunity to become part of a vibrant community in Wareham!
3 bedroom end of terrace house for sale in Avon Drive, Northmoor, Wareham, BH20 — £330,000 • 3 bed • 1 bath • 962 ft²
3 bedroom detached house for sale in Sherford Close, Northmoor, Wareham, BH20 — £390,000 • 3 bed • 1 bath
3 bedroom terraced house for sale in Northmoor, BH20 — £300,000 • 3 bed • 1 bath • 786 ft²
3 bedroom semi-detached house for sale in Northmoor Way, Wareham, BH20 — £375,000 • 3 bed • 1 bath • 969 ft²
3 bedroom terraced house for sale in Wellstead Road, Northmoor, Wareham, BH20 — £347,500 • 3 bed • 1 bath
3 bedroom end of terrace house for sale in Northmoor, BH20 — £360,000 • 3 bed • 1 bath • 861 ft²






























