Accessible shared-ownership buy close to schools and Nottingham commuter links.
3 bedroom detached new-build with private garden and off-street parking
Offered as 30% shared ownership — 30% share price £108,000
Solar panels and EV charging point reduce running costs
Flooring fitted throughout; move-in ready condition
999-year lease; leasehold tenure (verify full lease with solicitor)
Annual service charge £954.48; monthly rent on unsold share approx. £577.50
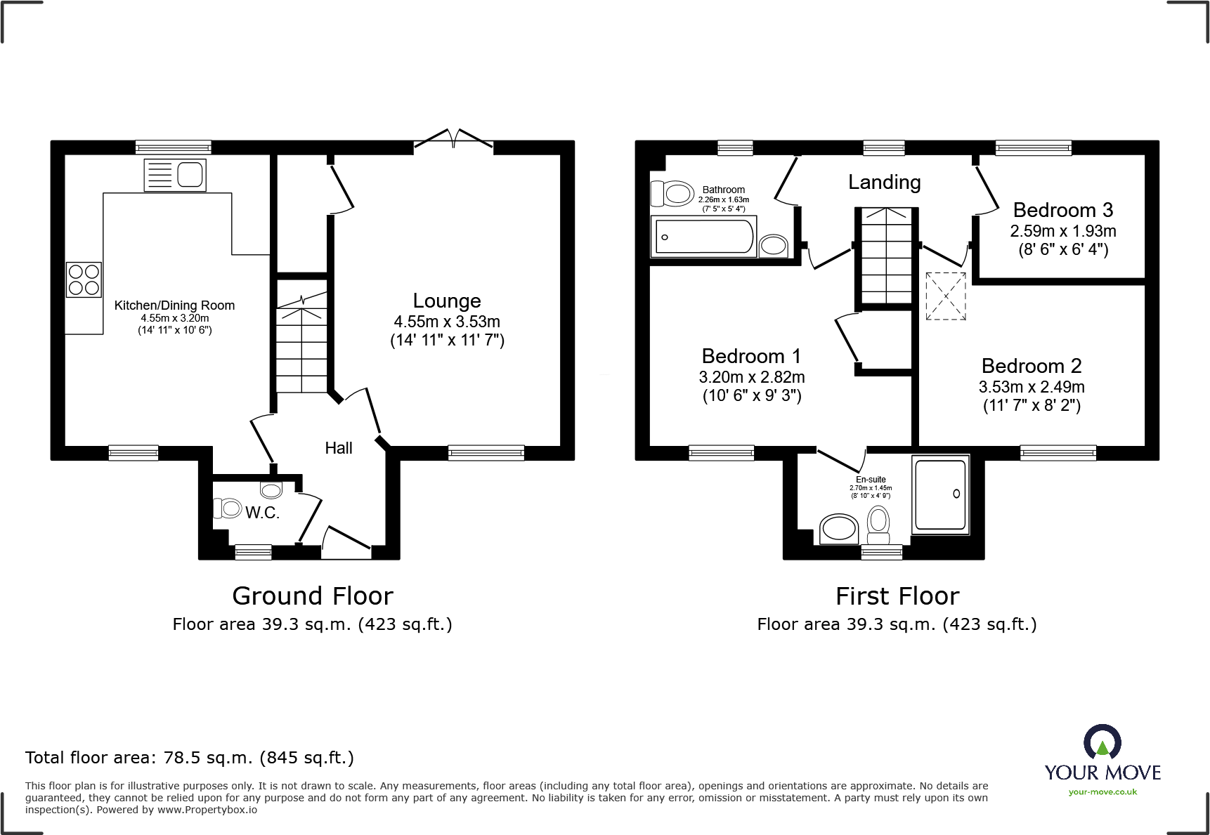
Approx. 845 sqft; principal bedroom with en-suite and family bathroom
Solid brick walls assumed without insulation; EPC and council tax TBC
This three-bedroom detached new-build at The Whitewater offers a ready-to-move-in home with contemporary fittings and energy-saving features tailored to first-time buyers. The Symphony kitchen, fitted flooring throughout and a practical downstairs W.C. make day-to-day living straightforward, while French doors from the lounge open to a private, ready-turfed garden ideal for children or outdoor relaxation.
Practical running costs are helped by solar panels and an EV charging point, and the property comes with off-street parking. The home is offered via shared ownership at a 30% share (share price £108,000) — an accessible route onto the ladder but note a monthly rent (2.75% on the unsold share) and an annual service charge of £954.48. Leasehold terms are long at 999 years.
The layout includes a principal bedroom with en-suite, a second double and a useful single bedroom that works well as a home office. At approximately 845 sqft, rooms are well proportioned for a young family or first purchase. Local amenities, good schools nearby and quick access to Nottingham make this a convenient suburban choice.
Important practical points: council tax banding is not yet confirmed and the walls are described as solid brick with assumed no cavity insulation — buyers should check insulation and thermal performance (EPC pending). Shared ownership can limit saleability and staircasing costs should be understood before committing.
3 bedroom detached house for sale in Codling Close, Bramcote, Stapleford, Nottingham, NG9 — £175,000 • 3 bed • 3 bath • 841 ft²
3 bedroom semi-detached house for sale in Codling Close, Bramcote, Stapleford, Nottingham, NG9 — £251,250 • 3 bed • 3 bath • 860 ft²
3 bedroom semi-detached house for sale in Codling Close, Bramcote, Stapleford, Nottingham, NG9 — £180,000 • 3 bed • 3 bath • 1095 ft²
3 bedroom detached house for sale in Codling Close, Bramcote, Stapleford, Nottingham, NG9 — £129,500 • 3 bed • 3 bath • 857 ft²
3 bedroom semi-detached house for sale in Codeing Close, Bramcote, Stapleford, Nottingham, NG9 — £134,000 • 3 bed • 3 bath • 1389 ft²
3 bedroom semi-detached house for sale in Codling Close, Bramcote, Stapleford, Nottingham, NG9 — £108,000 • 3 bed • 1 bath






















































































































































