Practical family home with garage and garden near shops and bus links.
Chain free sale — no onward chain
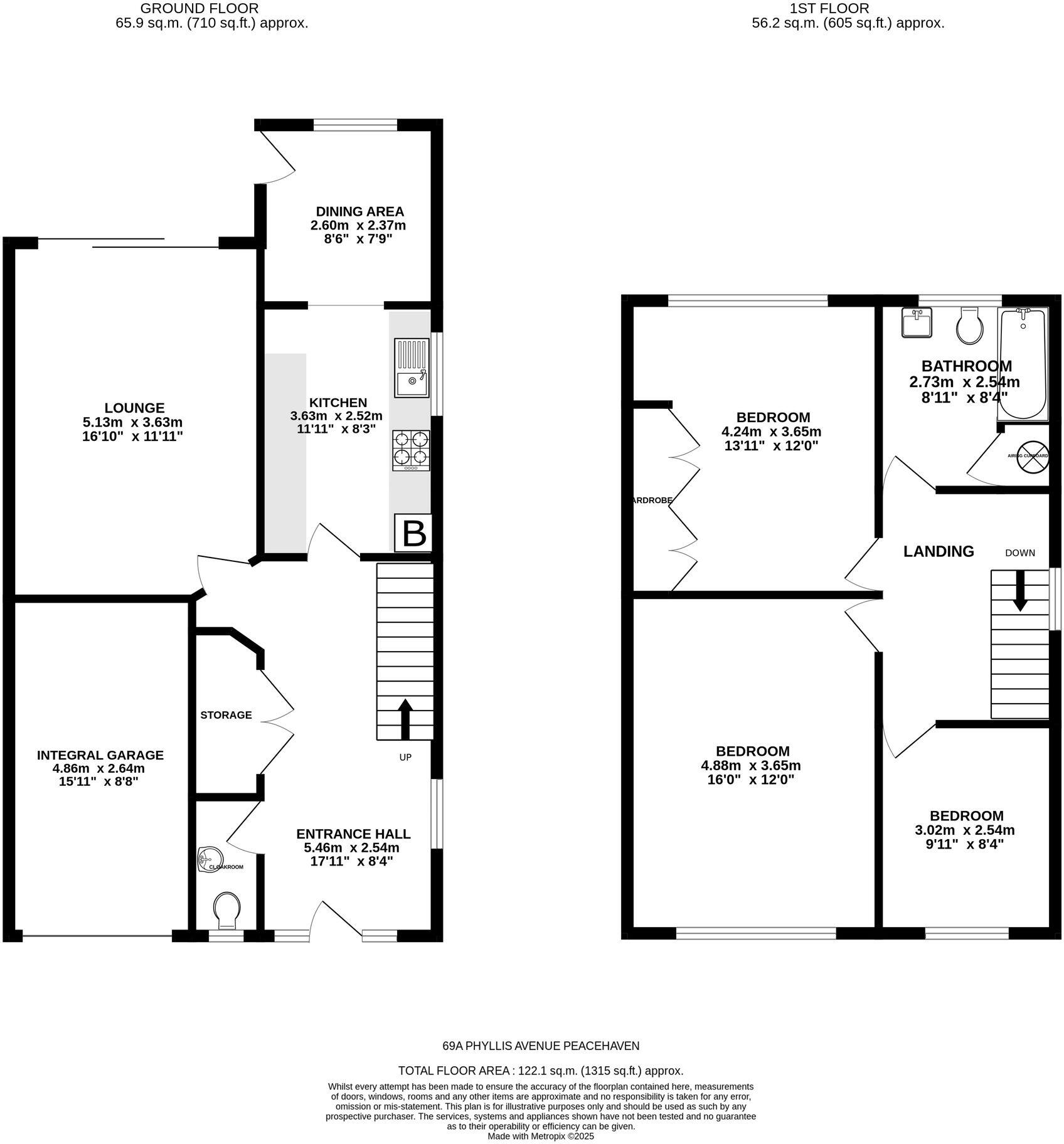
A spacious three-bedroom semi-detached home offered chain-free in a quiet Peacehaven street, minutes from local shops, bus links to Brighton and nearby schools. The house sits on a small plot with an integral garage, driveway parking and an enclosed rear garden – practical for families and commuters.
The ground floor includes a large entrance hall, cloakroom, good-sized lounge with patio doors and a kitchen/diner opening to the garden. Upstairs are three genuine bedrooms, a roomy main bedroom and a family bathroom; double glazing and gas central heating are already installed.
The property dates from the mid-20th century and retains some period features but will benefit from updating in areas (kitchen, bathroom and decorative finishes). Cavity walls are assumed uninsulated, so buyers should consider insulation improvements and general modernisation to boost comfort and energy efficiency.
Nearby schools and local amenities make this a practical family purchase; for investors the chain-free sale and solid layout present straightforward rental potential. Note that the services have not been tested and buyers should satisfy themselves on condition and specification before purchase.
3 bedroom semi-detached house for sale in Rowe Avenue North, Peacehaven, BN10 — £375,000 • 3 bed • 1 bath • 1216 ft²
2 bedroom end of terrace house for sale in Sutton Avenue, Peacehaven, BN10 7NZ, BN10 — £269,950 • 2 bed • 1 bath • 710 ft²
3 bedroom semi-detached house for sale in Firle Road, Peacehaven, BN10 — £375,000 • 3 bed • 1 bath • 1150 ft²
3 bedroom semi-detached house for sale in Steyning Avenue, Peacehaven, BN10 — £350,000 • 3 bed • 1 bath • 637 ft²
5 bedroom detached house for sale in Phyllis Avenue, Peacehaven, BN10 — £475,000 • 5 bed • 2 bath • 1849 ft²
4 bedroom link detached house for sale in Foxhill, Peacehaven, BN10 7SE, BN10 — £365,000 • 4 bed • 1 bath • 818 ft²






















































