Generous two-bed maisonette with oversized garage and long lease in desirable Hale.
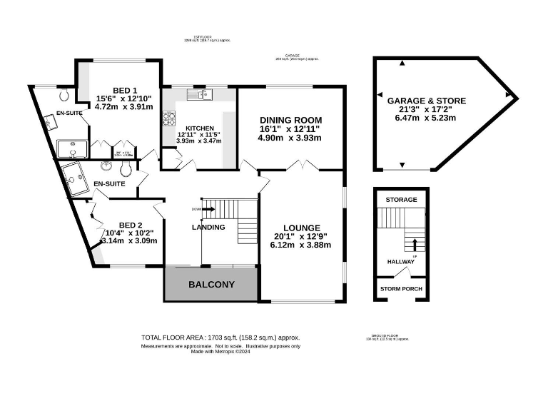
Extremely large 1,423 sq ft two-bedroom maisonette
Two double bedrooms, each with a private en-suite
Dual-aspect lounge plus separate dining room for flexible living
Private oversized single garage and additional store
Balcony overlooks attractive, manicured communal gardens
Leasehold with around 960 years remaining (very long)
Service charge approx £215 pcm (below average); council tax is high
Modest private outdoor space; verify internal condition and communal access
This exceptionally large two-bedroom maisonette occupies approximately 1,423 sq ft in the private Hale Carr development, offering roomy, practical living for buyers seeking generous internal space without the upkeep of a house. Two double bedrooms each have en-suite facilities, and the principal reception rooms are notably large — a dual-aspect lounge and a separate dining room provide flexible living, entertaining and work-from-home options.
Outside, the property benefits from an oversized private garage and a balcony overlooking well-maintained communal gardens, giving useful storage and a pleasant outdoor aspect. The development is quietly residential and sits in an affluent area with fast broadband, excellent mobile signal and good local schools, making it comfortable and convenient for downsizers or professionals.
Practical strengths include a very long lease (around 960 years) and a below-average service charge (circa £215). The building was constructed in the early 1990s and has double glazing; heating is by mains gas boiler and radiators. These features combine to reduce immediate major expenditure compared with older stock.
Notable considerations: the property is leasehold (confirm any sublet/usage restrictions) and council tax is described as expensive. Private outdoor space is modest (balcony and small front garden) rather than a large private garden. Internal condition and communal area upkeep will materially affect value — expect to verify finish and access when viewing.
2 bedroom apartment for sale in Hillside Road, Hale, Altrincham, Greater Manchester, WA15 — £300,000 • 2 bed • 1 bath • 740 ft²
2 bedroom apartment for sale in Leicester Road, Hale, Cheshire, WA15 — £495,000 • 2 bed • 1 bath • 1030 ft²
2 bedroom apartment for sale in Ashley Bank, Ashley Road, Hale, WA14 3NH, WA14 — £530,000 • 2 bed • 2 bath • 1238 ft²
3 bedroom flat for sale in Bancroft Road, Hale, Altrincham, Greater Manchester, WA15 — £325,000 • 3 bed • 1 bath • 971 ft²
3 bedroom apartment for sale in Barry Rise, Bowdon, Altrincham, Greater Manchester, WA14 — £565,000 • 3 bed • 2 bath • 1644 ft²
2 bedroom apartment for sale in Harrop Road, Hale, WA15 — £725,000 • 2 bed • 2 bath • 2000 ft²


































































