**Standout Features:**
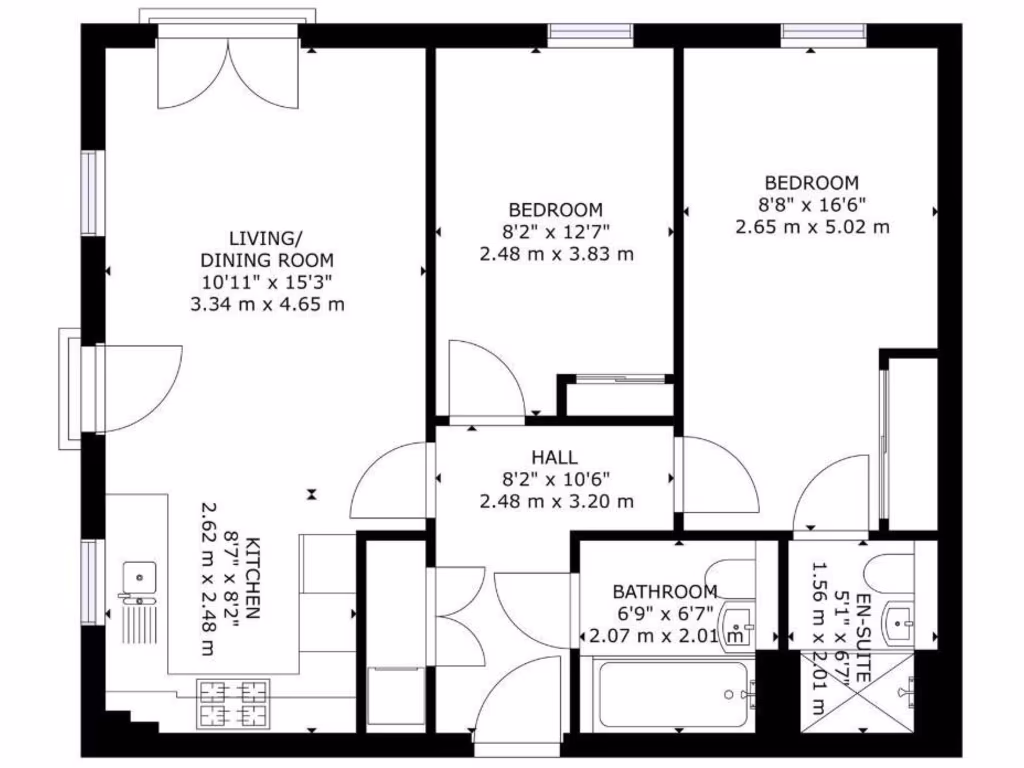
- Modern 2-bedroom, 2-bathroom apartment in Hull City Centre
- 8% rental yield with tenant already in place
- Secure gated parking included
- Prime location near shops, restaurants, and transport
- Contemporary open-plan living area with integrated appliances
- Competitive service charge and manageable ground rent
**Summary:**
Discover an excellent investment opportunity with this modern 2-bedroom apartment, nestled in the vibrant heart of Hull City Centre. Boasting a remarkable 8% yield and existing tenants, this property promises immediate rental income for savvy investors. The contemporary layout features a spacious open-plan living area, a bright kitchen with integrated appliances, and two generous bedrooms complete with bathrooms.
The apartment also benefits from secure gated parking and convenient lift access, ensuring both comfort and accessibility. With a multicultural, student-friendly neighborhood surrounding it, you'll find an array of amenities just moments away, from shops to cafes. While the area reports high crime rates and some elements of deprivation may concern future residents, the potential for ongoing rental demand is sky-high. With low service and ground rent costs, this property is poised to enhance any investment portfolio. Don’t miss out on this unique chance to secure a foothold in a sought-after location—schedule your viewing today!
1 bedroom flat for sale in Jarratt Street, Kingston Upon Hull, HU1 — £107,000 • 1 bed • 1 bath • 474 ft²
2 bedroom apartment for sale in Plimsoll Way, Hull, HU9 — £115,000 • 2 bed • 1 bath • 467 ft²
2 bedroom apartment for sale in The Sawmill, Dock Street, HU1 — £110,000 • 2 bed • 2 bath • 899 ft²
1 bedroom flat for sale in Apartment 4, Queens Court, 57 Queens Dock Avenue, Hull HU1 3DR, HU1 — £70,000 • 1 bed • 1 bath • 636 ft²
1 bedroom apartment for sale in Dock Street, Hull, HU1 — £106,000 • 1 bed • 1 bath • 406 ft²
1 bedroom flat for sale in Freedom Quay, Hull HU1 2BE, HU1 — £115,000 • 1 bed • 1 bath • 527 ft²


























