**Standout Features:**
- **Grade II* listed period home** with stunning architectural character
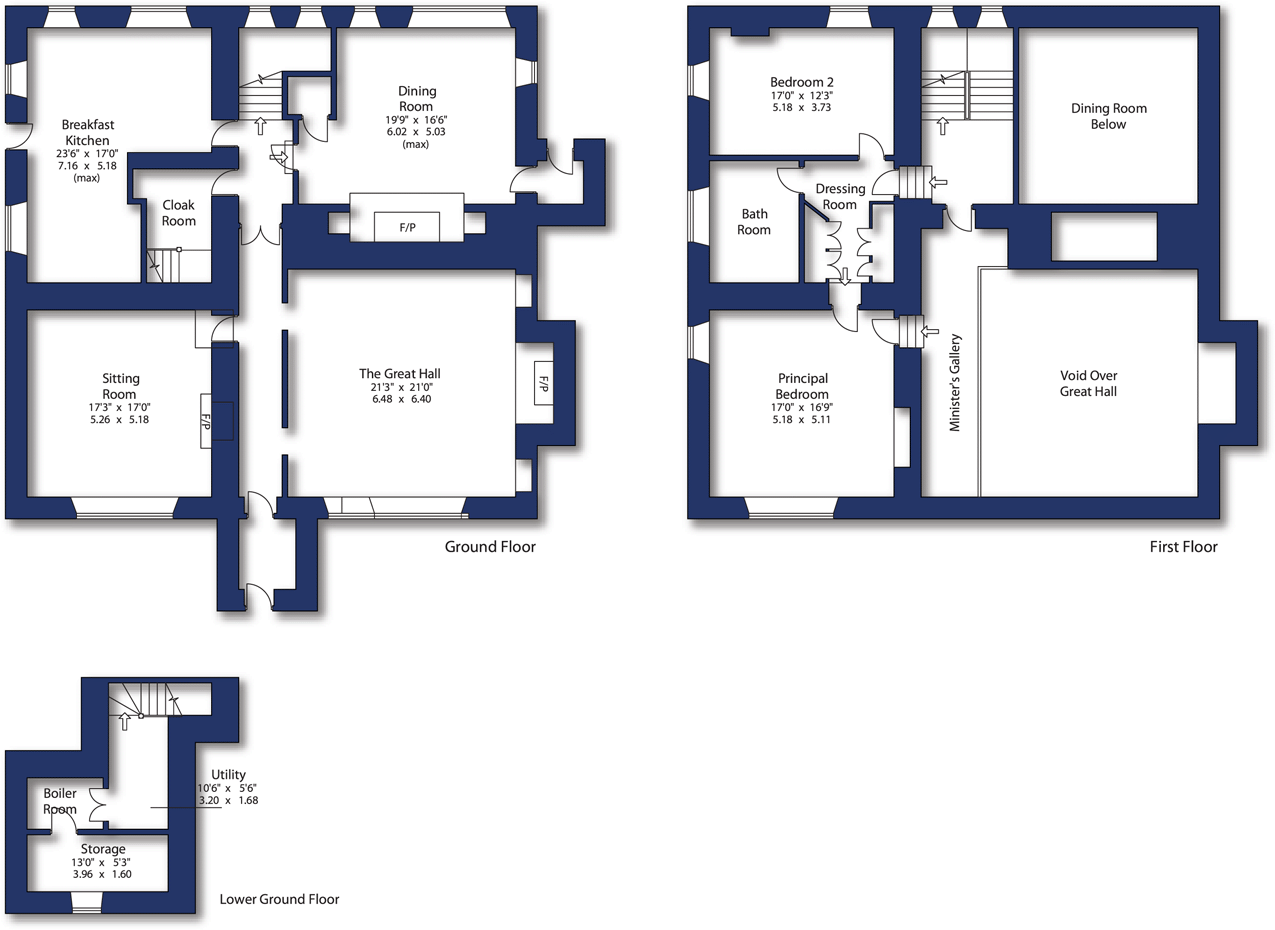
- **Spacious accommodation:** 7 bedrooms, 4 reception rooms, and 6 bathrooms
- **Beautifully landscaped gardens** on a generous plot of 0.76 acres, with additional grazing land of 3.6 acres available separately
- **Modern conveniences** combined with timeless features, including a Smallbone kitchen and an Aga
- **Desirable location** within the Yorkshire Dales National Park, providing a serene rural lifestyle
- **Ample parking** with a double garage and storage facilities
- **Currently functions as holiday accommodation,** offering rental potential
**Potential Downsides:**
- Listed status may present challenges for future renovations
- Higher council tax band (H) may affect ongoing costs
- Limited mobile phone signal; however, fast broadband is available
---
Nestled in the picturesque hamlet of Appletreewick, High Hall boasts a unique blend of historical charm and modern family living. This impressive Grade II* home features 7 spacious bedrooms and 6 bathrooms spread across four thoughtfully designed floors. The ground floor welcomes you with three elegant reception rooms and a stunning breakfast kitchen complete with a traditional Aga, perfect for large family gatherings or entertaining guests.
Set on a vast 0.76-acre plot, the beautifully landscaped gardens offer a tranquil retreat with sweeping lawns, meandering pathways past a charming carp pond, and ample outdoor space for activities. The property is conveniently located in the highly desirable Yorkshire Dales National Park, ideal for outdoor enthusiasts and those seeking a peaceful community. With the potential for additional grazing land and existing outbuildings, High Hall is an exceptional opportunity not to be missed. Act quickly to secure this remarkable property that perfectly combines the allure of historical elegance with the comforts of contemporary living.
4 bedroom detached house for sale in Appletreewick, Skipton, North Yorkshire, BD23 — £1,150,000 • 4 bed • 2 bath • 3873 ft²
2 bedroom country house for sale in Raikes Lane, Rylstone, Skipton, BD23 — £950,000 • 2 bed • 2 bath • 2067 ft²
5 bedroom detached house for sale in High Bank House, Main Street, Addingham, LS29 — £1,150,000 • 5 bed • 3 bath • 3088 ft²
5 bedroom detached house for sale in Skyreholme, Skipton, North Yorkshire, BD23 — £895,000 • 5 bed • 3 bath • 2346 ft²
5 bedroom detached house for sale in Threshfield, Skipton, North Yorkshire, BD23 — £1,400,000 • 5 bed • 4 bath • 3715 ft²
3 bedroom flat for sale in Eshton, Skipton, North Yorkshire, BD23 — £412,500 • 3 bed • 3 bath • 2478 ft²






























































































































































