South-facing garden and three parking spaces ideal for growing families.
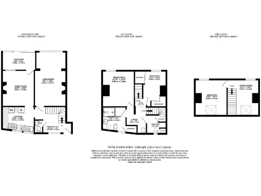
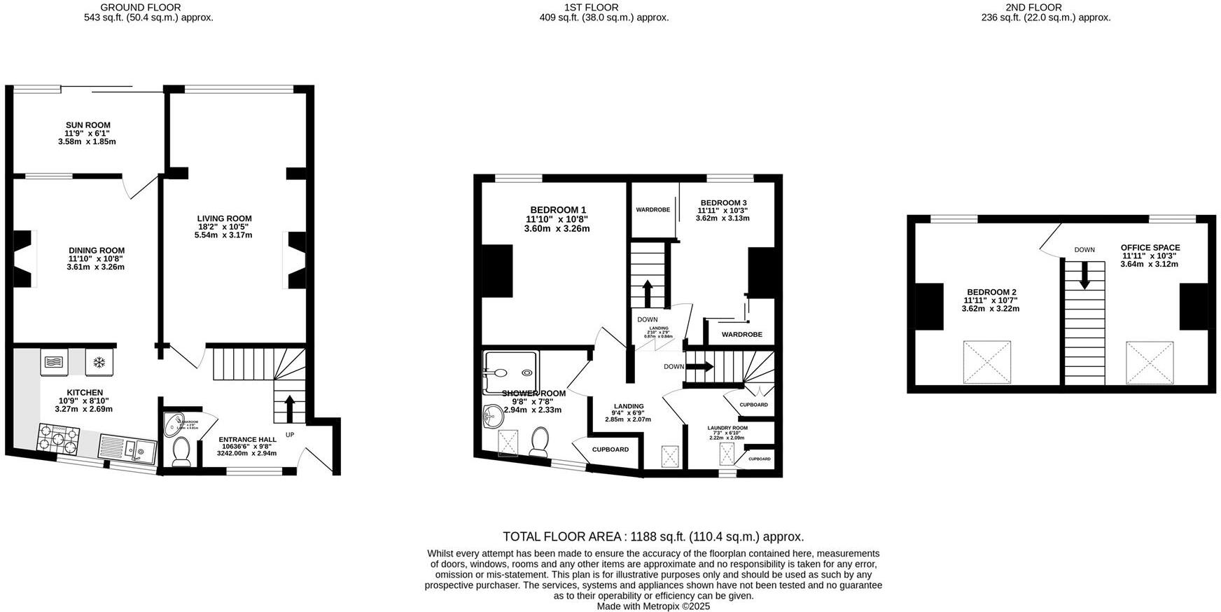
Three bedrooms plus adaptable second-floor living or office space
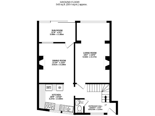
A spacious three-bedroom mid-terrace blending Victorian character with practical family layout. The house offers three reception rooms including a sun room, a fitted kitchen with appliances, and an adaptable second-floor room currently used as extra living space. The ground floor has been adapted for wheelchair access with level flooring and wider doorways, useful for accessibility needs or future resale appeal.
Outside, the enclosed south-facing garden is mostly patio with raised beds, mature planting and a greenhouse — an easy-to-manage outdoor space for children or light gardening. At the rear there is a powered garage plus three parking spaces accessed via Chestnut Avenue, a significant convenience in this area. The property is Freehold and sits close to Stonehouse town centre, schools and transport links including regular trains and easy M5 access.
Notable drawbacks are factual: an EPC rating of F36 and solid brick walls likely lack modern insulation, so energy improvements are needed. The home has a single shower room and several rooms heated by electric heaters, and while a laundry room has plumbing in place, conversion to a full bathroom would require installation. Buyers seeking immediate low-energy running costs should budget for upgrades.
This house will suit families or buyers who value character, space and parking, and who are prepared to carry out energy and cosmetic improvements to unlock long-term savings and comfort. With convenient local amenities and good transport links, it presents clear scope for a comfortable family home or a renovation project with strong practical benefits.
2 bedroom terraced house for sale in College View, Stonehouse, GL10 — £275,000 • 2 bed • 1 bath • 419 ft²
4 bedroom terraced house for sale in Regent Street, Stonehouse, GL10 — £435,000 • 4 bed • 2 bath • 2055 ft²
4 bedroom terraced house for sale in Laburnum Walk, Stonehouse, Gloucestershire, GL10 — £315,000 • 4 bed • 2 bath • 1238 ft²
3 bedroom semi-detached house for sale in Whitefield Close, Bridgend, Stonehouse, Gloucestershire, GL10 — £350,000 • 3 bed • 1 bath • 896 ft²
3 bedroom detached house for sale in Bath Road, Stonehouse, Gloucestershire, GL10 — £400,000 • 3 bed • 1 bath • 1494 ft²
6 bedroom detached house for sale in Regency Close, Stonehouse, GL10 — £514,500 • 6 bed • 3 bath • 1897 ft²














































































