Large private plot near historic High Street, ideal for family living or extension.
Detached four-bedroom period house by the River Leven
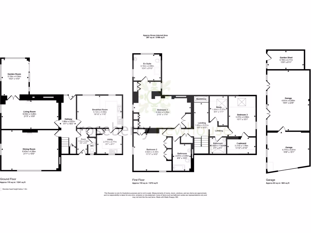
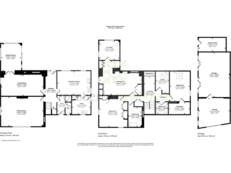
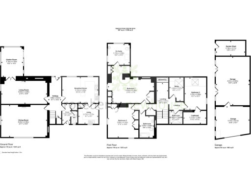
Manor Farm is a substantial, detached period house set on a very large, private plot beside the River Leven, moments from Stokesley’s historic High Street and riverside walks. The house offers generous, traditional reception rooms, a bright garden room and an open-plan kitchen/breakfast area that suit family life and entertaining. The principal bedroom includes a dressing area and en-suite; overall layout provides flexible three/four-bedroom accommodation plus a separate study for home working.
Outside, mature, landscaped gardens, terraces and specimen trees create a secluded retreat, while a substantial detached garage/workshop with vaulted ceiling presents clear scope for an annexe, studio or home office (subject to planning). The property is sold freehold and chain free, giving immediate scope to move in or start a refurbishment project.
Buyers should note practical constraints: broadband speeds are slow and the property lies in an area with above-average crime statistics. Council tax is described as quite expensive. While the house is well-appointed, it is best suited to buyers prepared to modernise parts of the accommodation or to invest in upgrades to heating, wiring or connectivity as required.
This is a rare town-centre plot that combines privacy, generous accommodation and long-term enhancement potential. It will appeal to families seeking spacious rooms, established gardens and easy access to local schools and amenities, as well as to buyers looking for a conversion or annexe opportunity subject to consent.
4 bedroom terraced house for sale in Levenside, Stokesley, North Yorkshire, TS9 — £350,000 • 4 bed • 1 bath • 1518 ft²
4 bedroom end of terrace house for sale in West Green, Stokesley, Middlesbrough, TS9 5BD, TS9 — £550,000 • 4 bed • 1 bath • 1410 ft²
5 bedroom detached house for sale in Riverslea, Stokesley, Middlesbrough, TS9 — £495,000 • 5 bed • 2 bath • 1755 ft²
4 bedroom detached house for sale in Levenside, Stokesley, North Yorkshire, TS9 — £625,000 • 4 bed • 2 bath • 1798 ft²
3 bedroom maisonette for sale in Red House Court, Bridge Road, Stokesley, Middlesbrough, TS9 — £185,000 • 3 bed • 1 bath • 832 ft²
2 bedroom detached house for sale in Levenside, Stokesley, Middlesbrough, North Yorkshire, TS9 — £299,000 • 2 bed • 1 bath • 1216 ft²


























































































