New-build, single-storey living with eco features and off-street parking in Crownhill.
Ready September 2025 with 6-year new-home warranty|Underfloor heating and air source heat pump throughout|EV charging point and off-street parking for three cars|Fully fitted kitchen with quartz worktops and integrated appliances|Wrap‑around garden with patio and low‑maintenance artificial grass|Single family bathroom only; may suit couples or downsizers|Compact footprint ~660 sq ft; limited internal space|EPC awaited; area records above-average crime levels
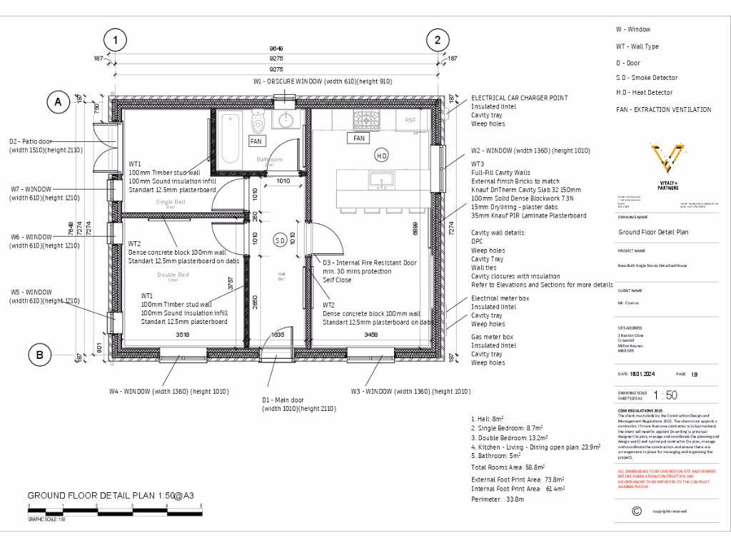
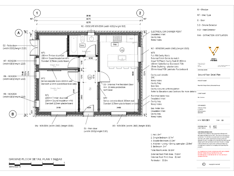
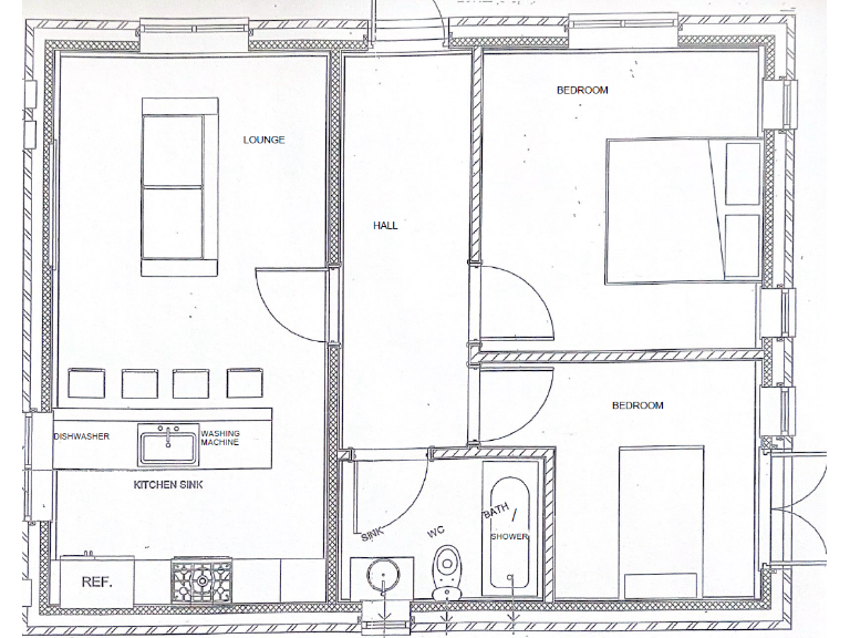
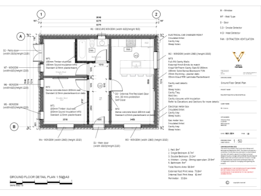
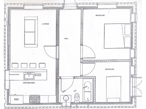
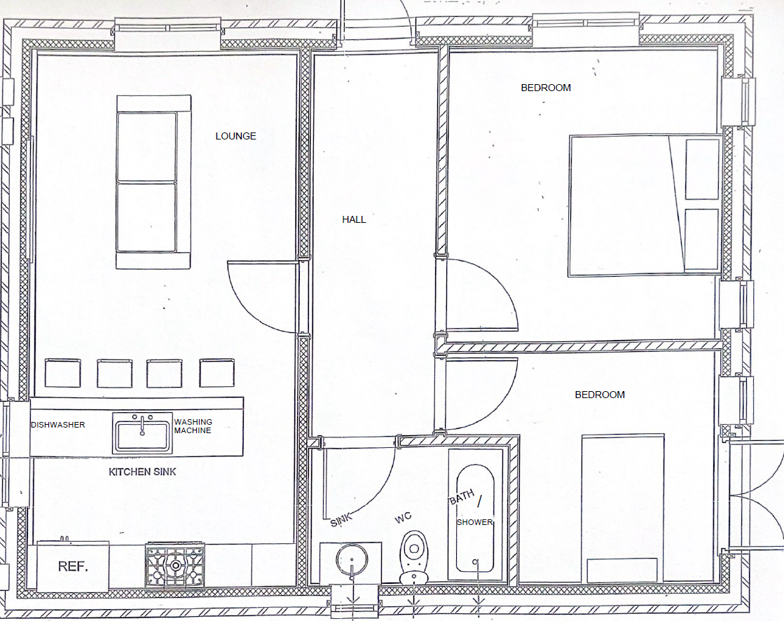
Finished September 2025, this newly built two-bedroom detached bungalow in Crownhill offers a low-maintenance, single-storey layout ideal for downsizers or buyers seeking step-free living. The home is specified with underfloor heating throughout, an air source heat pump, and an EV charging point, helping reduce running costs while delivering modern comfort.
Interior finishes include a fully fitted kitchen with quartz worktops and integrated appliances, fitted flooring throughout, and a main bedroom with fitted wardrobes. The living, dining and kitchen form an open-plan hub, and the wrap-around plot provides a patio and artificial grass for easy upkeep.
Practical strengths include off-street parking for up to three cars, a decent plot with private garden, and a six-year new-home warranty. Council Tax band B and expected energy savings from the heat pump are further cost advantages.
Notable limitations are the compact overall size (around 660 sq ft) and a single family bathroom, which may feel tight for some households. The EPC is awaited, and the area records above-average crime levels — both factual points to consider when viewing.
2 bedroom detached bungalow for sale in Keaton Close, Crownhill, MK8 — £385,000 • 2 bed • 1 bath • 616 ft²
2 bedroom detached bungalow for sale in Keaton Close, Crownhill, Milton Keynes, MK8 — £385,000 • 2 bed • 1 bath • 550 ft²
2 bedroom semi-detached house for sale in Altay gardens, Whitehouse park, Milton Keynes, MK8 — £349,995 • 2 bed • 1 bath • 588 ft²
3 bedroom semi-detached house for sale in Rambouillet Drive, Whitehouse, Milton Keynes, MK8 — £425,000 • 3 bed • 2 bath • 862 ft²
3 bedroom detached house for sale in Shepton Road, Broughton, Milton Keynes, MK10 — £450,000 • 3 bed • 2 bath • 1055 ft²
6 bedroom semi-detached house for sale in Valens Close, Crownhill, Milton Keynes, MK8 — £525,000 • 6 bed • 3 bath • 1195 ft²






















































