Four-bed detached home with one-bed annexe, parking for four and Caldey views — ideal family or investor buy.
Coastal views across to Caldey Island from patio
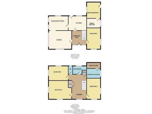
Set on a double corner plot in Tenby, this detached four-bedroom house includes a self-contained one-bedroom annexe and enjoys coastal views across to Caldey Island. The main house offers a sitting room, dining room, kitchen and four double bedrooms across two storeys, while the annexe provides independent access, a small kitchen, bedroom/sitting room and bathroom — a flexible setup for extended family use or as a rental/holiday unit.
Outside there is parking for four cars, a detached garage and a raised patio that takes advantage of the sea view, plus a lawned rear garden with mature shrubs. The property benefits from double glazing and gas central heating throughout, making it comfortable year-round. Its position close to Tenby town centre puts beaches, harbour attractions and the Pembrokeshire Coast Path within easy reach.
Practical points to note: the house has an EPC rating of E and sits in Council Tax Band F, so running costs are higher than average. Broadband speeds are slow in the area and the wider neighbourhood scores as very deprived, which may influence resale or rental demand. Accommodation is traditional rather than recently modernised, and there is only one main bathroom for four bedrooms — buyers should expect some updating to modern standards and possible cosmetic refurbishment.
This property will suit families wanting close seaside living with extra annexe flexibility, or investors seeking a holiday-let or multi-income opportunity (subject to permissions). It offers immediate occupation with scope to add value through refurbishment and improved services.
5 bedroom detached house for sale in Scotsborough View, Tenby, SA70 — £750,000 • 5 bed • 4 bath • 1991 ft²
4 bedroom detached house for sale in Lady Park, Tenby, SA70 — £499,950 • 4 bed • 3 bath • 1377 ft²
4 bedroom detached house for sale in Lady Park, Tenby, Pembrokeshire, SA70 — £435,000 • 4 bed • 2 bath • 1544 ft²
4 bedroom detached house for sale in Marsh Road, Tenby, Pembrokeshire, SA70 — £365,000 • 4 bed • 2 bath • 1346 ft²
5 bedroom detached house for sale in Haytor Gardens, Tenby, Pembrokeshire, SA70 — £699,000 • 5 bed • 4 bath • 3338 ft²
3 bedroom detached house for sale in Narberth Road, Tenby, Pembrokeshire, SA70 — £500,000 • 3 bed • 1 bath • 1343 ft²


















































































































