Bright first-floor home with marina views and covered parking nearby.
- Stunning estuary and marina views from the open-plan living area
- Modern kitchen with marble worktops and integrated appliances
- Allocated covered parking space plus visitor bays and external shed
- Communal gardens and waterside walking access nearby
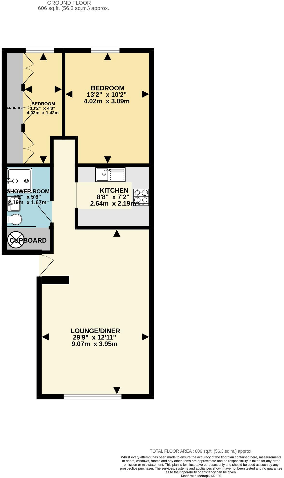
- Compact footprint: approximately 606 sq ft, small overall size
- Leasehold tenure; check length and service charge details
- High flood risk for the location — affects insurance and resilience
- Single shower room; bedroom two is a small single with fitted wardrobe
Set on the first floor with sweeping views across the Blackwater Estuary and Tollesbury Marina, this two-bedroom apartment suits a downsizer, sailing enthusiast or first-time buyer seeking a waterside base. The open-plan lounge/dining space is the standout room, bright and framed by large windows overlooking the estuary.
The kitchen is modern with marble worktops and integrated appliances, and the shower room is contemporary with plumbing for a washing machine. Practical extras include an allocated covered parking space and communal gardens, plus visitor bays and a small external shed.
Buyers should note this is a leasehold apartment in a small building and the overall internal size is compact at 606 sq ft. There is a high flood risk for the area — relevant for insurance and future resilience measures. Aside from those factors, the property is presented in good order and offers immediate move-in potential or short-term rental prospects for investors attracted to the waterside location.
2 bedroom flat for sale in Tollesbury, CM9 — £199,950 • 2 bed • 1 bath • 551 ft²
2 bedroom flat for sale in Tollesbury, CM9 8TB, CM9 — £199,950 • 2 bed • 1 bath • 597 ft²
2 bedroom flat for sale in Tollesbury, CM9 8TB, CM9 — £205,000 • 2 bed • 2 bath • 636 ft²
1 bedroom flat for sale in Plot 6, Saltmarsh Place, Tollesbury, CM9 — £225,000 • 1 bed • 1 bath • 538 ft²
2 bedroom apartment for sale in The Boathouse, Waterside Marina, Brightlingsea, CO7 — £265,000 • 2 bed • 2 bath • 851 ft²
2 bedroom flat for sale in (SALES) Waterside Marina, Brightlingsea, CO7 — £270,000 • 2 bed • 2 bath • 952 ft²


























































