Three-bedroom, newly renovated terrace near town centre and Dartmoor National Park.
Chain free Victorian mid-terrace with period stone frontage
This stone-fronted Victorian terrace in Buckfastleigh offers a practical, well-presented home within walking distance of the town centre, primary school and medical centre. The current owner has carried out significant work including rewiring, new plumbing and FENSA-approved windows and doors, leaving a ready-to-enjoy interior with neutral decor, new carpets and modern bathrooms.
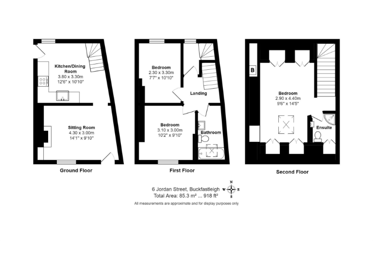
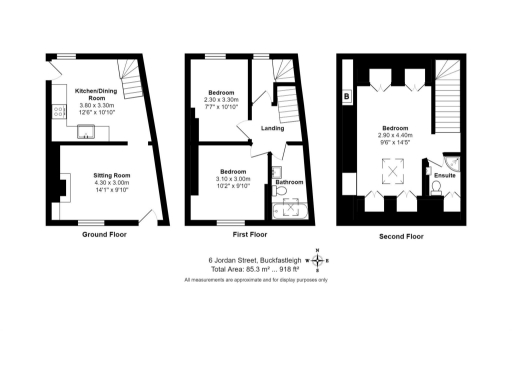
The layout spreads over three floors: a light living room with built-in shelving and a wood-burning stove, a farmhouse-style kitchen with integrated appliances and a small rear patio, two double bedrooms and family bathroom on the first floor, and a generous primary suite with en suite on the top floor. Gas central heating, UPVC glazing and an EPC rating of C help keep running costs reasonable, and the property is offered chain free.
Practical considerations: the plot is very small and outdoor space is limited to a patio. The house is a mid-terrace with solid brick walls (as originally built) so added wall insulation may be restricted or require specialist work. Broadband speeds are average and the wider area shows some deprivation despite good commuter links via the A38. Council tax is low (Band B).
This property will suit buyers seeking a characterful, move-in-ready cottage close to Dartmoor National Park and local amenities — families, first-time buyers or those downsizing who value location and period charm. Investors should note the property's small plot and town-fringe setting when assessing rental demand and future improvements.
 1 bedroom terraced house for sale in Newcause, Buckfastleigh, TQ11 — £152,000 • 1 bed • 1 bath • 409 ft²
 1 bedroom terraced house for sale in Newcause, Buckfastleigh, TQ11 — £152,000 • 1 bed • 1 bath • 409 ft² 2 bedroom house for sale in Market Street, Buckfastleigh, Devon, TQ11 — £250,000 • 2 bed • 1 bath • 1166 ft²
 2 bedroom house for sale in Market Street, Buckfastleigh, Devon, TQ11 — £250,000 • 2 bed • 1 bath • 1166 ft² 1 bedroom terraced house for sale in Plymouth Road, Buckfastleigh, TQ11 — £99,000 • 1 bed • 1 bath • 420 ft²
 1 bedroom terraced house for sale in Plymouth Road, Buckfastleigh, TQ11 — £99,000 • 1 bed • 1 bath • 420 ft² 2 bedroom semi-detached house for sale in Kingcome Court, Fore Street, Buckfastleigh, Devon, TQ11 — £240,000 • 2 bed • 1 bath • 772 ft²
 2 bedroom semi-detached house for sale in Kingcome Court, Fore Street, Buckfastleigh, Devon, TQ11 — £240,000 • 2 bed • 1 bath • 772 ft² 1 bedroom terraced house for sale in Bossell House, Bossell Park, Buckfastleigh, TQ11 — £150,000 • 1 bed • 1 bath • 452 ft²
 1 bedroom terraced house for sale in Bossell House, Bossell Park, Buckfastleigh, TQ11 — £150,000 • 1 bed • 1 bath • 452 ft² 3 bedroom end of terrace house for sale in Croppins Close, Buckfastleigh, TQ11 — £245,000 • 3 bed • 1 bath • 926 ft²
 3 bedroom end of terrace house for sale in Croppins Close, Buckfastleigh, TQ11 — £245,000 • 3 bed • 1 bath • 926 ft²


















































































